**Standout Features:**
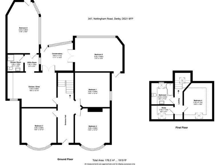
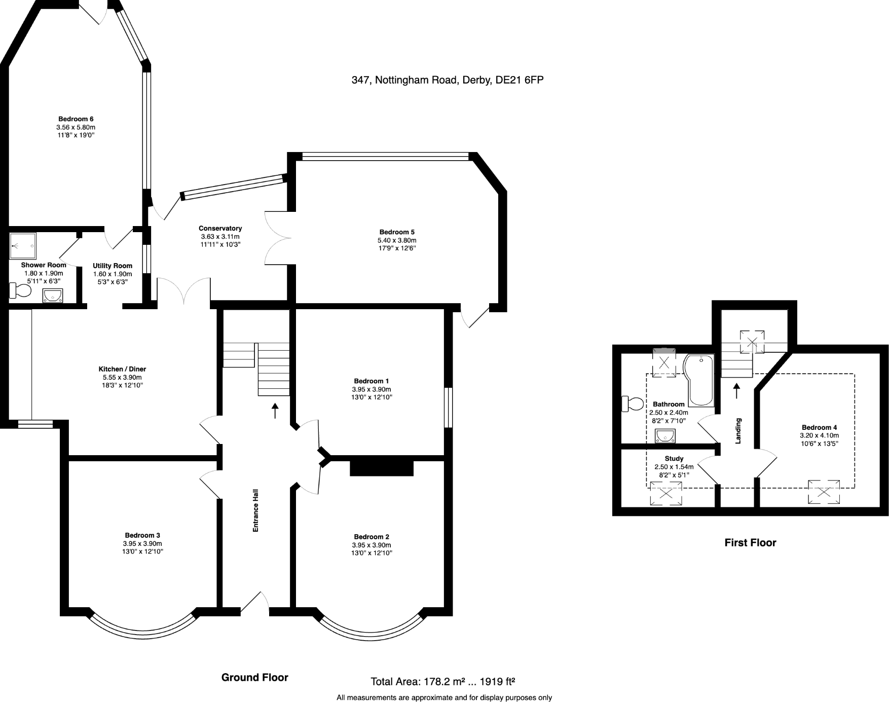
- House of Multiple Occupation (HMO) with 6 bedrooms
- Current long-term tenants providing stable rental income
- Attractive investment potential with annual income of £23,520, up to £34,020 at market rates
- Spacious interior with 1 bathroom, lounge, and modern kitchen
- Large garden suitable for outdoor activities or further development
- Freehold tenure with good mobile and fast broadband signal
**Concerns:**
- Property requires some modernization
- Crime rate in the area is above average
- Located in an economically deprived area
**Summary Description:**
Discover a lucrative buy-to-let opportunity in Derby with this spacious 6-bedroom HMO, ideal for serious investors seeking reliable rental income. With long-term tenants currently established, this property yields an impressive annual gross of £23,520, with potential for growth to £34,020. The home boasts generous living spaces—including a modern kitchen and large garden—perfect for outdoor enjoyment or future enhancements. While the property does need some updates, its prime location near amenities and schools makes it attractive for both tenants and future resale. Don’t miss out on this chance to secure a valuable addition to your investment portfolio in a promising area; the demand is high, and opportunities like this are rare!
 6 bedroom terraced house for sale in Gerard Street North, Derby, DE1 — £280,000 • 6 bed • 3 bath • 1680 ft²
 6 bedroom terraced house for sale in Gerard Street North, Derby, DE1 — £280,000 • 6 bed • 3 bath • 1680 ft² 6 bedroom terraced house for sale in Brighton Road, Alvaston, DE24 — £280,000 • 6 bed • 5 bath • 1066 ft²
 6 bedroom terraced house for sale in Brighton Road, Alvaston, DE24 — £280,000 • 6 bed • 5 bath • 1066 ft² 2 bedroom end of terrace house for sale in Alfreton Road, Derby, DE21 — £137,000 • 2 bed • 1 bath • 875 ft²
 2 bedroom end of terrace house for sale in Alfreton Road, Derby, DE21 — £137,000 • 2 bed • 1 bath • 875 ft² 7 bedroom terraced house for sale in Gerard Street North, Derby, DE1 — £240,000 • 7 bed • 2 bath • 1572 ft²
 7 bedroom terraced house for sale in Gerard Street North, Derby, DE1 — £240,000 • 7 bed • 2 bath • 1572 ft² 3 bedroom terraced house for sale in Bakewell Street, Derby, Derbyshire, DE22 — £134,000 • 3 bed • 1 bath • 764 ft²
 3 bedroom terraced house for sale in Bakewell Street, Derby, Derbyshire, DE22 — £134,000 • 3 bed • 1 bath • 764 ft² 3 bedroom terraced house for sale in Crompton Street, Derby, DE1 — £175,000 • 3 bed • 1 bath • 872 ft²
 3 bedroom terraced house for sale in Crompton Street, Derby, DE1 — £175,000 • 3 bed • 1 bath • 872 ft²


































































































































