Character-filled three-bed home with garden, parking and approved extension potential..
- Detached character cottage in Southover, central Lewes
- Larger-than-average, level private garden for the area
- Single off-street parking space — rare central Lewes benefit
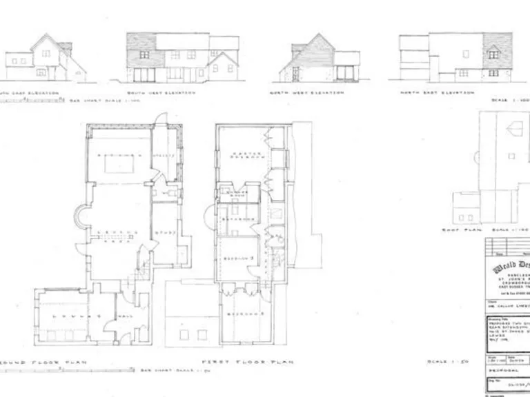
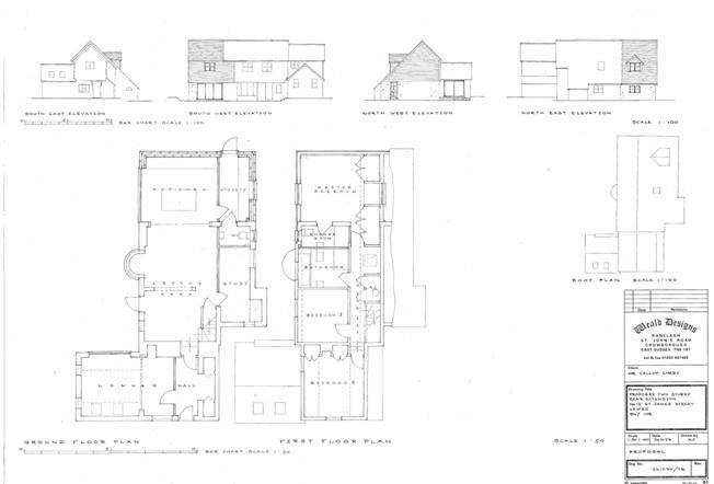
- Full planning permission for two-storey extension and main suite
- Three bedrooms, one family bathroom; limited bathroom facilities
- Solid brick construction; likely no wall insulation, upgrade needed
- Medium flood risk; factor insurance and mitigation costs
- Local crime levels higher than average; consider security measures
Tucked into Lewes’s Southover area, this detached character cottage offers period charm with modern potential. The sitting room’s feature fireplace and separate dining hall create cosy, flexible living for family life, while a bright kitchen overlooks a larger-than-average, level garden — rare in central Lewes.
Practicality is strong: a utility room, separate home office and a single off-street parking space add everyday convenience. Full planning permission is in place for a two-storey extension to enlarge the ground floor and create a main bedroom suite, making this a sensible purchase for buyers wanting more space rather than moving house.
Buyers should be aware of material points to budget for: the property dates from the early 20th century with solid brick walls (assumed uninsulated) and may require thermal and modernisation work. There is only one family bathroom and the location has a medium flood risk. Local crime levels are higher than average for the area, which some buyers will want to factor into security and insurance costs.
Overall, this is a rare central Lewes opportunity for families or buyers seeking period character, scope to extend and a generous private garden. The home suits those willing to update heating, insulation and finishes to create a comfortable, improved long-term family home.
3 bedroom house for sale in St. Peters Place, Lewes, BN7 — £650,000 • 3 bed • 1 bath • 1028 ft²
2 bedroom terraced house for sale in De Montfort Road, Lewes, BN7 — £449,950 • 2 bed • 1 bath • 672 ft²
3 bedroom terraced house for sale in Southover High Street, Lewes BN7 1HT, BN7 — £650,000 • 3 bed • 2 bath • 1428 ft²
2 bedroom terraced house for sale in Southover High Street, Lewes, East Sussex, BN7 — £395,000 • 2 bed • 1 bath • 774 ft²
3 bedroom semi-detached house for sale in Priory Street, Lewes, East Sussex, BN7 — £750,000 • 3 bed • 2 bath • 973 ft²
2 bedroom cottage for sale in Thomas Street, Lewes, BN7 — £349,950 • 2 bed • 1 bath • 344 ft²






























































































