Move-in ready three-bedroom close to Cambridge with strong rental income potential.
Three bedrooms, renovated and ready to move into
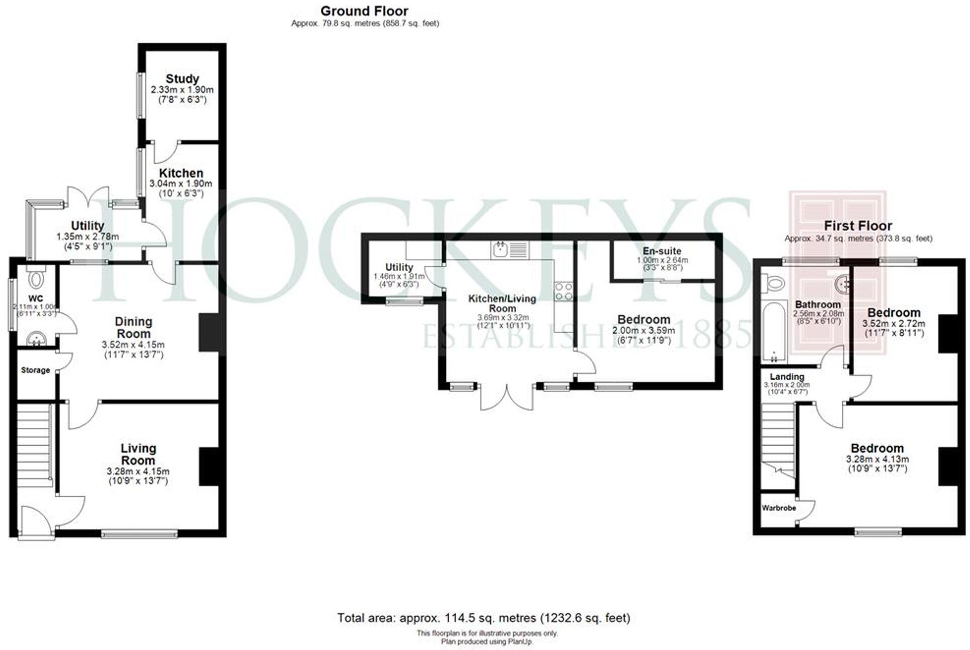
Set back on a generous plot in Swaffham Bulbeck, this newly renovated three-bedroom semi-detached house combines comfortable living with genuine income potential. The main house is well presented throughout with bright living spaces, a practical layout and off-street parking accessed via secure double gates. Offered with no onward chain, it is ready to move into.
A modern, self-contained one-bedroom annex sits at the bottom of the garden and has previously been let for £900pcm (bills included). The annex offers an open-plan kitchen/diner and a separate bedroom, with scope to complete an en-suite and improve rental returns or provide independent family accommodation.
Energy performance and construction are important to note: the property uses electric storage heaters, benefits from double glazing fitted before 2002, and has solid brick walls assumed to lack cavity insulation. The current EPC rating is E, so further insulation and heating upgrades would reduce running costs and add value.
This location suits buyers seeking village life with easy access to Cambridge and good local schools. The large, private garden and potential for extension or improvement give scope for families or investors to enhance space and long-term value.
3 bedroom semi-detached house for sale in Heath Road, Swaffham Bulbeck, CB25 — £375,000 • 3 bed • 1 bath • 1083 ft²
3 bedroom detached house for sale in High Street, Swaffham Bulbeck, CB25 — £550,000 • 3 bed • 2 bath • 1033 ft²
3 bedroom detached house for sale in High Street, Swaffham Bulbeck, Cambridge, Cambridgeshire, CB25 — £625,000 • 3 bed • 2 bath • 1552 ft²
4 bedroom semi-detached house for sale in Commercial End, Swaffham Bulbeck, CB25 — £550,000 • 4 bed • 1 bath • 1238 ft²
4 bedroom detached house for sale in Mill Lane, Swaffham Bulbeck, CB25 — £725,000 • 4 bed • 3 bath • 1880 ft²
4 bedroom detached house for sale in Quarry Lane, Swaffham Bulbeck, CB25 — £820,000 • 4 bed • 2 bath • 2842 ft²






















































































