Spacious semi with large garden, off-street parking and modern kitchen — ideal for growing families or first-time buyers..
Three bedrooms and one family bathroom
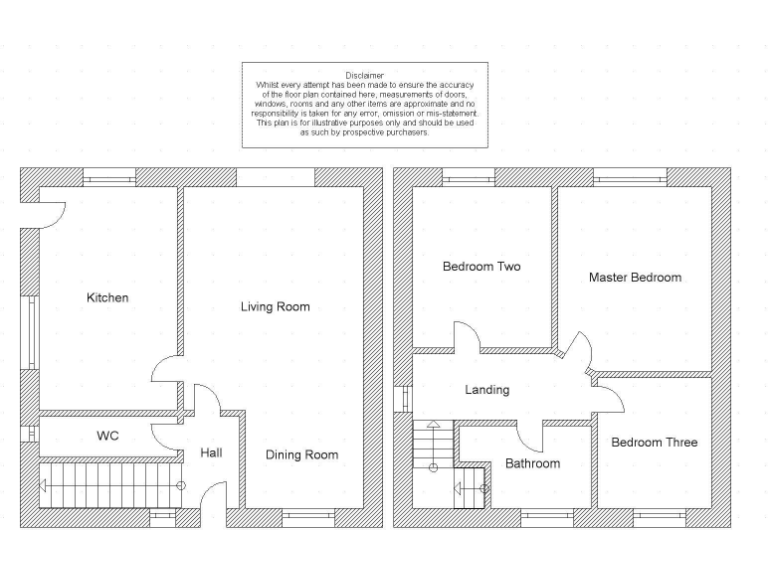
A well-presented three-bedroom semi-detached home on Hudspeth Crescent, offering practical family living in Pity Me. The ground floor has an entrance hall, useful downstairs WC, open-plan living/dining space and a modern fitted kitchen, while three bedrooms and a family bathroom sit on the first floor. The property benefits from gas central heating, mains utilities and an EPC rating of C.
Externally there is off-street parking to the front and a large fenced side and rear garden that suits children, pets and outdoor entertaining. The plot is a decent size for the area and the house sits in an established mid‑century residential pocket with low crime and good local amenities including nearby bus links and schools rated Good–Outstanding.
This freehold home is ready to move into as presented but will suit buyers who want a tidy, modernised property they can personalise over time. It will appeal particularly to families and first-time buyers seeking space, garden and straightforward transport links in an affluent local area. Viewings are recommended to appreciate the layout and garden size in person.
3 bedroom semi-detached house for sale in The Avenue, Pity Me, Durham, Durham, DH1 5DY, DH1 — £145,000 • 3 bed • 1 bath
3 bedroom house for sale in Lloyd Avenue, East Rainton, Houghton Le Spring, DH5 — £89,950 • 3 bed • 1 bath • 754 ft²
3 bedroom terraced house for sale in Front Street, Pity Me, Durham, DH1 — £110,000 • 3 bed • 1 bath • 720 ft²
3 bedroom semi-detached house for sale in Anvil Court, Pity Me, Durham, DH1 — £184,950 • 3 bed • 1 bath • 743 ft²
3 bedroom terraced house for sale in Front Street, Pity Me, Durham, DH1 — £119,950 • 3 bed • 1 bath • 793 ft²
3 bedroom terraced house for sale in Front Street, Pity Me, Durham, DH1 — £130,000 • 3 bed • 1 bath • 764 ft²


































































