Managed retirement living with social events and guest-suite access.
Two double bedrooms with flexible layout
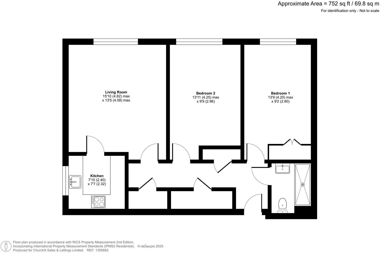
Bright, comfortable and purpose-built for older owners, this two-bedroom first-floor apartment at Chelmer Lodge suits those seeking low-maintenance, sociable living close to Chelmsford town centre. The living room’s dual-aspect windows and two double bedrooms give flexibility for a spare room, hobby space or occasional visitors. The fitted kitchen includes integrated appliances and the shower room has practical walk-in access and a heated towel rail.
Chelmer Lodge is a managed retirement development with a lodge manager five days a week, regular owners’ lounge events, a 24-hour Careline and a Guest Suite for visiting family (also available across Churchill Living sites). Communal benefits include landscaped gardens, off-street owners’ parking and a community heating scheme (ground source heating) that serves the development.
Practical points to note: the property is leasehold with around 111 years remaining and an above-average annual service charge (£5,122.14) plus a comparatively high ground rent (£888.54). Council Tax is above average and the local reported crime level is very high, which may affect personal security perceptions despite the on-site Careline and manager presence. The apartment is modest in size (approximately 752 sq ft) and built for accessibility rather than expansive living spaces.
This apartment will suit downsizers who prioritise managed communal living, regular social activities, and nearby town amenities over large private gardens or entirely independent living. Viewings are recommended to assess room proportions and communal facilities in person.
1 bedroom retirement property for sale in Chelmer Lodge, Chelmsford, Essex, CM2 — £219,950 • 1 bed • 1 bath • 585 ft²
1 bedroom flat for sale in New London Road, Chelmsford, CM2 — £170,000 • 1 bed • 1 bath • 512 ft²
1 bedroom retirement property for sale in Tyrell Lodge, Chelmsford, CM2 — £215,000 • 1 bed • 1 bath • 517 ft²
1 bedroom retirement property for sale in Tyrell Lodge, Chelmsford, CM2 — £205,000 • 1 bed • 1 bath • 653 ft²
2 bedroom flat for sale in New London Road, Chelmsford, Essex, CM2 — £375,000 • 2 bed • 2 bath • 796 ft²
1 bedroom retirement property for sale in New London Road, Chelmsford, CM2 — £225,000 • 1 bed • 1 bath • 477 ft²


































































