PO20 8NP - 3 bedroom detached bungalow for sale in Wessex Avenue, East…

View on Property Piper

3 bedroom detached bungalow for sale in Wessex Avenue, East Wittering, PO20

Summary - TARRAGON WESSEX AVENUE EAST WITTERING CHICHESTER PO20 8NP

3 bed 1 bath Detached Bungalow

Three-bedroom detached bungalow on single level
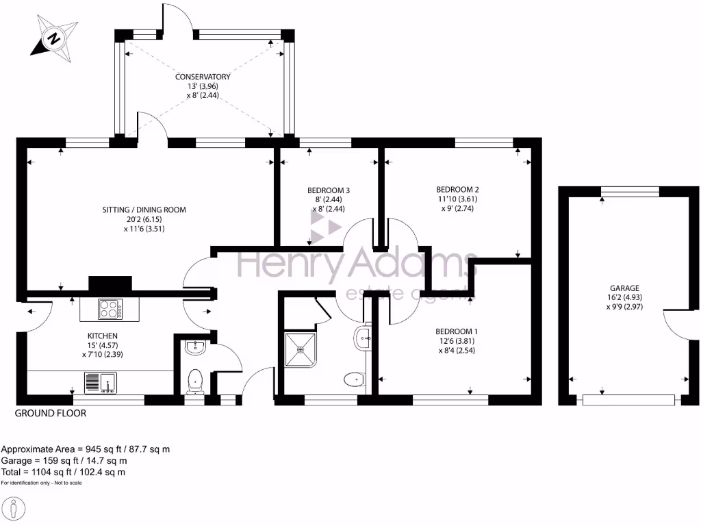
This three-bedroom detached bungalow offers comfortable single-level living in a popular East Wittering cul-de-sac, an easy walk from the village centre and beach. The generous sitting/dining room with a wood-burning stove sits at the heart of the home and opens toward a bright conservatory overlooking a tidy rear garden — ideal for relaxed afternoons and low-maintenance outdoor space.

Practical features include a detached garage with parking, a separate cloakroom, and mains gas central heating. The layout provides flexible bedroom space suitable for guests, a home office, or hobbies, while an EPC rating of B reflects relatively good energy performance compared with similar houses of its era.

Buyers should note the property dates from the late 1960s/early 1970s: the cavity walls are assumed uninsulated and the double glazing was installed before 2002, so additional insulation or window upgrades could improve efficiency. The house has one shower room plus a cloakroom, which may be limiting for some families. Overall, this bungalow is well placed for downsizers or anyone seeking a seaside single-storey home with scope to update and personalise.

Property Details

Brochure Descriptions

Image Descriptions

Floorplan Description

Rooms

Textual Property Features

Detected Visual Features

EPC Details

Nearby Schools

Nearest Bars And Restaurants

,,,,}

Nearest General Shops

,,}

Nearest Grocery shops

,,}

Nearest Supermarkets

,,}

Nearest Religious buildings

,,}

Nearest Medical buildings

,,,}

Nearest Airports

}

Nearest Leisure Facilities

,,,,}

Nearest Tourist attractions

,,}

Nearest Train stations

,,,,}

Nearest Bus stations and stops

,,,,}

Nearest Hotels

,,}

Tags

Local Market Stats

AirBnB Data

Similar Properties

Meta

High Res Images

Compatible Images

Low res Images

Thumbnails

Raw Images

High Res Floorplan Images

Compatible Floorplan Images

Low res Floorplan Images

FloorplanImages Thumbnail

Raw Floorplan Images