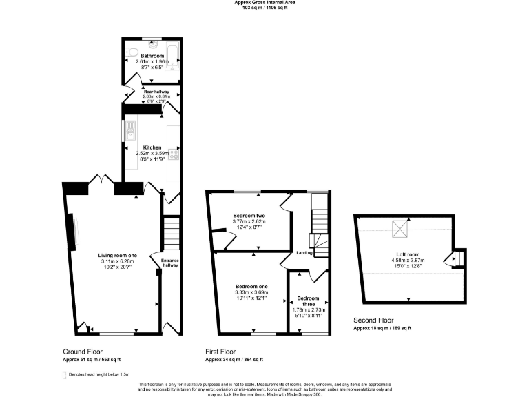
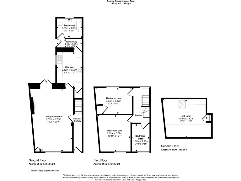
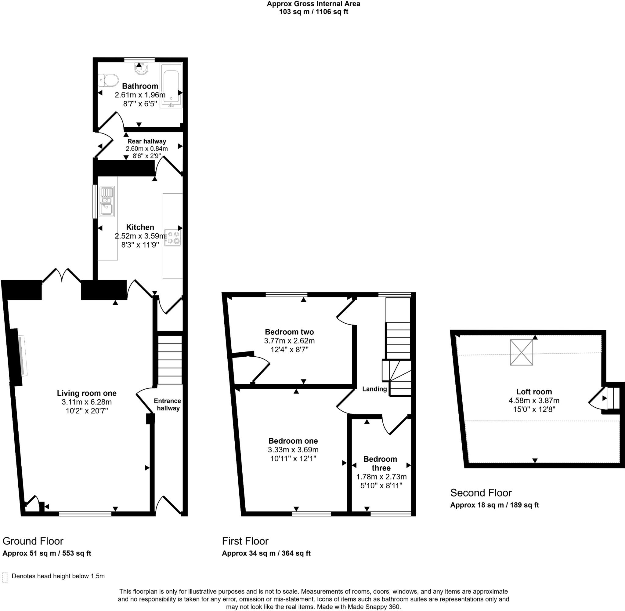
**Standout Features:**
- Newly renovated kitchen and bathroom
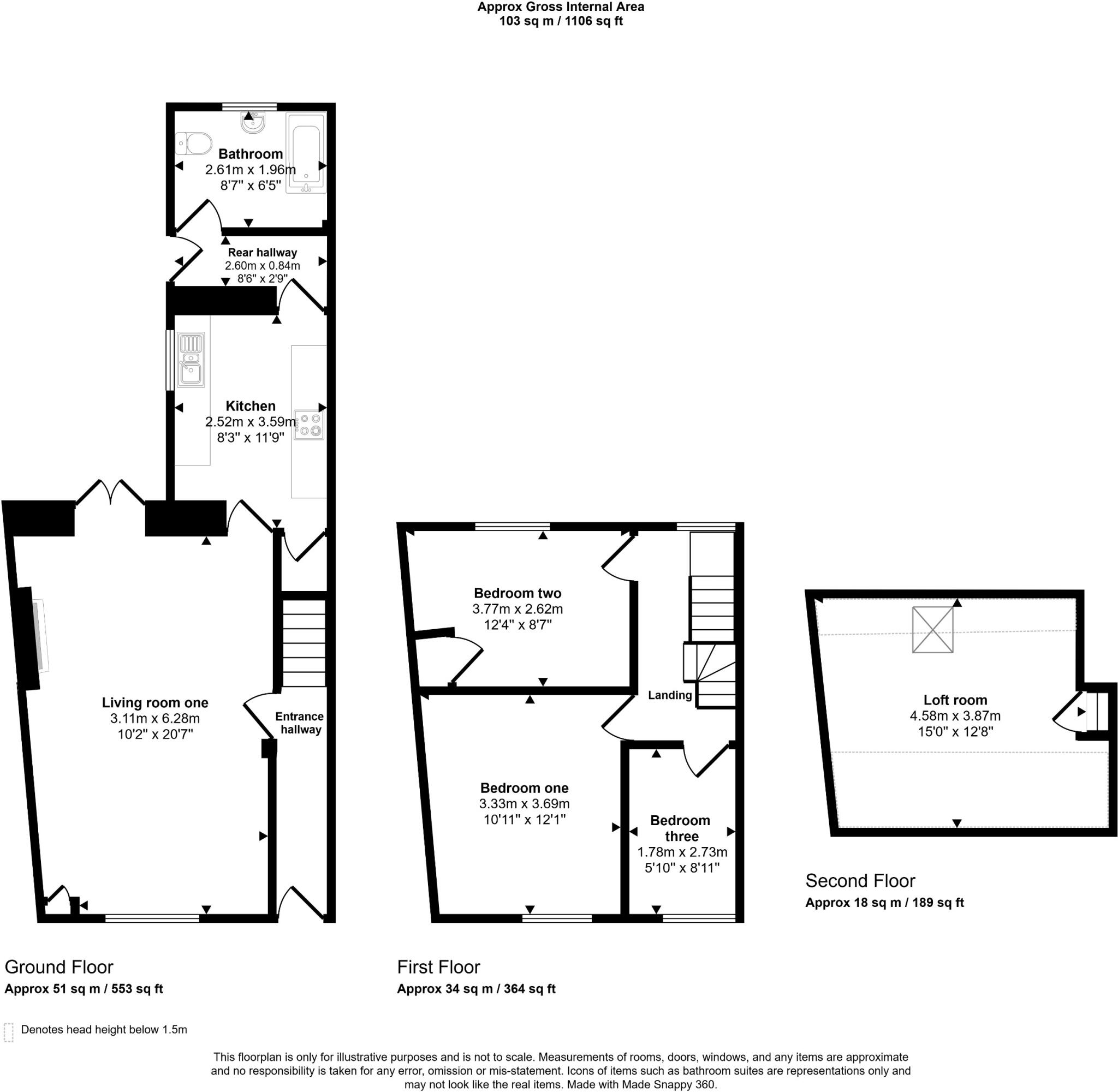
- Three bedrooms plus a versatile loft room
- Low-maintenance garden perfect for outdoor activities
- Convenient walking distance to train station and town center
- Freehold tenure with on-street parking
- Efficient gas central heating and double glazing
**Property Summary:**
Discover the perfect blend of comfort and style in this beautifully presented three-bedroom end-terrace home, an excellent choice for first-time buyers or savvy investors. This charming property boasts a completely renovated kitchen and bathroom, along with spacious living areas that include two generous doubles, a cozy single, and a versatile loft room ideal for guests or a home office. Step outside to your low-maintenance rear garden, featuring a delightful patio area, artificial grass, and a handy shed for storage.
Located in a quiet side street, this home is just a short walk from local schools, shops, and amenities, alongside easy access to Pontypridd and Treforest train stations. The vibrant town center offers a wide variety of shops, eateries, and the renowned Pontypridd indoor market. With the A470 nearby, commuting to Cardiff or exploring the stunning Brecon Beacons is a breeze. While the property is in a highly desirable area, it’s also situated in a region classified as “very deprived,” providing an opportunity for growth and neighborhood development. Don’t miss out—schedule a viewing today and secure your stylish new home!
3 bedroom terraced house for sale in Ann Street, Pontypridd, CF37 — £120,000 • 3 bed • 1 bath • 688 ft²
3 bedroom end of terrace house for sale in Duke Street, Pontypridd, CF37 — £190,000 • 3 bed • 1 bath • 851 ft²
3 bedroom terraced house for sale in Gelli Road, Gelli, Pentre CF41 — £130,000 • 3 bed • 1 bath • 851 ft²
3 bedroom terraced house for sale in Commercial Street, Senghenydd, CF83 — £180,000 • 3 bed • 2 bath • 1442 ft²
3 bedroom terraced house for sale in Meadow Street, Pontypridd, CF37 — £160,000 • 3 bed • 1 bath • 1045 ft²
3 bedroom house for sale in Ann Street, Cilfynydd, Pontypridd, CF37 — £160,000 • 3 bed • 1 bath • 405 ft²














































































