CM2 0EY - 3 bedroom terraced house for sale in Grove Road, Chelmsford…

View on Property Piper

3 bedroom terraced house for sale in Grove Road, Chelmsford, CM2

Summary - 15 GROVE ROAD CHELMSFORD CM2 0EY

3 bed 1 bath Terraced

**Standout Features:**
- Three spacious bedrooms
- Two versatile reception rooms
- Private rear garden perfect for relaxation
- Permit parking available
- Sought-after location in Old Moulsham
- Freehold property with chain-free purchase
- Light modernisation opportunity

**Summary:**
Nestled in the vibrant heart of Old Moulsham, this charming three-bedroom terraced home is an ideal choice for families, first-time buyers, or savvy investors looking to capitalize on its potential. The property features two generous reception rooms that provide ample space for entertaining, alongside a functional kitchen and a family bathroom upstairs. While the home is entirely livable, it does require light modernisation, allowing new owners to infuse their personal style and boost its value over time.

The private rear garden offers a serene escape for outdoor dining or leisure, while permit parking adds significant convenience. Proximity to highly regarded schools and local amenities enhances its appeal, making this a prime family-friendly location. Wireless and broadband signals are excellent in the area, ensuring connectivity. Though the property was built before 1900, maintaining its period charm, it presents some renovation needs that must be considered. Early viewing is strongly advised to seize this exceptional opportunity in a highly desirable locale before it's too late!

Property Details

Image Descriptions

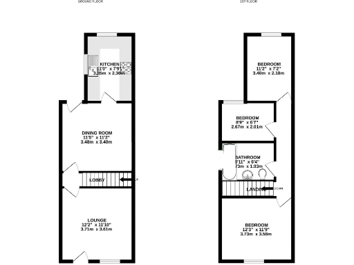
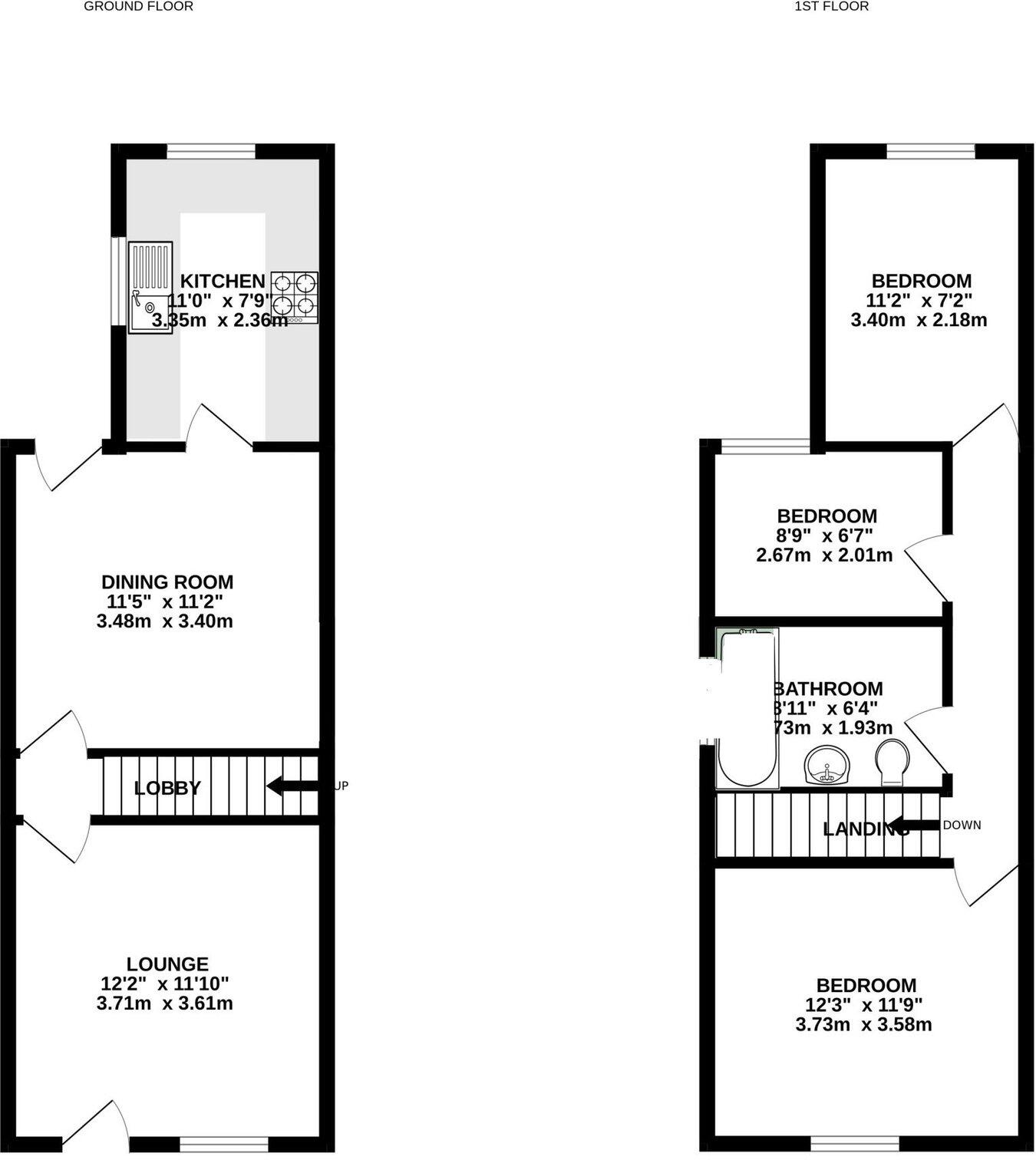
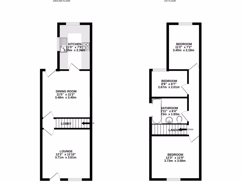
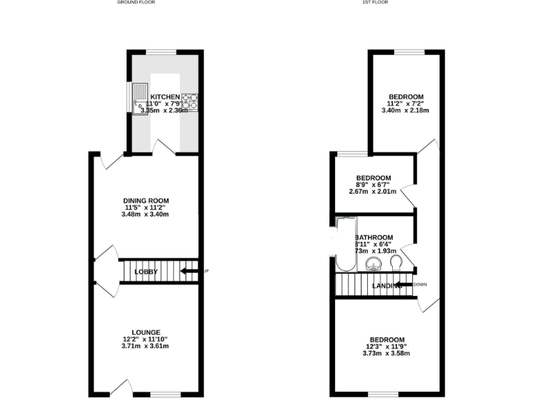
Floorplan Description

Rooms

Textual Property Features

Detected Visual Features

EPC Details

Nearby Schools

Nearest Bars And Restaurants

,,,,}

Nearest General Shops

,,}

Nearest Grocery shops

,,}

Nearest Supermarkets

,,}

Nearest Religious buildings

,,}

Nearest Medical buildings

,,,}

Nearest Airports

,,}

Nearest Leisure Facilities

,,,,}

Nearest Tourist attractions

,,}

Nearest Train stations

,,,,}

Nearest Bus stations and stops

,,,,}

Nearest Hotels

,,}

Tags

Local Market Stats

AirBnB Data

Similar Properties

Meta

High Res Images

Compatible Images

Low res Images

Thumbnails

Raw Images

High Res Floorplan Images

Compatible Floorplan Images

Low res Floorplan Images

FloorplanImages Thumbnail

Raw Floorplan Images