**Standout Features:**
- Beautiful detached residence in Great Moulton
- Spacious open-plan kitchen/living/dining area with vaulted ceiling
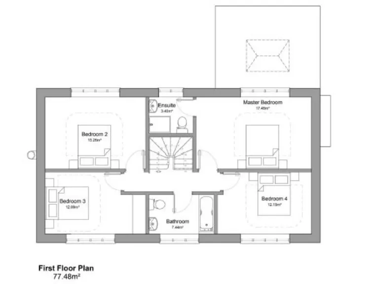
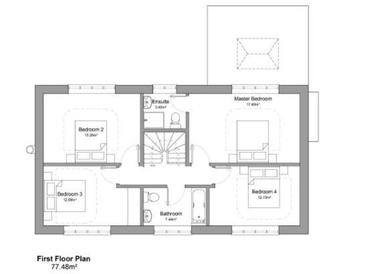
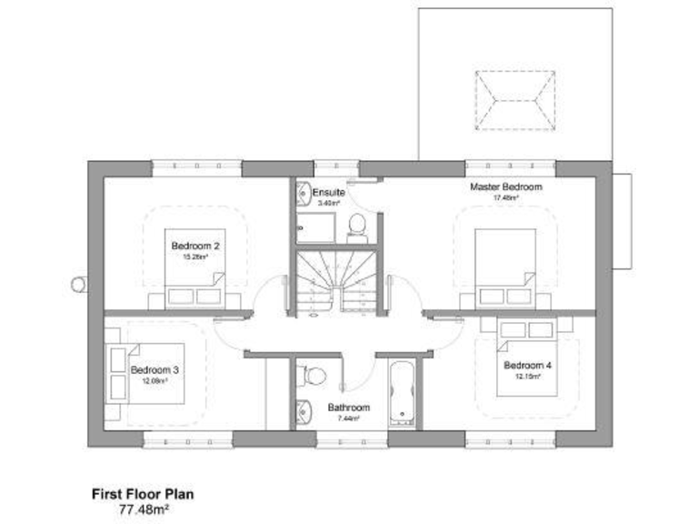
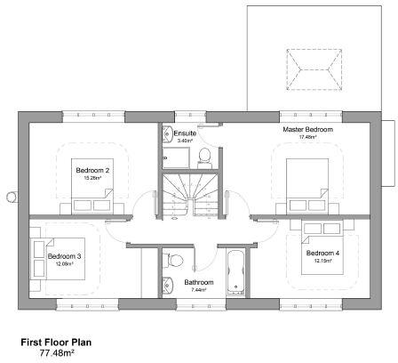
- Four well-proportioned bedrooms, including a master suite with ensuite and walk-in wardrobe
- Generous gardens perfect for family activities
- Equipped with modern amenities: fibre optic broadband, solar panels, and an air source heat pump
- Double garage with electric vehicle charging capability
- Eco-friendly and energy-efficient features
**Summary:**
Nestled in the picturesque village of Great Moulton (NR15 2HE), this modern detached home is perfect for families seeking both space and comfort. Spanning approximately 1,829 square feet, the open-plan kitchen, living, and dining area with vaulted ceilings creates a bright and inviting atmosphere. Enjoy four spacious bedrooms, including a luxurious master suite with its own ensuite and walk-in wardrobe. Relish the expansive gardens ideal for outdoor entertaining or play, complemented by a double garage featuring an electric vehicle charger for added convenience.
Set within a community known for its low crime rate and affluent atmosphere, this property offers both tranquility and connectivity with fast broadband speeds. Just a stone’s throw away from good-rated local schools and the amenities of village life, it’s a perfect family haven.
While this stunning new build has much to offer, be mindful that the area has average mobile signal coverage. Don’t miss out on this unique opportunity to embrace modern living in a serene setting—schedule your viewing today!
3 bedroom detached bungalow for sale in The O'Sullivan, St Peters Gardens, Great Moulton, Norfolk, NR15 — £650,000 • 3 bed • 2 bath • 1697 ft²
4 bedroom detached house for sale in Potters Crescent, Great Moulton, NR15 — £425,000 • 4 bed • 2 bath • 1738 ft²
3 bedroom detached house for sale in Black Mill Lane, Great Moulton, NR15 — £350,000 • 3 bed • 2 bath • 1216 ft²
4 bedroom detached house for sale in Potters Crescent, Great Moulton, Norwich, Norfolk, NR15 — £400,000 • 4 bed • 2 bath • 1418 ft²
4 bedroom detached house for sale in Great Moulton, NR15 — £850,000 • 4 bed • 4 bath • 3000 ft²
4 bedroom bungalow for sale in Station Road, Great Moulton, Norwich, Norfolk, NR15 — £375,000 • 4 bed • 3 bath • 1845 ft²










































