**Standout Features:**
- Grade II listed semi-detached house brimming with character
- Spacious 65ft x 63ft enclosed rear garden, perfect for families
- Flexible living spaces with a modern extension adding additional rooms
- Prime central village location within walking distance to amenities and schools
- Off-road parking with a secure gravel driveway
- Exceptional local schools rated 'outstanding' and 'good' by OFSTED
**Concerns:**
- Grade II listing may restrict renovation potential
- Some structural elements may require careful maintenance considerations
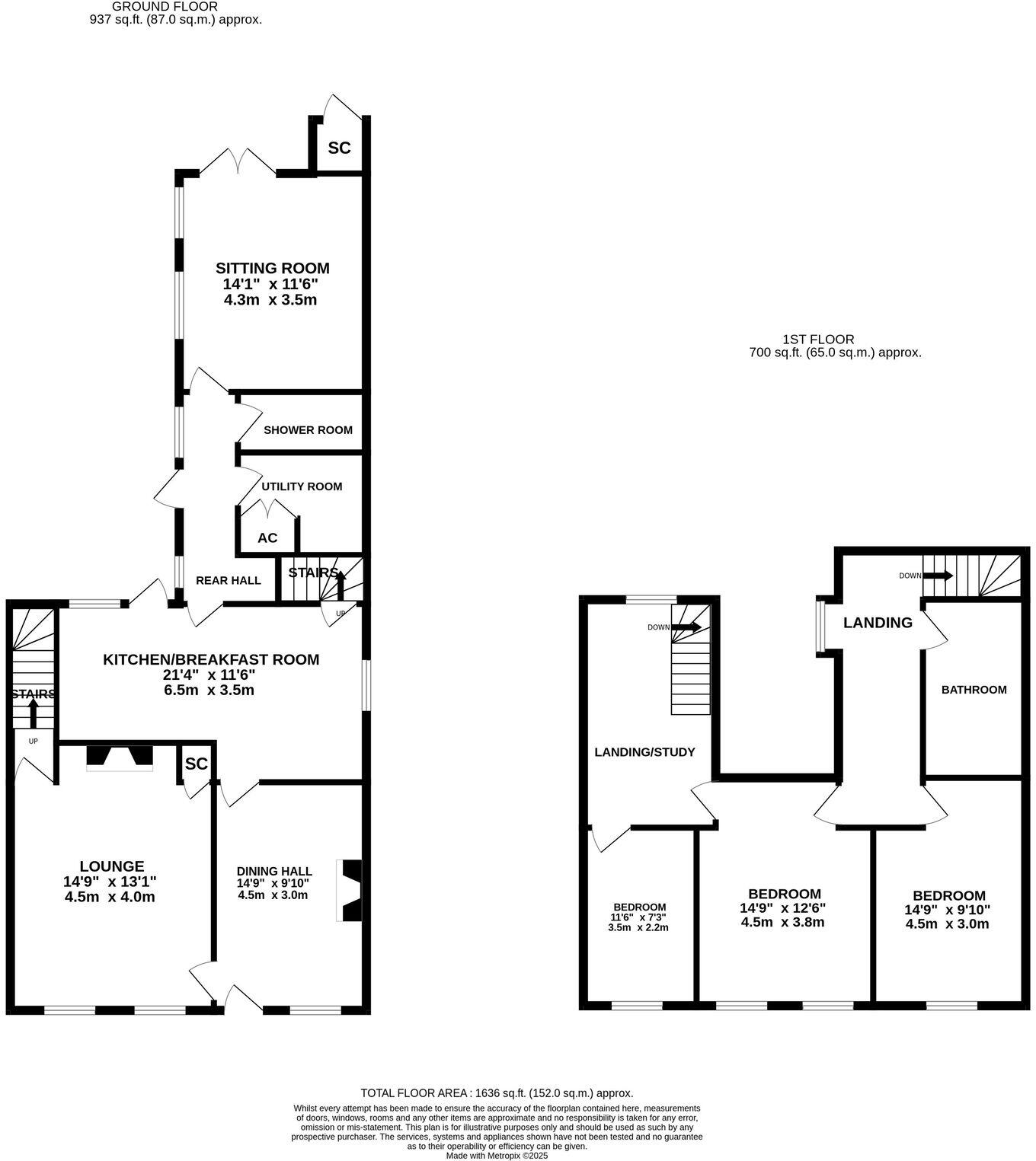
Discover a beautifully presented Grade II listed semi-detached house nestled in the heart of Gamlingay, a charming and affluent village ideally suited for families and investors alike. This character-filled home features traditional elements such as feature fireplaces and sash windows, seamlessly complemented by a modern extension that provides additional living space, including a separate kitchen, shower room, and sitting room.
The property boasts three generous bedrooms and a large family bathroom on the first floor, ensuring ample space for a growing family. The expansive 65ft x 63ft garden is fully enclosed, offering an idyllic outdoor retreat for children to play or for entertaining guests. With generous parking options and a gravel driveway, you'll enjoy convenience and security.
Gamlingay's vibrant community offers a range of amenities just a stone's throw away, including local shops and primary schools, all while being within the ‘outstanding’ Comberton Secondary School catchment area. Excellent transport links to Cambridge and London enhance the property's appeal for commuters seeking the balance of rural tranquility and city access.
This unique opportunity won’t last long—come and envision your new life in this enchanting home, where character and convenience meet!
5 bedroom detached house for sale in Church Street, Gamlingay SG19 3JH, SG19 — £875,000 • 5 bed • 4 bath • 3323 ft²
4 bedroom country house for sale in Church Street, Gamlingay, Sandy, Bedfordshire, SG19 3JH, SG19 — £750,000 • 4 bed • 2 bath • 2210 ft²
4 bedroom detached house for sale in Charnocks Close, Gamlingay, Sandy, Bedfordshire, SG19 3JX, SG19 — £799,950 • 4 bed • 2 bath • 2401 ft²
3 bedroom semi-detached house for sale in Mill Street, Gamlingay, Cambridgeshire, SG19 — £390,000 • 3 bed • 2 bath • 1558 ft²
2 bedroom end of terrace house for sale in Church Street, Gamlingay, Sandy, SG19 — £300,000 • 2 bed • 1 bath • 618 ft²
4 bedroom house for sale in Clare Court, Gamlingay, SG19 — £500,000 • 4 bed • 2 bath • 2165 ft²














































































































































