Detached three-bedroom house with private rear garden and driveway parking
Detached garage providing secure parking and storage
Open-plan kitchen/diner with French doors to the garden
EPC rating B and freehold tenure
Modest internal area (approx. 971 sq ft) — not spacious by some standards
Compact entrance hall and staircase may limit circulation space
Fast broadband, excellent mobile signal and very low local crime
Close to good and outstanding schools and local amenities
Set on a generous plot in sought-after Buckshaw Village, this modern three-bedroom detached house offers practical family living with private outdoor space. The property benefits from a detached garage, driveway parking and a non‑overlooked rear garden, making it easy to enjoy outdoor time and safe play for children.
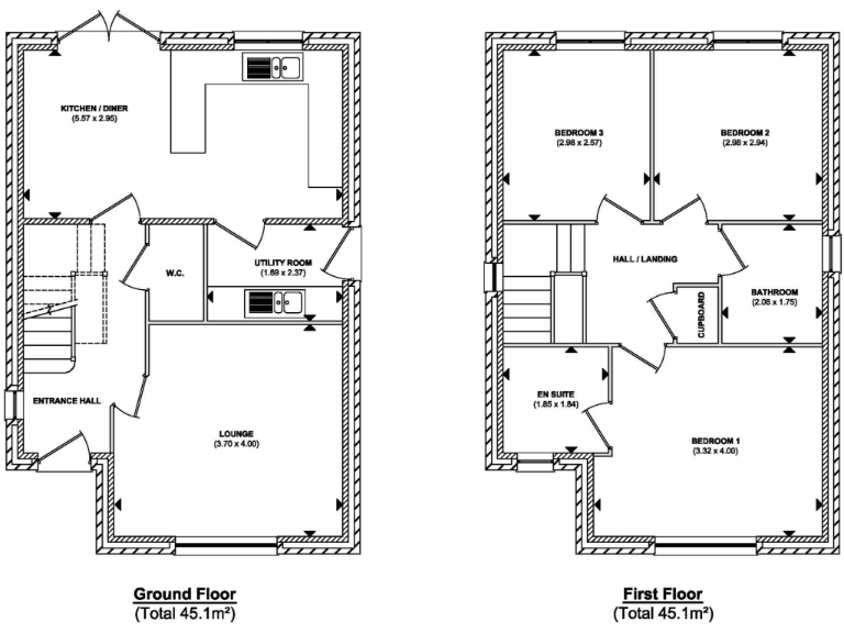
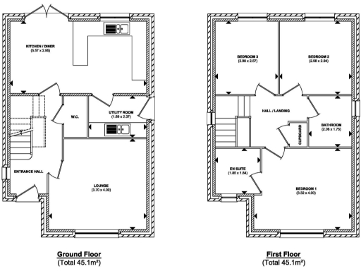
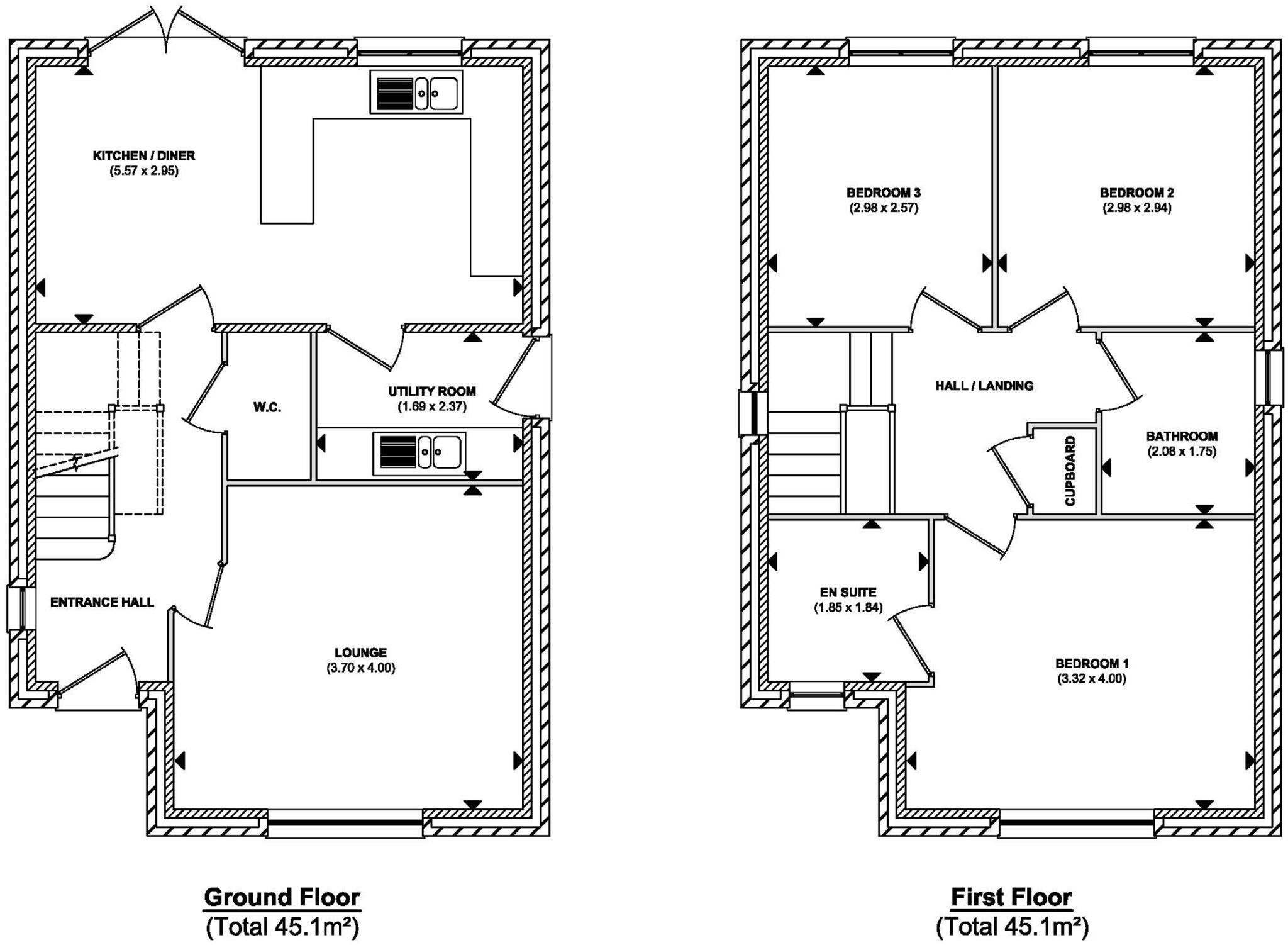
Inside, the layout is practical: an entrance hall leads to a living room and an open-plan kitchen/diner with French doors onto the garden. A utility room with an external door adds day-to-day convenience. Upstairs are three well-proportioned bedrooms, a family bathroom and an en‑suite to the main bedroom, providing flexibility for families or home-working arrangements.
Key strengths include an EPC rating of B, freehold tenure, fast broadband and excellent mobile signal — useful for remote working. The house sits in an affluent, low-crime area close to good and outstanding local schools, public transport links and leisure amenities.
Notable considerations: the internal floor area is modest at around 971 sq ft, which may feel limiting for very large families or those seeking generous reception space. The entrance hallway and staircase are compact. Council tax is moderate. Overall, this is a well-presented family home offering good location and practical space rather than extensive living proportions.































































































