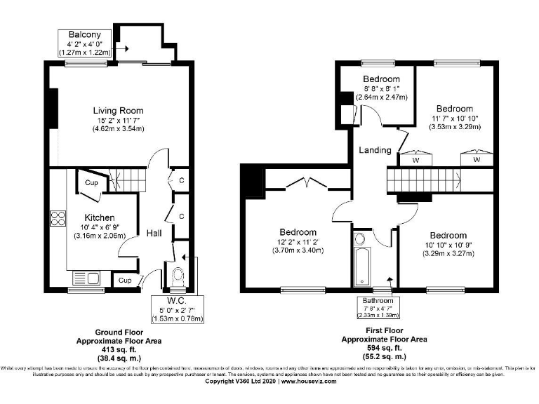
**Standout Features:**
- 4 spacious bedrooms
- Bright living/dining area with balcony access
- Proximity to major universities — ideal for investment
- Excellent transport links (Bethnal Green Tube and Cambridge Heath Overground)
- Close to outdoor spaces like Victoria Park and Broadway Market
**Notable Concerns:**
- Leasehold with 85 years remaining; lease renewal needed soon
- Above average crime rates in the area
- Requires some maintenance, notably insulation improvements
This four-bedroom apartment presents an outstanding opportunity for families or investors looking for a rental property. With a generous total area of 1,351 sq ft and a contemporary layout, it features a bright living space with access to a balcony, a separate kitchen, and ample room for relaxation. The property is currently tenanted until September 2025, guaranteeing immediate rental income while you consider possible renovations or updates.
Enjoy the vibrant lifestyle of East London, with numerous shops, restaurants, and the scenic greenery of Victoria Park just a short walk away. Situated near excellent transport links, commuting to Liverpool Street is just 35 minutes on foot, making it perfect for busy professionals or students.
Note that this leasehold property requires immediate attention with its lease, which has only 85 years remaining, and could benefit from better insulation. With potential for improvement and its prime location in a bustling area, seize this opportunity before it's gone!
4 bedroom apartment for sale in Barnsley Street, London, E1 — £485,000 • 4 bed • 1 bath • 966 ft²
2 bedroom apartment for sale in Victoria Park Square, London, E2 — £550,000 • 2 bed • 1 bath • 612 ft²
3 bedroom apartment for sale in Whiston Road, Broadway Market, Hackney, E2 — £475,000 • 3 bed • 1 bath • 700 ft²
1 bedroom flat for sale in Ducere House, 14 Viaduct Street, London, E2 — £385,000 • 1 bed • 1 bath • 527 ft²
4 bedroom apartment for sale in Hackney Road, E2 — £715,000 • 4 bed • 4 bath • 1265 ft²
1 bedroom flat for sale in Hackney Road, London, E2 — £345,000 • 1 bed • 1 bath • 363 ft²


























































