Spacious, renovated family home beside Pittville Park with garage and parking.
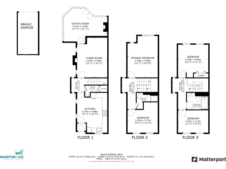
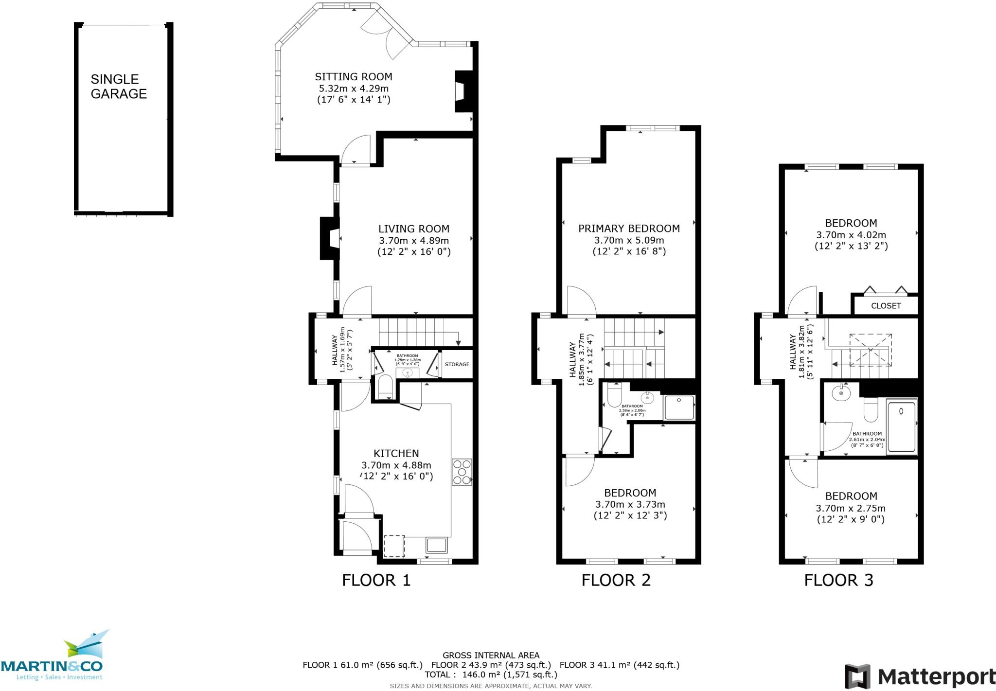
Four double bedrooms across three floors, spacious room proportions
Two shower rooms plus ground-floor cloakroom, practical for families
Garage and private rear parking space with gated access
Conservatory plus formal sitting room with log-burning stove
Paved, low-maintenance rear garden; not suitable for extensive planting
Newly renovated interior; ready to move into
Built 1967–75 with flat roof — potential future maintenance needs
Local crime rates higher than average; council tax above average
Set directly beside Pittville Park, this newly renovated four-double-bedroom townhouse offers spacious family living across three floors. The ground floor has a contemporary kitchen-diner, formal sitting room with a log-burning stove, and a conservatory that opens onto a low-maintenance paved garden. Two shower rooms and a bright skylit landing serve the upper levels, with generous rear bedrooms enjoying park views.
Practical extras include a garage and rear parking space accessed by a gated path, double glazing and gas central heating, and freehold ownership offered chain free. The house was remodelled by the current owners and presents well throughout for immediate occupation, making it suitable for families seeking space close to green amenities.
Buyers should note material facts: the property dates from the late 1960s/early 1970s and has a flat-roofed, modernist form that can carry future maintenance considerations. Council tax is above average for the area, and crime statistics for the locality are higher than typical; purchasers may wish to review local safety reports. The small paved garden keeps upkeep minimal but limits larger outdoor landscaping options.
4 bedroom town house for sale in Albert Court, Albert Road, Pittville, Cheltenham, GL52 — £765,000 • 4 bed • 2 bath • 1894 ft²
4 bedroom semi-detached house for sale in Clover Drive, Prestbury, Cheltenham, GL52 — £580,000 • 4 bed • 3 bath • 1685 ft²
4 bedroom semi-detached house for sale in Northcroft, The Park, Cheltenham, GL50 — £675,000 • 4 bed • 3 bath • 1034 ft²
2 bedroom terraced house for sale in Prince Regent Avenue, Cheltenham, GL50 4GB, GL50 — £285,000 • 2 bed • 1 bath • 602 ft²
4 bedroom semi-detached house for sale in Clover Drive, Cheltenham, GL52 — £580,000 • 4 bed • 3 bath • 1685 ft²
4 bedroom town house for sale in Denman Avenue, Cheltenham, GL50 4GH, GL50 — £599,950 • 4 bed • 3 bath • 1830 ft²


























































































