Brand-new, single-level living with large garden and integral garage.
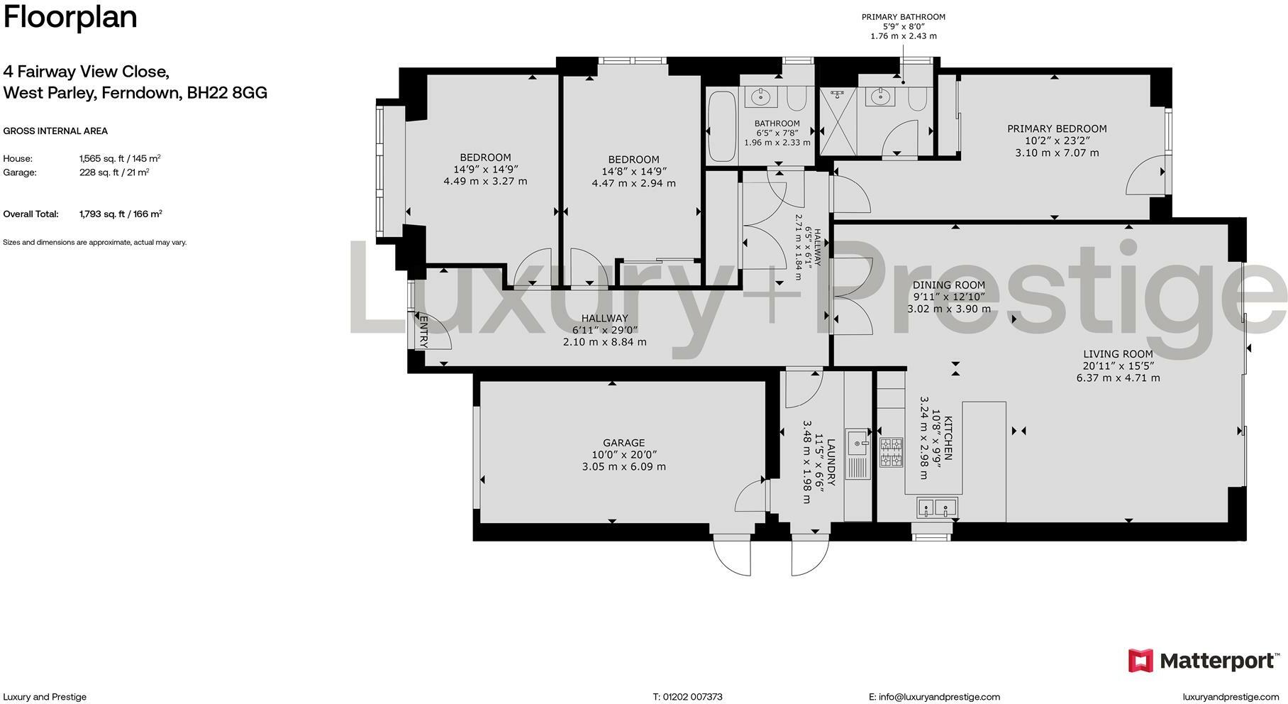
Three bedrooms and two bathrooms within 1,793 sq ft single-storey layout
This brand-new detached bungalow offers roomy single-level living finished to a high standard. At 1,793 sq ft the layout delivers a large open-plan kitchen/living/dining area, separate utility, master bedroom with en suite, two further bedrooms and a modern family bathroom — all ready to move into.
Outside, the property sits on a generous, level plot with landscaped low-maintenance front and rear gardens, off-road parking and an integral garage. The traditional exterior of brick and render with clay tiles complements the contemporary, bespoke interiors inside.
Positioned just a short drive from Ferndown and historic Wimborne, the location suits those seeking a quiet residential setting with easy access to local shops and outstanding secondary schools nearby. Practical considerations include average mobile reception and notably slow broadband speeds, which may affect heavy remote working or streaming.
Overall, this bungalow will appeal to buyers looking to downsize without compromising on space, or anyone wanting long-term, single-storey accommodation that requires no immediate work. It is offered freehold and ready for immediate occupation.
3 bedroom bungalow for sale in Ridgeway, West Parley, Ferndown, Dorset, BH22 — £575,000 • 3 bed • 2 bath • 887 ft²
3 bedroom bungalow for sale in Mayfield Drive, Ferndown, Dorset, BH22 — £495,000 • 3 bed • 2 bath • 1213 ft²
3 bedroom detached bungalow for sale in Oaks Drive, St. Leonards, BH24 — £785,000 • 3 bed • 2 bath • 1392 ft²
3 bedroom bungalow for sale in Stalbridge Drive, Ferndown, Dorset, BH22 — £600,000 • 3 bed • 2 bath • 1148 ft²
3 bedroom bungalow for sale in Bracken Road, Ferndown, Dorset, BH22 — £475,000 • 3 bed • 3 bath • 1242 ft²
2 bedroom detached bungalow for sale in Horsham Avenue, Bournemouth, BH10 — £475,000 • 2 bed • 2 bath • 852 ft²






























































