Newly renovated five-bedroom detached on a large private plot with leisure suite and double garage.
Five double bedrooms across generous 3,064 sq ft layout
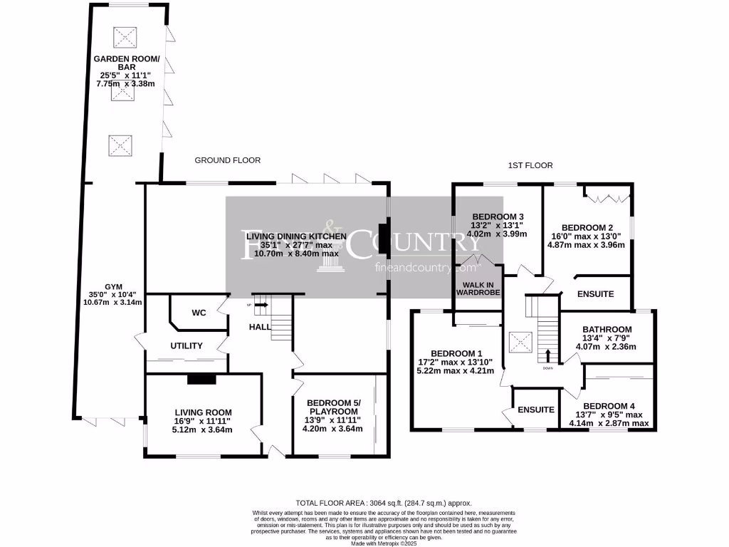
Set well back on a generous, private plot, this newly refurbished five-double-bedroom detached house blends contemporary living with family-orientated practicality. The ground floor centres on an L-shaped open-plan living kitchen with Corian surfaces and bi-fold doors that link the interior to a flagged terrace and landscaped northwest-facing rear garden. A purpose-built leisure suite with bar area and adjoining home gym adds luxury and flexible space for play, work-out or entertaining.
Upstairs, a galleried landing leads to a principal bedroom suite with fitted furniture and an en-suite, plus three further double bedrooms (two with fitted wardrobes and one with walk-in dressing room) and a family bathroom with spa bath and steam facility. The accommodation totals about 3,064 sq ft, offering generous reception space and useful ground-floor utility/boot room with shower and direct access to the leisure facilities.
Outside, low-maintenance artificial lawns, paved walkways and a raised flagged terrace give private, easy-care gardens. An electronically operated double garage with power and extra driveway parking provides secure parking. Practical details: freehold tenure, mains gas central heating, EPC rating C and Council Tax Band D.
Important considerations: the property lies in an area recorded as having high crime rates and high deprivation locally; prospective buyers should consider local context and services. The home was built in 1967 but has undergone extensive modernisation — buyers should confirm services, boundaries and any works by survey prior to offer.
5 bedroom detached house for sale in Worksop Road, Sheffield, S25 — £850,000 • 5 bed • 3 bath • 2640 ft²
5 bedroom detached house for sale in Chaloner Heights, Blacker Hill, Barnsley, S74 — £565,000 • 5 bed • 2 bath • 1734 ft²
5 bedroom detached house for sale in Worksop Road, South Anston, Sheffield, S25 5ET, S25 — £850,000 • 5 bed • 2 bath • 3306 ft²
5 bedroom detached house for sale in Lundhill Road, Wombwell, Barnsley, S73 — £425,000 • 5 bed • 3 bath • 2315 ft²
5 bedroom detached house for sale in South Grove Drive, Hoyland, Barnsley, S74 — £500,000 • 5 bed • 2 bath • 3000 ft²
5 bedroom detached house for sale in Ripley Grove, Barnsley, S75 2RX, S75 — £465,000 • 5 bed • 2 bath • 1408 ft²














































































































































































