**Standout Features:**
- Detached dormer bungalow on a generous 0.14-acre plot
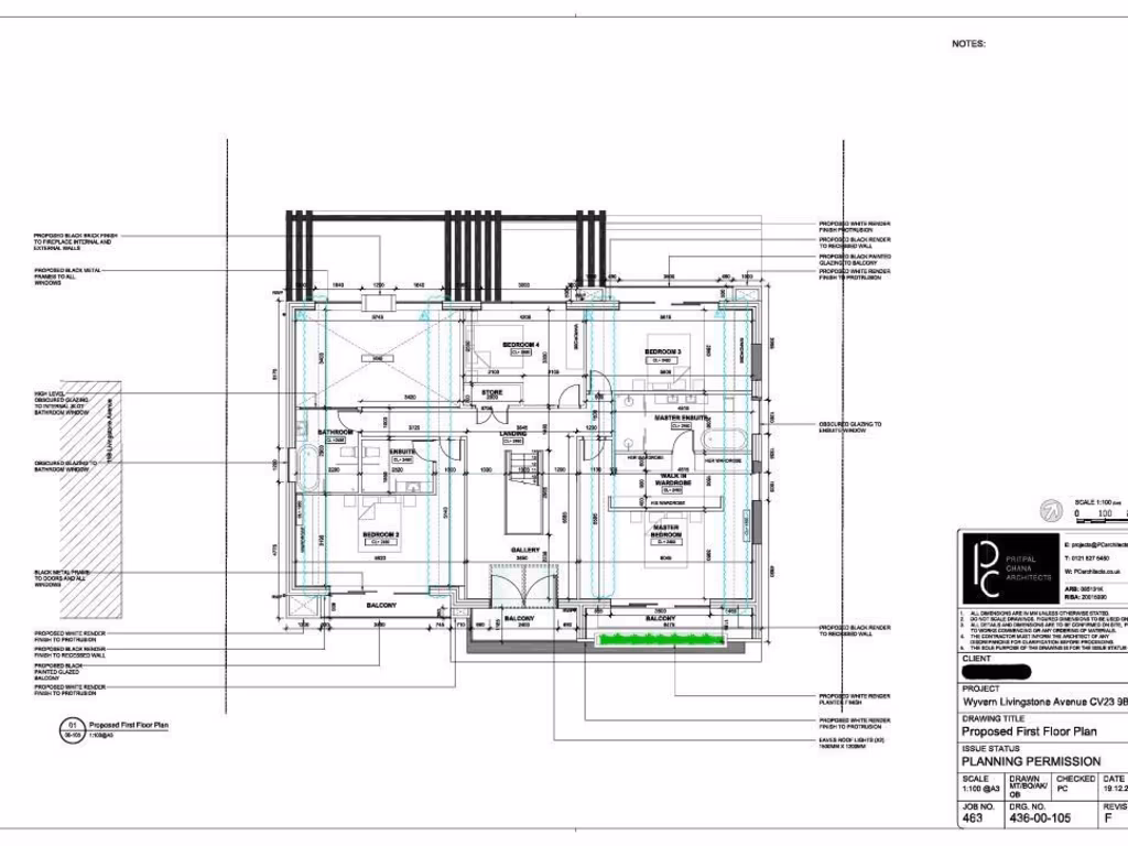
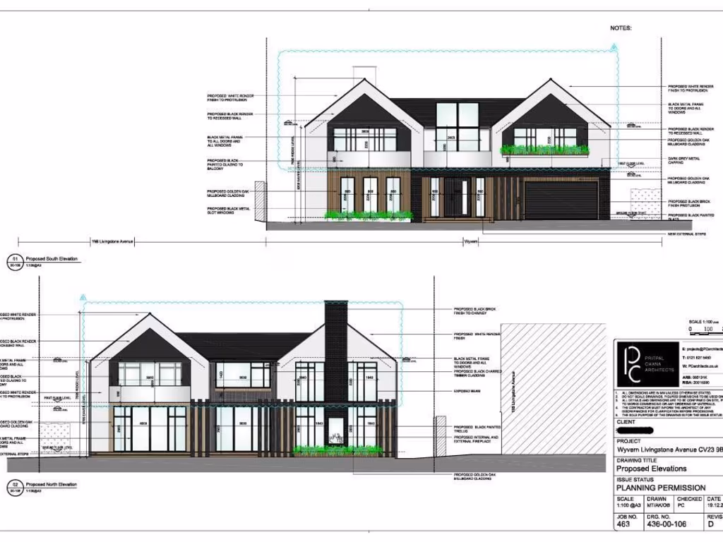
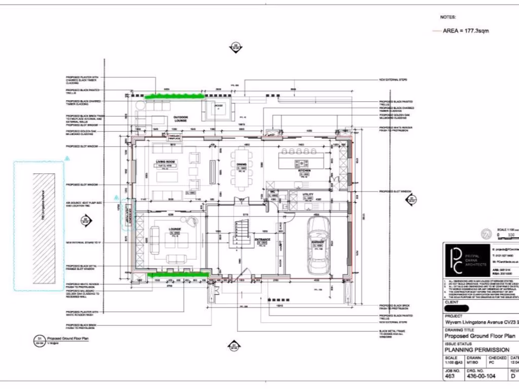
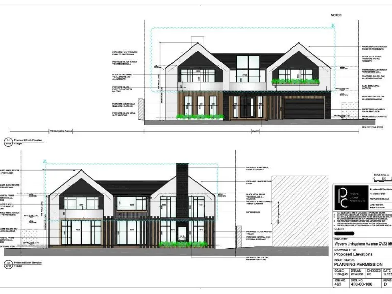
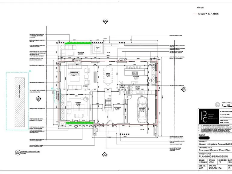
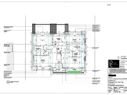
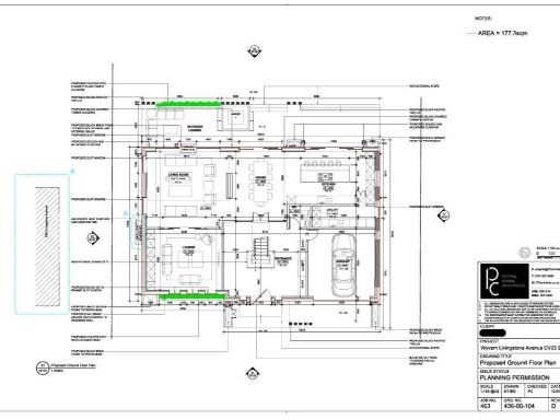
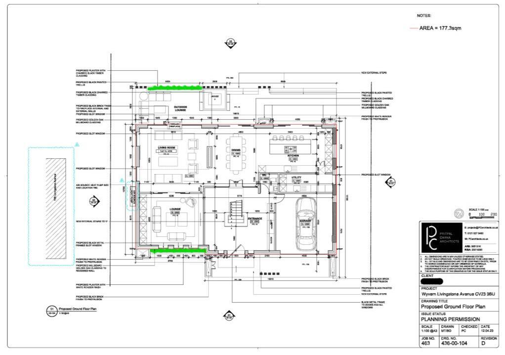
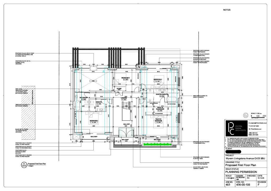
- Planning permission granted for a large 4-bedroom new home (over 3000 sq. ft).
- Detached garage/workshop and additional outbuilding
- Quiet village location with excellent transport links
- 3 bedrooms and 2 bathrooms in need of modernization
**Summary:**
Nestled in a tranquil village setting, this detached dormer bungalow offers the perfect blend of potential and privacy. Spanning a generous 0.14 acres, the property features three bedrooms and two bathrooms, with ample space for family living. The current structure is ready for renovation, providing an exciting opportunity for buyers looking to customize their dream home. Notably, planning permission has already been granted for the demolition of the existing dwelling and the construction of a substantial new home, allowing for future expansion and personalized design.
The exterior boasts a large garden, filled with mature trees and shrubs, fostering a secluded ambiance. In addition to a substantial driveway capable of accommodating multiple vehicles, you'll find a detached garage/workshop and an outbuilding — perfect for storage or creative projects. Located within easy reach of local amenities, schools, and major transport links, this property combines comfort and investment potential. With its chain-free status and a planning permission that expires in 2027, opportunities like this won’t last long!
3 bedroom semi-detached house for sale in Chapel Street, Long Lawford, Rugby, CV23 — £250,000 • 3 bed • 1 bath • 1001 ft²
3 bedroom semi-detached house for sale in Townsend Lane, Long Lawford, Rugby, CV23 — £259,950 • 3 bed • 1 bath • 1243 ft²
4 bedroom detached house for sale in Rugby Road, Church Lawford, Rugby, CV23 — £425,000 • 4 bed • 2 bath • 1622 ft²
3 bedroom semi-detached house for sale in Chapel Street, Long Lawford, Rugby, CV23 — £300,000 • 3 bed • 1 bath • 894 ft²
3 bedroom detached house for sale in Kerry Hill Drive, Long Lawford, Rugby, CV23 — £315,000 • 3 bed • 2 bath • 1090 ft²
2 bedroom semi-detached house for sale in Townsend Lane, Long Lawford, Rugby, CV23 — £210,000 • 2 bed • 1 bath • 694 ft²


















































































































