Short walk to Buckhurst Hill tube, large gardens and clear extension potential.
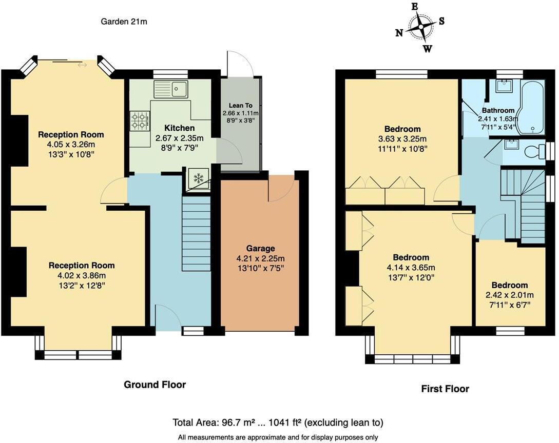
Three bedrooms and first-floor family bathroom
Set on a peaceful, tree-lined street in Buckhurst Hill, this 1930s semi-detached home offers three bedrooms, a through lounge and a generous mature rear garden. The property occupies around 1,041 sq ft and combines original period charm with practical modern updates such as double glazing and a contemporary first-floor bathroom.
The plot is a standout feature: a long, private rear garden and a single garage plus driveway provide excellent outdoor space and parking—rare for the area—and clear scope for ground-floor rear or loft extensions (subject to planning). It is a short walk to Buckhurst Hill tube, good schools and local shops, making it a comfortable choice for growing families and commuters.
Practical points to note: the house has solid brick walls (likely without cavity insulation) so there is scope to improve energy efficiency. Accommodation is average in overall size with a single family bathroom, and council tax is above average. These factors, combined with the extension potential, make the property well suited to buyers looking to add value through targeted refurbishment rather than those wanting a completely maintenance-free move.
This freehold home balances everyday convenience with longer-term potential. If you value proximity to green spaces such as Epping Forest, Linders Field and Roding Valley Lake alongside straightforward commuting into central London, this property merits viewing.
3 bedroom semi-detached house for sale in Roding View, Buckhurst Hill, Essex, IG9 — £750,000 • 3 bed • 1 bath • 1180 ft²
5 bedroom detached house for sale in Stradbroke Grove, Buckhurst Hill, Essex, IG9 — £1,675,000 • 5 bed • 4 bath • 2400 ft²
3 bedroom detached house for sale in Woodside, Buckhurst Hill, IG9 — £975,000 • 3 bed • 1 bath • 1561 ft²
3 bedroom detached house for sale in Fairlands Avenue, Buckhurst Hill, IG9 — £975,000 • 3 bed • 2 bath • 1195 ft²
4 bedroom detached house for sale in Bancroft Avenue, Buckhurst Hill, IG9 — £875,000 • 4 bed • 2 bath • 1372 ft²
3 bedroom semi-detached house for sale in Salisbury Gardens, Buckhurst Hill, IG9 — £600,000 • 3 bed • 1 bath • 731 ft²


























































































































