Charming three-bed Wilton cottage with period character, garden and convenient links to Salisbury..
Three double-fronted bedrooms with high ceilings and period sash windows
Attractive rear garden with lawn, mature flowers and fruit trees
Well-proportioned living and dining rooms plus useful boot/utility room
Ground-floor shower room plus upstairs family bathroom
Solid brick construction; likely no wall insulation — upgrade advisable
EPC rated C; mains gas boiler and radiators in place
Medium local flood risk; small plot size to maintain
Average broadband speeds despite excellent mobile signal
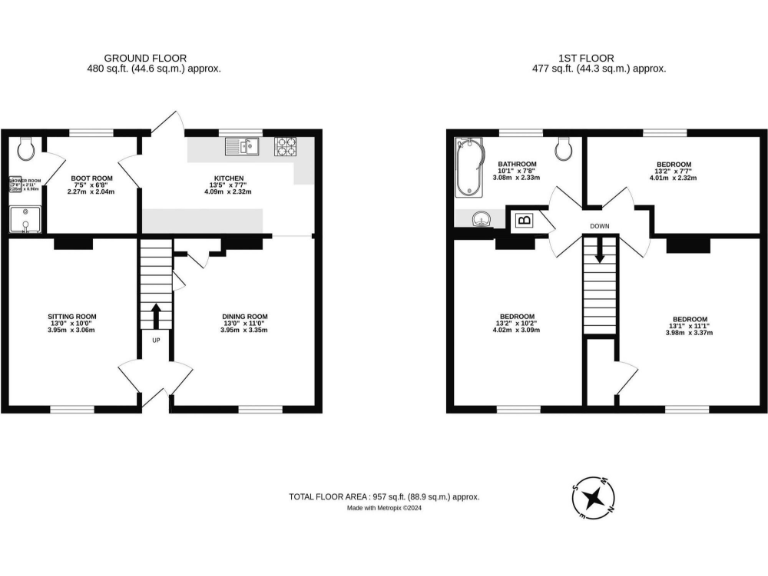
An attractive three-bedroom mid-terrace Georgian cottage in the heart of Wilton, quietly positioned yet moments from the town centre. High ceilings and sash windows give period character throughout, while the living spaces are arranged for practical family life: sitting room, dining room, fitted kitchen, ground-floor shower room and an auxiliary boot/utility room.
Upstairs are three well-proportioned bedrooms served by a family bathroom. The property is freehold, of solid brick construction and offers double glazing; the current vendor has maintained the home but fabric upgrades (notably insulation) would improve comfort and running costs. The Energy Performance Certificate is C.
Externally the house benefits from a small front garden and a delightful rear garden with lawn, mature flowers and fruit trees — a private, productive outdoor space for families or keen gardeners. Flooding risk is classed as medium locally, and the plot size is modest, so external maintenance is manageable but worth noting for buyers.
Wilton’s market-town setting provides local shops, a supermarket, post office and good links to Salisbury for wider amenities, schools and transport. Broadband is average but mobile signal is excellent. This property will suit buyers seeking a period home with outdoor space and scope to make targeted improvements.
3 bedroom terraced house for sale in Russell Street, Wilton, SP2 — £345,000 • 3 bed • 1 bath • 877 ft²
3 bedroom terraced house for sale in Russell Street, Wilton, Salisbury, SP2 — £650,000 • 3 bed • 2 bath • 2076 ft²
3 bedroom semi-detached house for sale in West Street, Wilton, Salisbury, SP2 — £450,000 • 3 bed • 1 bath • 1313 ft²
2 bedroom terraced house for sale in Albany Terrace, Wilton, SP2 — £235,000 • 2 bed • 1 bath • 719 ft²
3 bedroom character property for sale in West Street, Wilton, Salisbury, SP2 — £450,000 • 3 bed • 2 bath • 1451 ft²
3 bedroom end of terrace house for sale in Russell Street, Wilton, Salisbury, SP2 — £375,000 • 3 bed • 1 bath • 1022 ft²














































