Chain-free three-bedroom semi with garden—ideal first-time buy in Bedworth..
Chain-free freehold three-bedroom semi-detached house
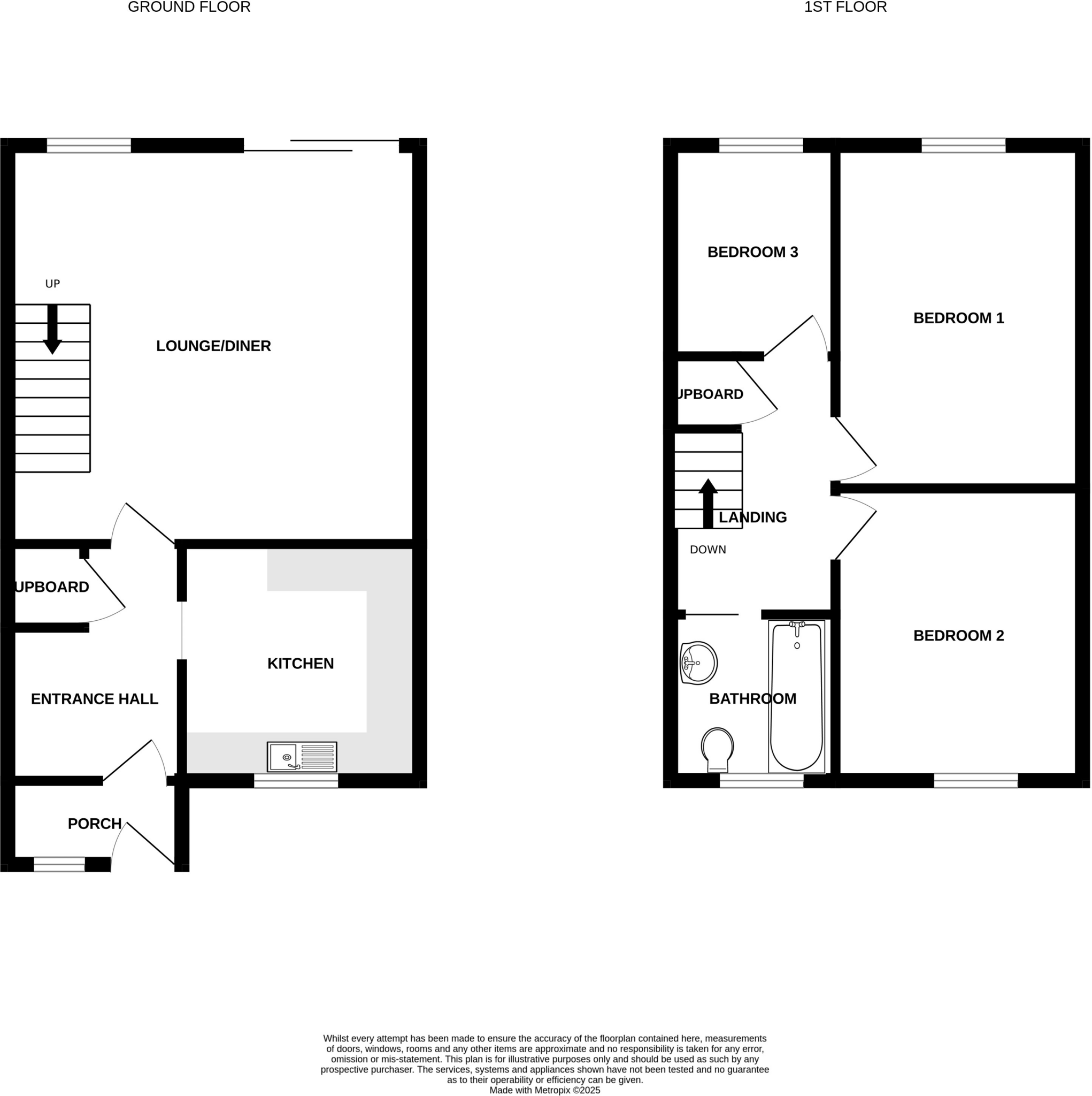
A chain-free, three-bedroom semi-detached home in a popular Bedworth neighbourhood, offered freehold and ready for a new owner. The house has a practical layout with a spacious lounge/diner, a functional kitchen and an enclosed rear garden — good for outdoor space and storage. Double glazing and gas central heating provide reasonable energy performance (EPC C), and council tax sits in Band B, keeping running costs modest.
The property is compact (approx. 732 sqft) and sits on a small plot, so it will suit first-time buyers, downsizers or investors looking for a straightforward purchase rather than buyers seeking large family accommodation. The single bathroom and modest bedroom sizes mean flexibility is limited; some modernisation would update the kitchen, bathroom and decor to personal taste.
Buyers should note practical points: the home lies within an ex-coal-mining area, and services/fittings have not been tested — a survey is recommended. There is no onward chain, which can speed completion, but the small plot and size are the main constraints. Overall, this is a sound, affordable starter home with scope to add value through modest improvements.
3 bedroom detached house for sale in Holyoak Close, Bedworth, CV12 — £300,000 • 3 bed • 2 bath • 892 ft²
2 bedroom semi-detached house for sale in Cheltenham Close, Bedworth, Warwickshire, CV12 — £210,000 • 2 bed • 1 bath • 540 ft²
3 bedroom semi-detached house for sale in Marston Lane , Bedworth , CV12 — £229,950 • 3 bed • 1 bath • 840 ft²
3 bedroom terraced house for sale in Heath Road, Bedworth, CV12 — £185,000 • 3 bed • 2 bath
3 bedroom terraced house for sale in Joseph Luckman Road, Bedworth, Warwickshire, CV12 — £190,000 • 3 bed • 1 bath • 804 ft²
3 bedroom semi-detached house for sale in Bede Road, Stockingford, CV10 — £225,000 • 3 bed • 1 bath • 819 ft²






















































