Move-in ready apartment in trendy New River Village, ideal for first-time buyers or investors.
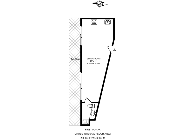
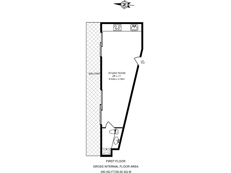
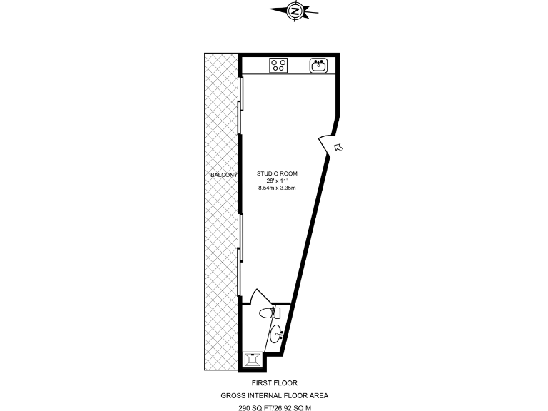
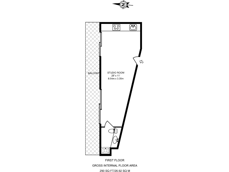
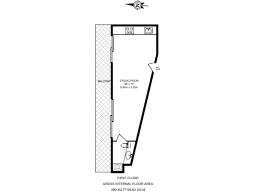
Naturally bright open-plan living with private decked balcony
Modern kitchen with fitted appliances; double-glazed windows
24-hour concierge, on-site gym and communal roof terrace
Compact layout — best suited to single occupant or couple
Leasehold tenure — check remaining term and service charges
Electric room heaters (higher running costs than gas central heating)
Average broadband speeds despite excellent mobile signal
Built 2003–2006; low immediate maintenance expected
Set on New River Avenue in the sought-after New River Village, this well-presented studio offers low-maintenance city living with useful communal amenities. The open-plan room flows onto a private decked balcony, extending living space and bringing a welcome outdoor aspect. A modern kitchenette with fitted appliances and double-glazed windows keeps the apartment move-in ready.
Residents benefit from practical extras: a 24-hour concierge, on-site gym and a communal roof terrace — rare conveniences for a property at this price point. The development sits in a lively, inner-city area with good local schools and plentiful shops, cafes and transport options nearby.
Important practical notes: the flat is leasehold and heated by electric room heaters, which may increase running costs compared with communal gas systems. Accommodation is compact, so it suits buyers seeking a pied-à-terre, first home, or rental investment rather than a long-term family property. Broadband speeds are average; mobile signal is excellent.
Overall this is a straightforward, low-upkeep option for buyers who prioritise location and amenities over large living space. The property’s modern build (circa 2003–2006) and contemporary finish reduce immediate maintenance needs, while the concierge and communal facilities add rental appeal or convenience for a primary residence.
Studio flat for sale in Devan Grove, Manor House, London, N4 — £325,000 • 1 bed • 1 bath • 401 ft²
Studio flat for sale in Devan Grove, Manor House, London, N4 — £315,000 • 1 bed • 1 bath • 401 ft²
2 bedroom apartment for sale in Amazon Apartments, New River Village, Hornsey, N8 — £475,000 • 2 bed • 2 bath • 787 ft²
Studio flat for sale in Devan Grove, Manor House, London, N4 — £325,000 • 1 bed • 1 bath • 451 ft²
Studio flat for sale in Granita Court, Cross Lane, Hornsey, N8 — £400,000 • 1 bed • 1 bath • 538 ft²
Studio flat for sale in Cross Lane, London, N8 — £350,000 • 1 bed • 1 bath • 435 ft²










































































































































