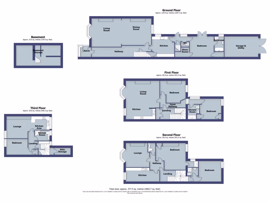
**Highlight Features:**
- 6 spacious bedrooms and 5 bath facilities
- Stunning marine views over Cardigan Bay and the harbour
- 4 kitchens, ideal for conversion into flats or multi-family living
- Substantial double garage with additional storage
- Previously a successful guest house, now in private use
**Concise Property Summary:**
Discover a remarkable 6-bedroom terraced house on South Marine Terrace, offering an opportunity for investment or multi-family living with its versatile layout across 5 expansive floors. Boasting breathtaking views of Cardigan Bay, this well-maintained property features 4 modern kitchens and 5 bathrooms, making it ideal for conversion into flats or as a family home where independent living is desired.
The ground floor serves as a self-contained residence, complete with generous living spaces, while the upper levels showcase views of the harbour. A rear double garage provides secure parking and extra utility space. While the property has been lovingly maintained—featuring double glazed windows and gas heating—its sheer size and layout provide significant renovation potential.
Situated in a vibrant coastal city known for tourism, this property is a solid investment in a sought-after location. The nearby amenities and beautiful surrounding landscapes enhance its appeal, making this an exclusive opportunity you won’t want to miss. Embrace comfort and flexibility in your new home, or explore rental potential in this ever-popular area. Act Fast – opportunities like this are rare!
10 bedroom terraced house for sale in South Marine Terrace, Aberystwyth, SY23 — £599,000 • 10 bed • 7 bath • 3564 ft²
9 bedroom terraced house for sale in Marine Terrace, Aberystwyth, SY23 — £479,950 • 9 bed • 5 bath • 3600 ft²
6 bedroom terraced house for sale in Cambrian Street, Aberystwyth, SY23 — £285,000 • 6 bed • 2 bath • 1711 ft²
Residential development for sale in Custom House Street, Aberystwyth, SY23 — £350,000 • 4 bed • 2 bath • 410 ft²
3 bedroom town house for sale in High Street, Aberystwyth, Ceredigion, Mid Wales, SY23 — £249,000 • 3 bed • 1 bath • 968 ft²
5 bedroom maisonette for sale in Aberystwyth, Ceredigion, SY23 — £650,000 • 5 bed • 2 bath • 2411 ft²














































































































































