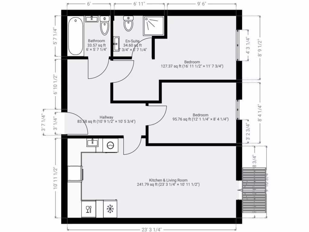
**Standout Features:**
- Modern 2-bedroom, 2-bathroom apartment
- Immaculate condition in Parkhouse Court
- Spacious balcony and open-plan kitchen/lounge
- Double-glazing and fitted kitchen with integrated appliances
- Off-street parking with resident’s permit
- Ideal location—walking distance to Hertfordshire University and Hatfield business park
- Chain-free sale
**Concerns:**
- High local crime rate
- Average room size and square footage (616 sq ft)
- Moderate council tax and service charge fees
Perfect for first-time buyers or investors, this charming 2-bedroom, 2-bathroom apartment in the desirable Parkhouse Court offers a modern lifestyle combined with accessibility. With an inviting open-plan kitchen and lounge, the space flows seamlessly onto a private balcony, perfect for enjoying the outdoors. The property is equipped with double glazing, ensuring a comfortable living environment, and includes integrated appliances such as an electric oven, hob, and washer/dryer, ready for easy living.
Strategically located within walking distance of the Galleria shopping center and the University of Hertfordshire, commuting is made straightforward with excellent road links to the A1M and A414. Currently generating a rental income of £1,550 a month, this property presents an attractive investment opportunity. While the local area has a high crime rate and the council tax and service charges should be considered, the potential for future appreciation alongside its appealing features make it a compelling choice. Don’t miss out—this chain-free gem won’t last long!
2 bedroom flat for sale in Parkhouse Court, Hatfield, AL10 — £255,000 • 2 bed • 2 bath • 571 ft²
2 bedroom flat for sale in Parkhouse Court, Hatfield, AL10 — £260,000 • 2 bed • 2 bath • 775 ft²
2 bedroom flat for sale in Parkhouse Court, Hatfield, AL10 — £220,000 • 2 bed • 2 bath • 678 ft²
2 bedroom flat for sale in Parkhouse Court, Hatfield, AL10 — £215,000 • 2 bed • 2 bath • 668 ft²
1 bedroom flat for sale in Parkhouse Court, Hatfield, AL10 — £189,995 • 1 bed • 1 bath • 560 ft²
2 bedroom flat for sale in Parkhouse Court, Hatfield, Hertfordshire, AL10 — £240,000 • 2 bed • 2 bath • 677 ft²










































