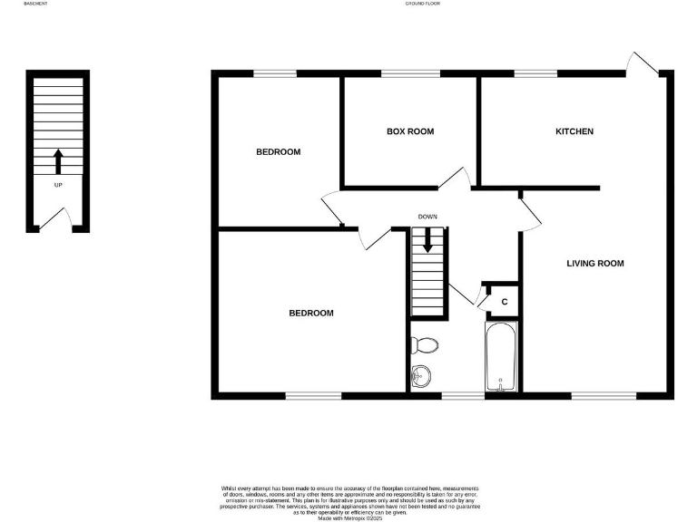
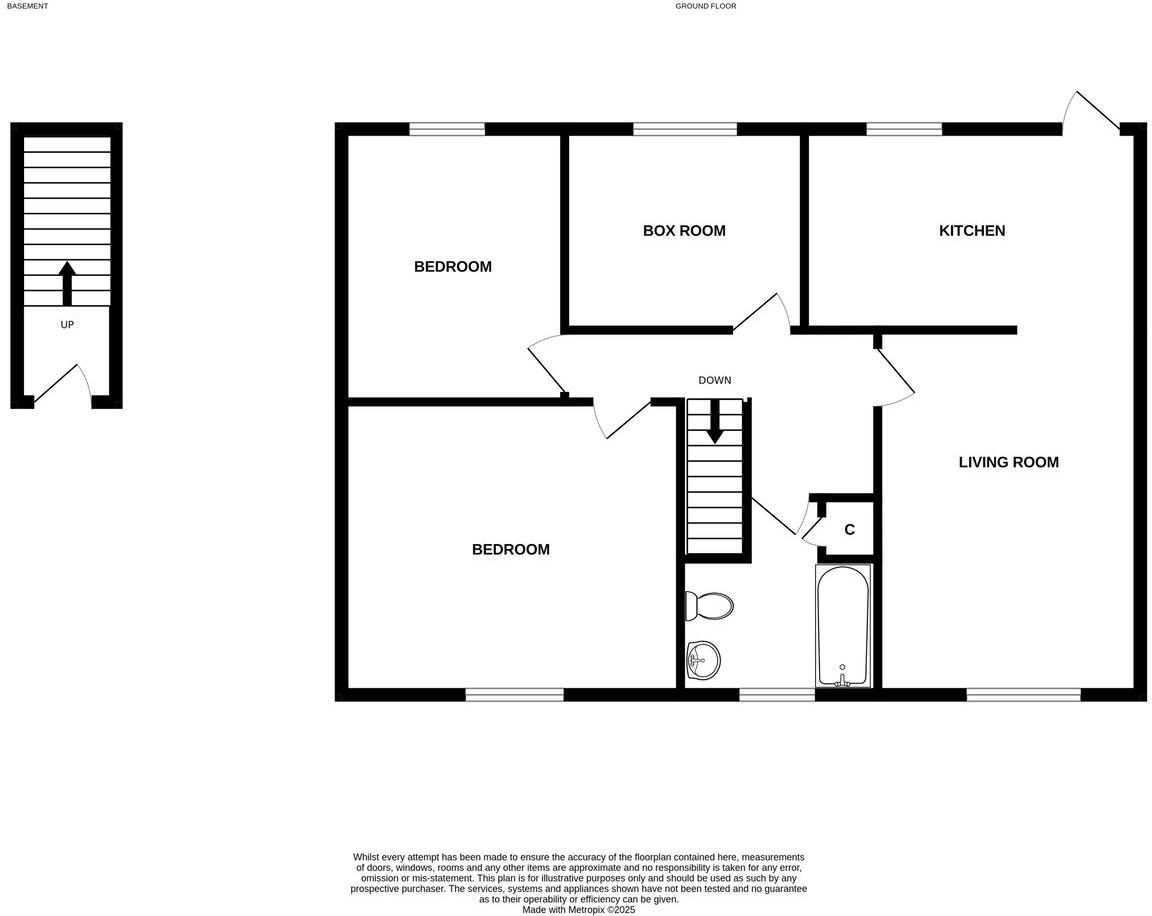
Roomy three-bed first-floor flat near Inverness city centre with garden and attic space.
- Spacious 83m2 first-floor flat with high ceilings and period detail
- Open-plan lounge/kitchen/diner with feature fireplace
- Two double bedrooms plus a single and attic rooms for flexible use
- Private rear lawned garden and newly installed garden shed
- Gas central heating and double glazing throughout
- EPC Band D; property may need modernisation to improve efficiency
- Single bathroom only; some updating likely required
- On-street permit parking; no off-street parking
A bright, spacious first-floor flat in a late‑Victorian building, this 3-bedroom home sits a short walk from Inverness city centre and the River Ness. High ceilings, original skirtings and a bay-windowed living room give period character, while an open-plan lounge/kitchen/diner and useful attic rooms add flexible living and practical storage. The property benefits from gas central heating, double glazing and a private rear lawn with a new garden shed.
Suited to first-time buyers or investors, the layout includes two double bedrooms, a single bedroom, and a generous bathroom. The flat has been well cared for but reflects its age: the EPC is Band D and some updating would improve energy efficiency and decor. On-street permit parking and proximity to schools, shops and rail links make daily life straightforward.
This freehold flat offers central location and period charm with clear potential to add value through targeted modernisation. Note the single bathroom and the relatively small rear garden. Buyers seeking a move-in-ready contemporary finish may need to budget for further improvements, but those willing to refresh the property will find roomy proportions and a desirable city-centre setting.
 1 bedroom flat for sale in Peabil Neuk, 71 Kenneth Street, Inverness, IV3 — £138,000 • 1 bed • 1 bath • 527 ft²
 1 bedroom flat for sale in Peabil Neuk, 71 Kenneth Street, Inverness, IV3 — £138,000 • 1 bed • 1 bath • 527 ft² 2 bedroom flat for sale in 17 Abban Street, Inverness, IV3 — £95,000 • 2 bed • 1 bath • 410 ft²
 2 bedroom flat for sale in 17 Abban Street, Inverness, IV3 — £95,000 • 2 bed • 1 bath • 410 ft² 1 bedroom flat for sale in Gladstone Place, Harrowden Road, Inverness, Highland, IV3 — £90,000 • 1 bed • 1 bath • 359 ft²
 1 bedroom flat for sale in Gladstone Place, Harrowden Road, Inverness, Highland, IV3 — £90,000 • 1 bed • 1 bath • 359 ft² 1 bedroom ground floor flat for sale in Tomnahurich Street, Inverness, IV3 — £105,000 • 1 bed • 1 bath
 1 bedroom ground floor flat for sale in Tomnahurich Street, Inverness, IV3 — £105,000 • 1 bed • 1 bath 2 bedroom flat for sale in Tomnahurich Street, Inverness, IV3 — £142,000 • 2 bed • 2 bath • 506 ft²
 2 bedroom flat for sale in Tomnahurich Street, Inverness, IV3 — £142,000 • 2 bed • 2 bath • 506 ft² 3 bedroom semi-detached house for sale in 40 Charles Street, Inverness, IV2 — £240,000 • 3 bed • 1 bath
 3 bedroom semi-detached house for sale in 40 Charles Street, Inverness, IV2 — £240,000 • 3 bed • 1 bath






























































































