DE55 4EQ - 3 bed renovation opportunity semi in Amber Valley, DE55 4EQ

View on Property Piper

3 bedroom semi-detached house for sale in Newlands Road, Alfreton, DE55

Summary - 49 Newlands Road,Riddings,ALFRETON,DE55 4EQ DE55 4EQ

3 bed 2 bath Semi-Detached

Vacant three‑bed semi with garden and parking — ideal for investor developers.
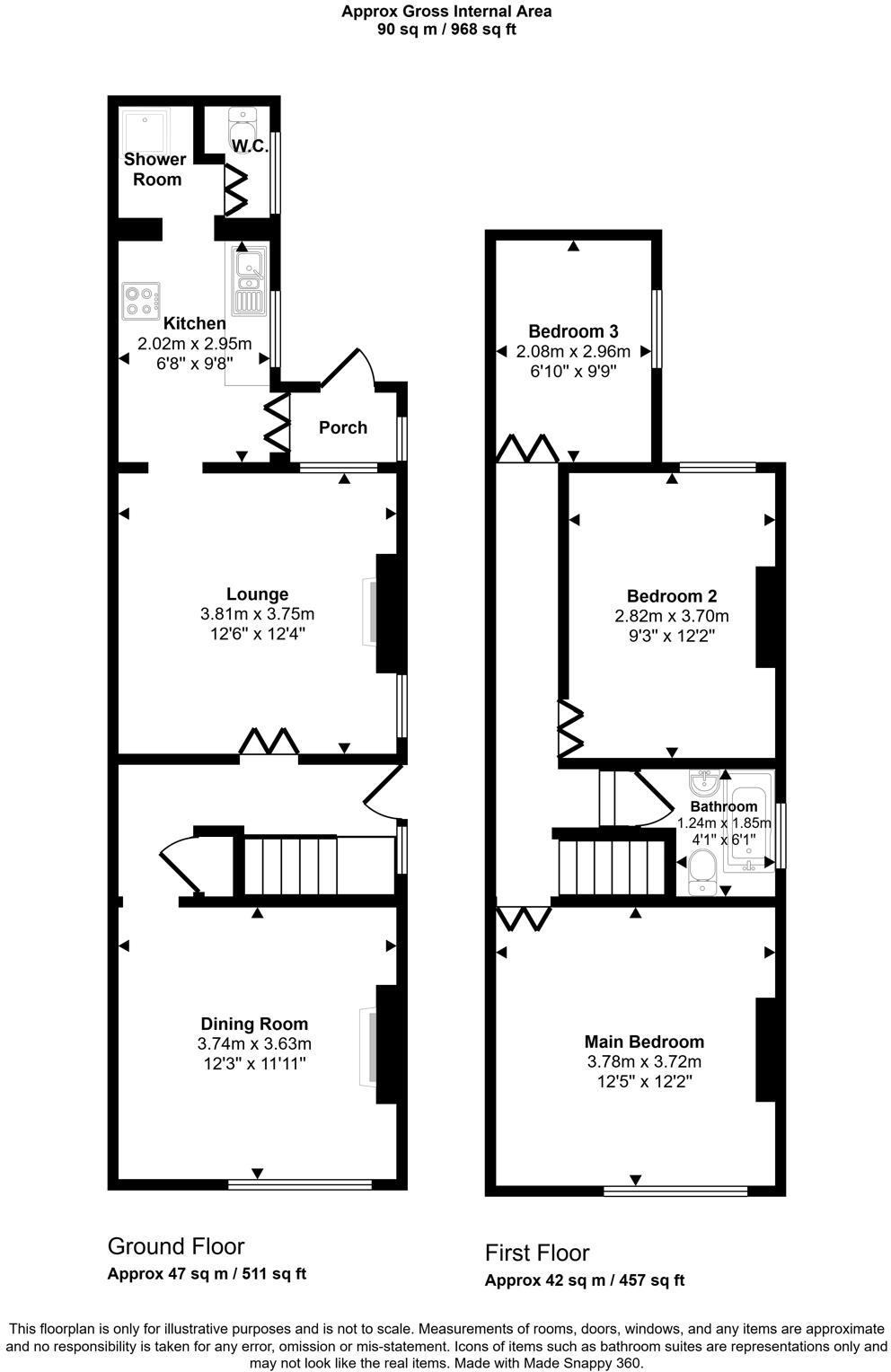
Three bedrooms with lounge, dining room, kitchen, shower room and upstairs bathroom
Vacant freehold; to be sold online at auction — register before bidding
Requires full refurbishment throughout; sold as seen (no recent modernisation)
Off‑street driveway parking plus garage/outbuildings and rear garden
Around 968 sq ft; small to medium room sizes, standard ceiling heights
Good local broadband and nearby primary/secondary schools rated Good
Potential for rear extensions (subject to planning permission)
Viewing by booked block viewings; inspect legal pack and get a survey
This three-bedroom semi-detached house in Riddings (DE55 4EQ) is a vacant freehold sold via online auction, offered with full renovation potential. The property presently requires refurbishment throughout but sits on a residential street of well‑presented homes and benefits from off‑street parking, a garage/outbuilding and a garden — clear value drivers for a buyer looking to add value or deliver a rental return.

Internally the layout includes porch, hallway, lounge, dining room, kitchen, shower room, three bedrooms and an upstairs bathroom across approximately 968 sq ft. The construction is post‑war with some Victorian brickwork shown to the rear outbuilding; room sizes are small to medium with standard ceiling heights. Broadband speeds are reported as fast and the area is locally classified as aspirational urban households within a generally affluent ward.

The house is offered for sale at auction (online) with legal pack and registration required ahead of bidding. Block viewings are scheduled on the stated dates; purchasers should review the legal pack and arrange survey work before the auction. The property may suit investors, developers or hands‑on buyers prepared to carry out works and apply for any planning for rear extensions if desired.

Important negatives: the property needs renovation throughout and is sold as seen; there is no indication of recent modernisation and prospective buyers should allow for refurbishment costs, possible structural or services upgrades, and any planning permissions for extensions. All factual information should be confirmed via the legal pack and a survey prior to bidding.

Property Details

Image Descriptions

Floorplan Description

Rooms

Textual Property Features

Target Audience

AI Tags

Detected Visual Features

Nearby Schools

Nearest Bars And Restaurants

,,,,}

Nearest General Shops

,,}

Nearest Grocery shops

,,}

Nearest Supermarkets

,,}

Nearest Religious buildings

,,}

Nearest Medical buildings

,,,}

Nearest Airports

}

Nearest Leisure Facilities

,,,,}

Nearest Tourist attractions

,,}

Nearest Train stations

,,,,}

Nearest Bus stations and stops

,,,,}

Nearest Hotels

,,}

Tags

Local Market Stats

Similar Properties

Meta

High Res Images

Compatible Images

Low res Images

Thumbnails

Raw Images

High Res Floorplan Images

Compatible Floorplan Images

Low res Floorplan Images

FloorplanImages Thumbnail

Raw Floorplan Images