Affordable fixer with generous outdoor space and strong modernisation upside.
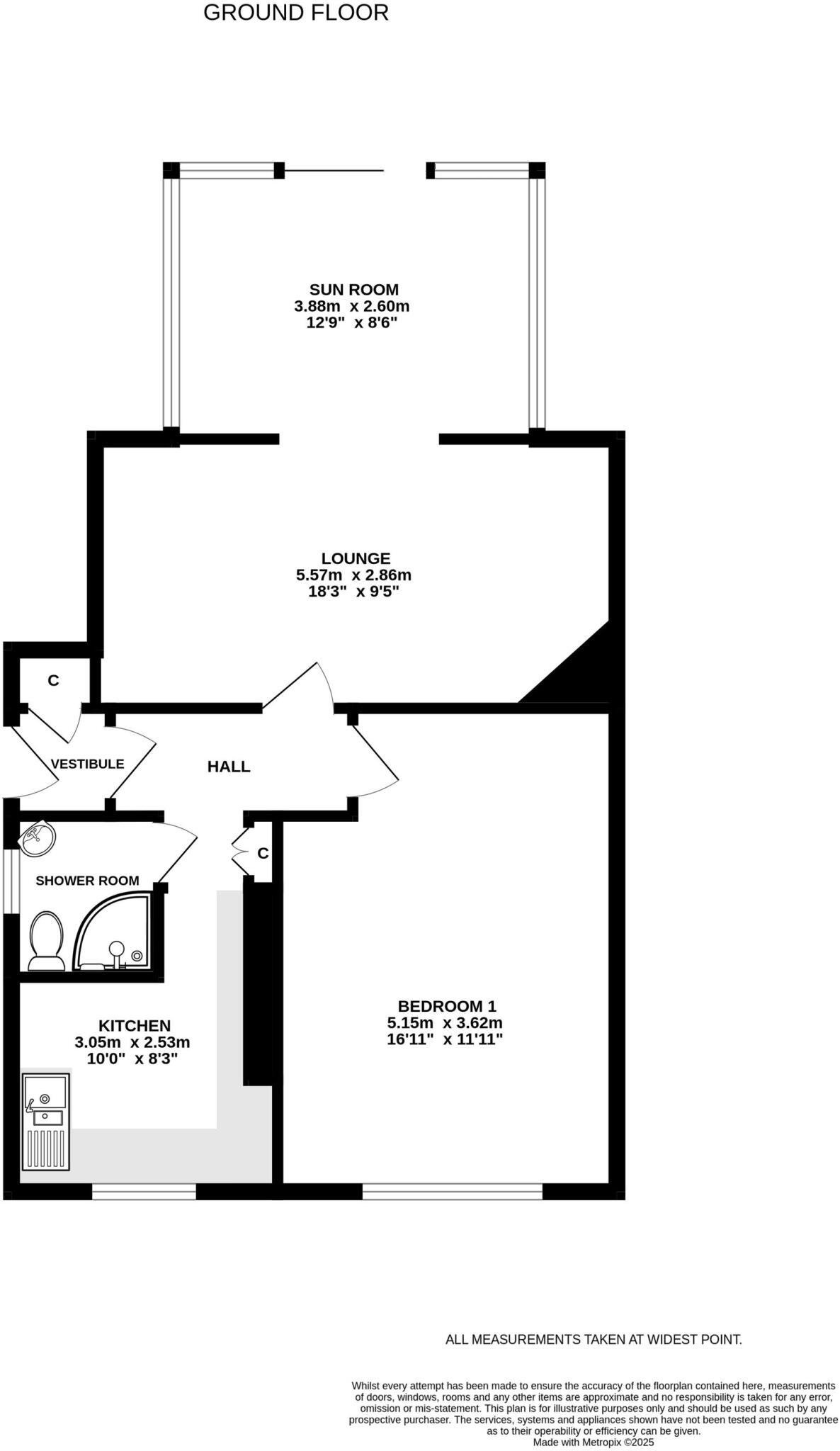
Private ground-floor entrance and sun room overlooking rear garden
Large private gardens front and rear with timber shed and lawn
Spacious double bedroom and bright lounge with natural light
Kitchen requires full refurbishment and general modernisation needed
Freehold tenure, no flood risk, excellent mobile signal, fast broadband
Off-street parking available; approximately 700 sq ft overall size
Located in a very deprived area — may affect resale and demand
Low council tax and low asking price present strong entry-level value
This ground-floor one-bedroom flat offers a private entrance, generous front and rear gardens, and flexible living space across approximately 700 sq ft. The bright lounge flows into a sun room that overlooks the rear garden, creating a pleasant spot for morning light. The double bedroom is spacious and the shower room provides a practical three-piece layout.
The property requires modernisation throughout: the kitchen needs refurbishment and general updating will be needed to realise the flat’s full potential. For buyers comfortable with renovation, this creates an opportunity to add significant value at an entry-level price point. Timber shed and off-street parking are useful practical extras.
Practical benefits include freehold tenure, no flood risk, excellent mobile signal and fast broadband — all helpful for remote working or renting. The area is described as very deprived, which may affect resale dynamics, but the low council tax and affordable asking price can appeal to first-time buyers, downsizers or investors seeking uplift through improvement.
Overall, this is a straightforward, value-focused proposition: a roomy ground-floor flat with private outdoor space that rewards sensible modernisation and offers immediate occupancy potential once updated.
2 bedroom ground floor flat for sale in White Street, Ayr, South Ayrshire, KA8 9BW, KA8 — £85,900 • 2 bed • 1 bath • 700 ft²
1 bedroom flat for sale in Prestwick Road, Ayr, KA8 — £65,000 • 1 bed • 1 bath • 581 ft²
2 bedroom ground floor flat for sale in Waggon Road, Ayr, KA8 8DW, KA8 — £75,000 • 2 bed • 1 bath • 603 ft²
1 bedroom flat for sale in 7c Glenmuir Road, Ayr, KA8 9RD, KA8 — £60,000 • 1 bed • 1 bath • 527 ft²
1 bedroom flat for sale in McLelland Drive, Kilmarnock, KA1 — £67,500 • 1 bed • 1 bath • 495 ft²
2 bedroom apartment for sale in 38 Stewart Road, Ayr, KA8 9EZ, KA8 — £65,000 • 2 bed • 1 bath • 700 ft²


























































































