**Standout Features:**
- Prime location near Hengistbury Head and sandy beaches
- Spacious detached property with 6 bedrooms and 3 bathrooms
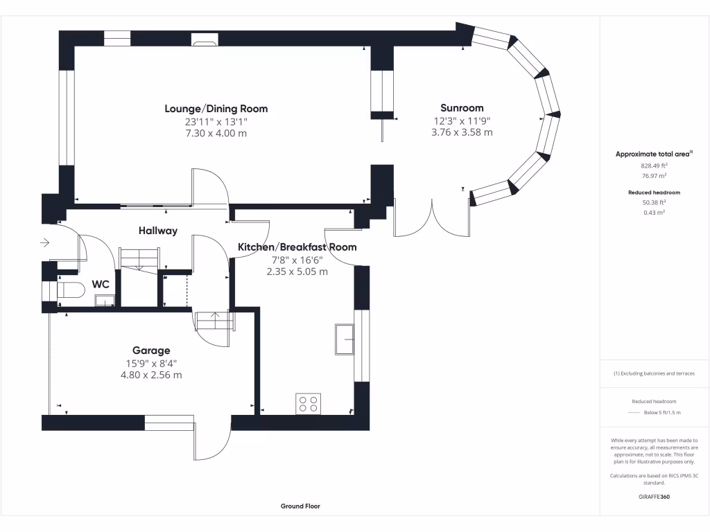
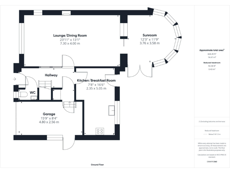
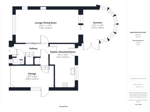
- Generous living spaces including a sunroom and integral garage
- Open-plan layout with modern kitchen and high-quality Bosch appliances
- Potential for garage conversion (subject to planning)
**Potential Concerns:**
- Average-sized property (1864 sq. ft.) for its price
- Property built between 1983-1990 may require future updates 
- Higher council tax due to affluent local area 
Nestled in the highly sought-after area near Hengistbury Head, this exceptional detached home offers an expansive 1864 sq. ft. arranged across three floors, perfect for families seeking space and comfort. Featuring six spacious bedrooms, including an en-suite master and versatile top-floor area, the property presents an exciting opportunity for stylish living or even future renovations. The modern open-plan lounge and dining area boasts hardwood floors and a stunning stone fireplace, while the beautifully finished kitchen comes equipped with Bosch appliances and a breakfast bar, catering to both culinary enthusiasts and family gatherings. 
Enjoy a seamless flow from the living spaces to the sunroom, ideal for relaxation, and step outside to a charming garden with a variety of seating areas for outdoor entertaining. With an integral garage that presents an ideal conversion opportunity, this home is chain-free and provides the flexibility needed for your vision. Given the affluent nature of the area and proximity to top-rated schools, this property won’t last long. Envision your family's future here, surrounded by nature and community, while positioning yourself in a vibrant coastal lifestyle.
 6 bedroom detached house for sale in Church Road, Southbourne, BH6 — £850,000 • 6 bed • 2 bath • 2050 ft²
 6 bedroom detached house for sale in Church Road, Southbourne, BH6 — £850,000 • 6 bed • 2 bath • 2050 ft² 6 bedroom detached house for sale in Wentworth Avenue, Bournemouth, Dorset, BH5 — £975,000 • 6 bed • 4 bath • 2890 ft²
 6 bedroom detached house for sale in Wentworth Avenue, Bournemouth, Dorset, BH5 — £975,000 • 6 bed • 4 bath • 2890 ft² 4 bedroom detached house for sale in Warren Edge Close, Hengistbury Head, Southbourne, Bournemouth, BH6 4AY, BH6 — £900,000 • 4 bed • 2 bath • 1842 ft²
 4 bedroom detached house for sale in Warren Edge Close, Hengistbury Head, Southbourne, Bournemouth, BH6 4AY, BH6 — £900,000 • 4 bed • 2 bath • 1842 ft² 4 bedroom detached house for sale in Hengistbury Road, Hengistbury Head, BH6 — £875,000 • 4 bed • 2 bath • 1270 ft²
 4 bedroom detached house for sale in Hengistbury Road, Hengistbury Head, BH6 — £875,000 • 4 bed • 2 bath • 1270 ft² 5 bedroom house for sale in Baring Road, Hengistbury Head, BH6 — £875,000 • 5 bed • 2 bath • 2393 ft²
 5 bedroom house for sale in Baring Road, Hengistbury Head, BH6 — £875,000 • 5 bed • 2 bath • 2393 ft² 4 bedroom detached house for sale in Harland Road, Bournemouth, Dorset, BH6 — £950,000 • 4 bed • 2 bath • 1750 ft²
 4 bedroom detached house for sale in Harland Road, Bournemouth, Dorset, BH6 — £950,000 • 4 bed • 2 bath • 1750 ft²


































































































