Compact, low-maintenance flat with parking and rental potential.
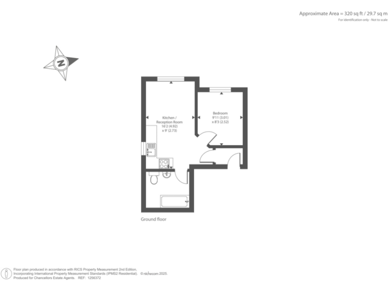
Approximately 333 sq ft — compact one-bedroom layout
This compact one-bedroom flat on the edge of Chipping Norton is well suited to investors or a first-time buyer seeking easy access to town amenities. The property is presented in good order, with double glazing, mains gas central heating and off-street parking — practical features that reduce immediate maintenance needs.
The apartment is leasehold with a long 999-year term (982 years remaining from 2008) and is currently tenanted, offering immediate rental income for investors but requiring timing coordination for owner-occupiers who need vacant possession. The overall size is small (approximately 333 sq ft), so internal space is limited but the principal reception is a good proportion for the footprint.
Positioned on a modern end-terrace close to schools, shops and transport links, the flat benefits from fast broadband, excellent mobile signal and a very affordable council tax band. There is no flooding risk recorded and the local area is very affluent, which supports long-term demand.
Important drawbacks are factual and clear: limited internal floor area, current tenancy (viewing by arrangement) and leasehold tenure. For buyers who prioritise low-running costs, town-centre proximity and rental potential, this is a practical, low-effort purchase; buyers needing larger living space should consider wider options.
1 bedroom flat for sale in Churchill Place, Chipping Norton, OX7 — £185,000 • 1 bed • 1 bath • 452 ft²
2 bedroom flat for sale in Chipping Norton, Oxfordshire, OX7 — £225,000 • 2 bed • 1 bath • 473 ft²
2 bedroom flat for sale in Finsbury Place, Chipping Norton, OX7 — £189,950 • 2 bed • 1 bath • 667 ft²
2 bedroom flat for sale in Chipping Norton, Oxfordshire, OX7 — £190,000 • 2 bed • 1 bath • 771 ft²
1 bedroom flat for sale in White Hart Mews, Chipping Norton, OX7 — £150,000 • 1 bed • 1 bath • 460 ft²
2 bedroom apartment for sale in Merchants Place, Chipping Norton, OX7 — £200,000 • 2 bed • 2 bath • 640 ft²






































































