Modern two-bedroom maisonette overlooking a green, walking distance to shops and station.
Two double bedrooms including galleried master with open outlook
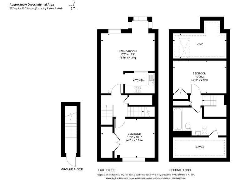
Set over split levels and arranged around an airy open-plan living space, this two-bedroom maisonette sits overlooking a small green in Knaphill. The galleried master bedroom gives a sense of space and light, while the modern kitchen and contemporary bathroom mean you can move in with minimal work. At about 757 sq ft, the layout suits a couple, small family or buy-to-let investor seeking easy-care accommodation close to local amenities.
Practical running costs are straightforward: double glazing throughout, an all-electric supply with room heaters, and a below-average annual service charge of £609.84. The property is leasehold with 94 years remaining; ground rent is £150 per year. Brookwood mainline station and Knaphill village shops are within walking distance, making commutes and everyday errands convenient.
Outdoor space is communal with an off-street parking area — useful but shared, and the private garden area is modest. Broadband speeds are reported as slow, and heating is by electric room heaters rather than gas central heating. These are honest trade-offs against the low upkeep of the modern finish and strong local schools close by.
Overall this is a well-presented, low-maintenance home in a largely affluent, family-oriented area. It will particularly suit first-time buyers or investors after a tidy, centrally located property with good transport links and straightforward service costs.
2 bedroom flat for sale in Alexandra Gardens, Knaphill, Woking, GU21 — £275,000 • 2 bed • 1 bath • 600 ft²
2 bedroom apartment for sale in Alexandra Gardens, Knaphill, Woking, Surrey, GU21 — £255,000 • 2 bed • 1 bath • 572 ft²
2 bedroom maisonette for sale in Knaphill, GU21 — £195,000 • 2 bed • 1 bath • 576 ft²
2 bedroom maisonette for sale in Creswell Corner, Anchor Hill, GU21 — £235,000 • 2 bed • 1 bath • 636 ft²
1 bedroom flat for sale in Knaphill, GU21 — £193,500 • 1 bed • 1 bath • 409 ft²
2 bedroom maisonette for sale in Brookwood Farm Drive, Knaphill, Woking, Surrey, GU21 — £255,000 • 2 bed • 1 bath • 713 ft²


























































