Large family home with annex potential and low‑maintenance courtyard garden.
Extremely large internal size — about 2,003 sq ft
Three double bedrooms and three bathrooms, two with underfloor heating
Potential to form one‑bedroom annex from secondary entrance
Low‑maintenance enclosed courtyard garden, secure and private
Period features: exposed beams, original brick walls, fireplaces
Solid brick construction with no assumed wall insulation — energy concern
On‑street parking only; no private driveway or garage
Located in town centre near shops, schools, and public transport
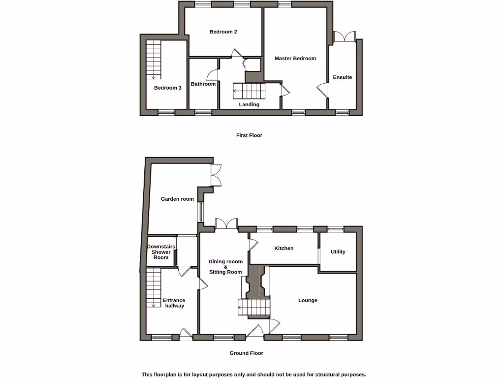
This substantial three-bedroom town house blends Victorian character with flexible family living in the centre of Burgh le Marsh. Exposed beams, original brick walls and two fireplaces give rooms warmth and visual interest, while three bathrooms (two with underfloor heating) reduce morning bottlenecks.
The property is exceptionally large (about 2,003 sq ft) and offers scope to create a one‑bedroom annex using an alternative front entrance and the garden room. The low‑maintenance courtyard suits busy households and provides a secure outdoor space without heavy upkeep.
Buyers should note the house is a solid‑brick, pre‑1900 mid‑terrace with no known wall insulation and an older electrical consumer unit location; targeted insulation and modernisation will improve comfort and efficiency. Parking is on‑street only, and the surrounding area scores as relatively deprived, though local services, schools and transport links are all within walking distance.
Overall this is a characterful, roomy family home with clear renovation upside and annex potential — attractive for families wanting central convenience or buyers prepared to invest in energy upgrades and cosmetic updating.
3 bedroom detached house for sale in Darley House, 56 High Street, Burgh Le Marsh, Skegness, Lincolnshire, PE24 5JT, PE24 — £250,000 • 3 bed • 1 bath • 1013 ft²
3 bedroom detached house for sale in Windmill Drive, Burgh Le Marsh, PE24 — £495,000 • 3 bed • 3 bath • 2347 ft²
3 bedroom end of terrace house for sale in Cervantes Court, Burgh Le Marsh, Skegness, PE24 — £175,000 • 3 bed • 1 bath • 903 ft²
3 bedroom semi-detached house for sale in Windsor Crescent, Ingoldmells, Skegness, PE25 — £190,000 • 3 bed • 2 bath • 1044 ft²
4 bedroom detached house for sale in Burgh Road, Skegness, PE25 — £275,000 • 4 bed • 2 bath • 1066 ft²
6 bedroom detached house for sale in Station Road, Burgh le Marsh, Skegness, PE24 — £450,000 • 6 bed • 2 bath • 2689 ft²














































































