Move-in-ready family home with modern kitchen and driveway near schools.
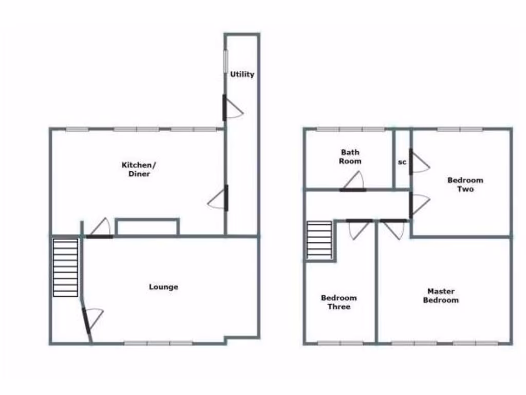
- Three bedrooms with one family bathroom
- Newly renovated interior and contemporary kitchen-diner
- Large lounge with feature fireplace suitable for a log burner
- Private rear garden; small plot, modest outdoor space
- Front multi-vehicle driveway and off-street parking
- Freehold and chain-free for a faster sale
- Area has above-average crime and signs of deprivation
- Built 1950–1966; mid-terrace with standard ceiling heights
A freshly renovated three-bedroom mid-terrace on Birch Avenue, offered chain-free and ready to move into. The house combines a large lounge with a modern kitchen-diner, a useful side utility area and a private rear garden — practical spaces for family life.
The plot is compact but workable, with a multi-vehicle driveway to the front and off-street parking. The property is freehold, heated by a mains-gas boiler and fitted with double glazing. Local primary and secondary schools, shops and regular transport links are within walking distance, adding everyday convenience.
This is a straightforward family purchase or buy-to-let opportunity in a major conurbation. The home is newly renovated internally, so immediate cosmetic work is unlikely; however, the area has above-average crime levels and local deprivation indicators, which may affect long-term resale or rental appetite. The house dates from the 1950s–60s and sits on a small plot, so outdoor space is modest.
Priced at £210,000 with low council tax and no onward chain, this property suits buyers seeking an affordable, move-in-ready home close to amenities and schools. Investors should factor neighbourhood risk and demand; families will appreciate the schools and practical layout but should note the compact garden and local area challenges.
5 bedroom detached house for sale in Birch Terrace, BURNTWOOD, WS7 — £425,000 • 5 bed • 2 bath • 1507 ft²
3 bedroom semi-detached house for sale in Rugeley Road, Chase Terrace, Burntwood, WS7 — £235,000 • 3 bed • 1 bath • 694 ft²
2 bedroom terraced house for sale in Redwood Drive, Burntwood, WS7 2AS, WS7 — £175,000 • 2 bed • 1 bath
3 bedroom terraced house for sale in Avon Road, Burntwood, WS7 4UD, WS7 — £200,000 • 3 bed • 1 bath • 664 ft²
3 bedroom terraced house for sale in Glenmore Avenue, Burntwood, WS7 — £170,000 • 3 bed • 1 bath • 743 ft²
3 bedroom end of terrace house for sale in Birch Avenue, Brownhills, Walsall WS8 7JJ , WS8 — £210,000 • 3 bed • 1 bath • 1045 ft²


































































