Corner-plot seven-bed with annexe and HMO potential, chain-free.
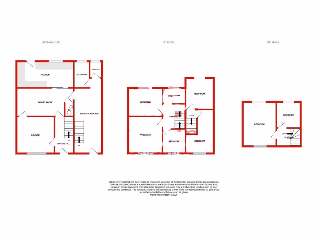
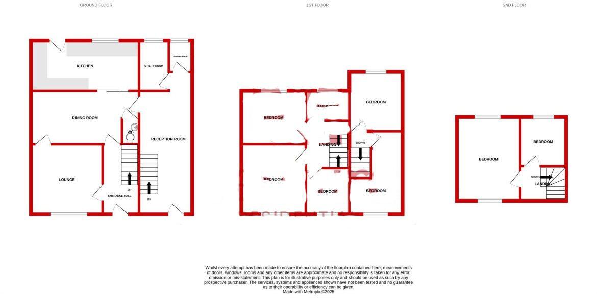
Seven bedrooms plus loft conversion and separate annexe space
Potential HMO or multi-family use with flexible room layout
Three bathrooms; ground-floor shower room and separate WC
Well-appointed modern kitchen with utility area
Off-road parking for up to four vehicles on corner plot
Generous rear garden with corner-plot privacy and scope
Driveway needs maintenance; exterior may need cosmetic work
Area records above-average crime and higher local deprivation
This substantial seven-bedroom semi-detached home on a corner plot offers flexible living across three floors, including a loft conversion and self-contained annexe. The layout suits large or expanding families and buyers seeking rental or HMO potential, with multiple reception rooms for separate living, dining and working zones.
Practical features include a well-appointed modern kitchen with utility room, three bathrooms, and off-road parking for up to four vehicles. The generous rear garden and corner-plot position provide outdoor privacy and scope for landscaping or extension subject to permissions. Broadband speeds are fast and mobile signal is excellent, supporting home working and multiple occupants.
Buyers should note a few material considerations: the driveway requires maintenance and the area records above-average crime and higher local deprivation indices. The property is offered chain-free on a freehold title, but parts of the exterior (pebble-dash facade and roof) and some interior areas will benefit from cosmetic updating to personalise the home or ready it for HMO occupation.
Overall this is a high-space, adaptable property that gives immediate family comfort or clear income-generation potential for investors. Proximity to several ‘Good’ primary and secondary schools and local amenities adds convenience, while scope to modernise presents upside for buyers willing to invest time and budget.
7 bedroom semi-detached house for sale in Brunel Road, Luton, LU4 — £500,000 • 7 bed • 3 bath • 1927 ft²
7 bedroom bungalow for sale in Arundel Road, Luton, LU4 — £450,000 • 7 bed • 3 bath • 1294 ft²
6 bedroom semi-detached house for sale in Conway Road, Luton, Bedfordshire, LU4 — £450,000 • 6 bed • 3 bath • 1881 ft²
5 bedroom semi-detached house for sale in Cromwell Road, Biscot Mill, Luton, Bedfordshire, LU3 1DP, LU3 — £350,000 • 5 bed • 2 bath • 1113 ft²
6 bedroom semi-detached house for sale in Marlborough Road, Luton, LU3 — £595,000 • 6 bed • 3 bath • 1992 ft²
7 bedroom semi-detached house for sale in Eldon Road, L&D Borders, Luton, Bedfordshire, LU4 0AX, LU4 — £425,000 • 7 bed • 4 bath • 1755 ft²






































































