**Standout Features:**
- Charming late Victorian detached cottage
- Breathtaking rural views with nearly half an acre of land
- Offers open-plan living on the ground floor with a Mark Wilkinson kitchen
- Scope for improvement or extension (subject to consents)
- Two sizable bedrooms, with potential to reconfigure to three
- Gated parking, detached stable, and open carbarn
- Chain-free, allowing for quick transactions
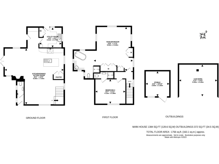
Glen Cottage is an enchanting late Victorian detached property nestled amidst stunning countryside views in Reigate, Surrey. With approximately 1,384 square feet of well-designed living space, this home invites you into its open-plan kitchen and dining area, perfect for both relaxation and entertaining. The two generous bedrooms feature unique charm, including a stylish freestanding copper bathtub in the main suite, while the second bedroom comes with an ensuite shower room, showcasing the home's thoughtful layout.
Set on nearly half an acre, this property offers privacy and room for outdoor activities. The gated parking and additional outbuildings create excellent utility, making it suitable for families or individuals seeking that extra functional space. Though the cottage presents a canvas for personal touches or potential expansions, it currently requires minimal maintenance. With its charming character, serene location, and potential for future enhancements, this property represents an exceptional opportunity that is not expected to linger on the market long. Experience the beauty of countryside living while remaining easily accessible to Reigate town center—your idyllic rural retreat awaits!
3 bedroom semi-detached house for sale in The Clears, Reigate, RH2 — £875,000 • 3 bed • 1 bath • 1249 ft²
3 bedroom terraced house for sale in The Clears, Reigate, RH2 — £850,000 • 3 bed • 1 bath • 1268 ft²
3 bedroom semi-detached house for sale in Ranmore Common, Dorking, Surrey, RH5 — £839,500 • 3 bed • 2 bath • 1103 ft²
2 bedroom semi-detached house for sale in Ironsbottom, Reigate, RH2 — £499,000 • 2 bed • 1 bath • 803 ft²
4 bedroom detached house for sale in Bones Lane, RH7 — £1,200,000 • 4 bed • 1 bath • 2087 ft²
4 bedroom semi-detached house for sale in Tot Hill, Headley, KT18 — £900,000 • 4 bed • 1 bath • 1262 ft²






































































