Spacious period residence with huge garden and renovation potential.
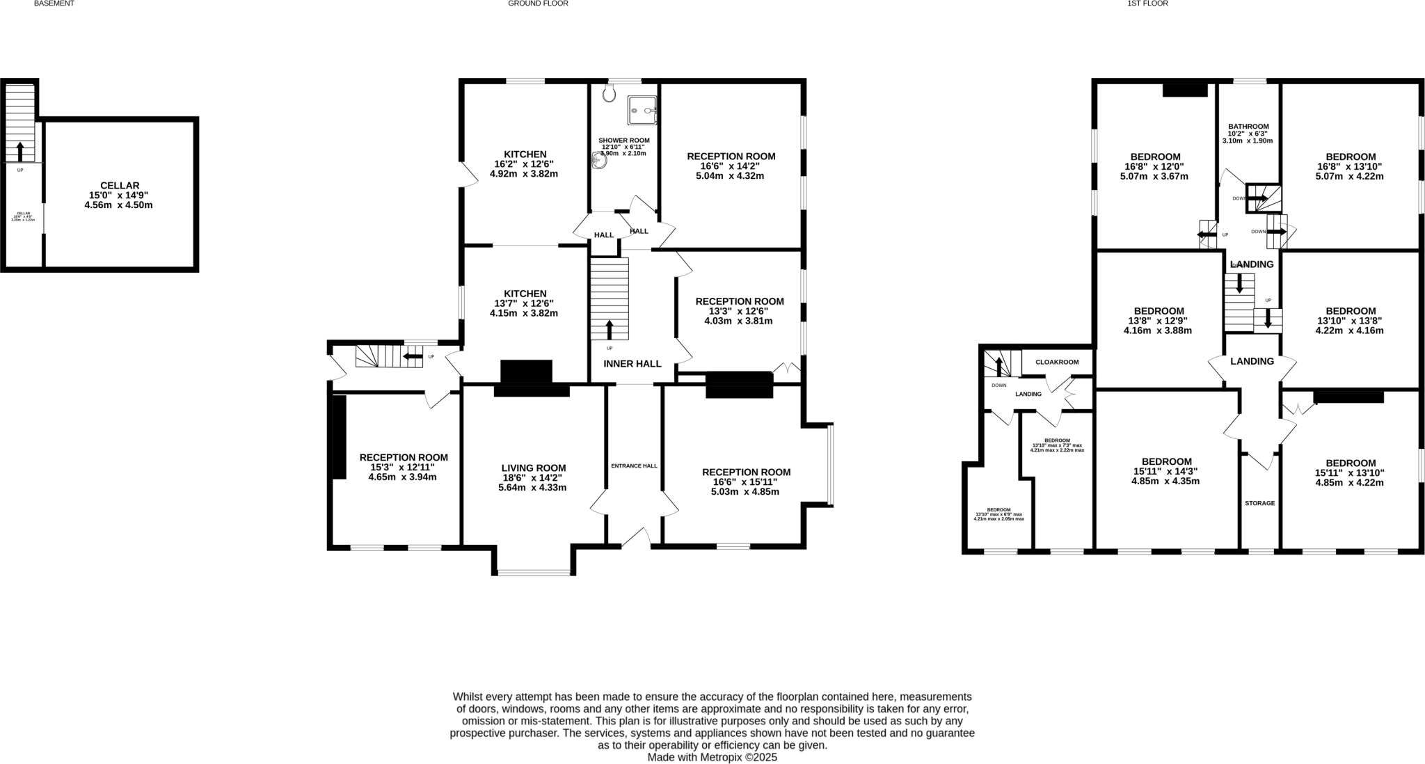
6 double bedrooms with attic potential and cellar
Approximately 3,050 sq ft of accommodation, high ceilings throughout
Large mature plot (~0.72 acres) with private courtyard and carport
Retains period features: sash windows, fireplaces, stained glass, staircase
Requires full renovation; some fabric and services need renewal
Solid brick walls likely uninsulated; energy upgrades recommended
Oil boiler heating; main fuel is oil (off-grid, not community supply)
Very expensive council tax; area classed as very deprived
This substantial Victorian detached house offers spacious family living across generous rooms and high ceilings. Set on about 0.72 acres in Llandinam, the plot provides mature gardens, privacy, a private courtyard and off-street parking — ideal for outdoor play, pets and garden projects.
The house retains many period features: sash windows, open fireplaces, stained glass and an impressive staircase. With six double bedrooms, multiple reception rooms, attic spaces and a cellar, there is clear scope to create a comfortable, characterful family home or a multi-room renovation project.
Practical considerations are straightforward and important. The property requires renovation throughout: walls are solid brick with assumed no insulation, the heating is oil-fired via boiler and radiators, and some services and finishes will need updating. Council tax is very expensive and the area is classified as very deprived, which may affect resale expectations.
For buyers seeking space, character and long-term value, this is a rare period opportunity on a very large plot in a quiet village setting. Its remoter location suits those wanting rural privacy; commuters should note average mobile signal but fast broadband is available. A sympathetic restoration will unlock the house’s full potential.
6 bedroom semi-detached house for sale in Broadway, Llandrindod Wells, Powys, LD1 — £298,000 • 6 bed • 1 bath • 2256 ft²
4 bedroom semi-detached house for sale in Kerry, Newtown, Powys, SY16 — £550,000 • 4 bed • 3 bath • 2347 ft²
4 bedroom semi-detached house for sale in Trefeglwys Road, Llanidloes, Powys, SY18 — £340,000 • 4 bed • 2 bath • 2367 ft²
5 bedroom detached house for sale in Station Road, Caersws, Powys, SY17 — £475,000 • 5 bed • 2 bath • 2140 ft²
6 bedroom link detached house for sale in Montpellier Park, Llandrindod Wells, Powys, LD1 — £265,000 • 6 bed • 1 bath • 1861 ft²
6 bedroom detached house for sale in Rhayader, Powys, LD6 — £695,000 • 6 bed • 2 bath • 3585 ft²










































































































































































