****Standout Features:****
- Spacious 4-bedroom detached family home
- Sought-after Appleton location, close to top-rated schools
- Large plot with private gardens backing onto the Dingle woodlands
- Integral garage and ample driveway parking
- Generous living space and potential for remodeling
- Excellent broadband speeds with low crime rates
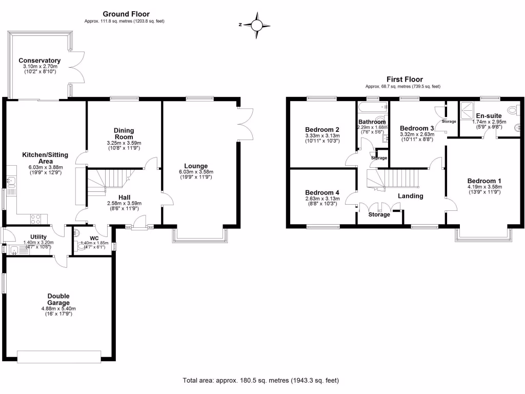
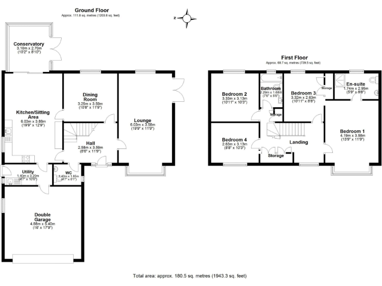
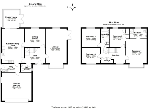
Welcome to this charming and spacious four-bedroom detached home in the highly sought-after Appleton area, ideal for families seeking comfort and accessibility. Just a stone's throw from outstanding schools, this property offers both exceptional educational opportunities and recreational amenities, making it perfect for family living. With its impressive façade and spacious plot, the residence features a well-kept front garden and a serene rear garden that backs onto the picturesque Dingle, providing a sense of privacy and tranquility.
Inside, this home boasts ample living space, including a bright lounge with garden views, a separate dining room, and a cozy sitting area leading to a delightful conservatory. The kitchen is not only practical but offers space for dining as well. Upstairs, the four generously sized bedrooms provide plenty of room for family life, with the principal bedroom enjoying the luxury of an en suite shower room. While this home offers modern comfort, it also presents an exciting opportunity for renovations or extensions to tailor the space to your specific needs.
Outside, you'll find a welcoming driveway, a large double garage, and a beautifully landscaped garden that’s perfect for outdoor gatherings or quiet evenings. The southerly aspect ensures sunlight, providing an inviting atmosphere for relaxation and entertaining. With excellent transport links to major motorways and nearby airports, you’ll find convenience in both locality and accessibility.
This property combines desirable features in a prime location, making it a unique find in today’s market. Don’t miss out on the chance to make this inviting house your home!



















































































