**Standout Features:**
- Prime Wimbledon location with excellent transport links.
- Three bedrooms and two bathrooms, including an en suite.
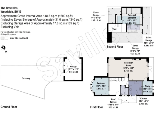
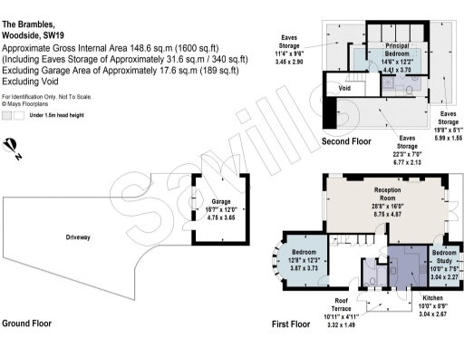
- Spacious duplex with a generous 1,600 sq ft of living space.
- Private off-street parking with a garage and driveway for two cars.
- Access to a roof terrace and balcony with lovely views.
- Potential for personalization and future renovations.
**Concise Summary:**
Nestled on a desirable residential street in Wimbledon, this charming three-bedroom duplex offers the perfect balance of spacious living and city convenience. With 1,600 sq ft of attractive interiors across two floors, the property features a modern living area that opens onto a balcony, a contemporary kitchen with integrated appliances, and a convenient study/third bedroom. The second floor boasts a principal suite complete with an en suite shower room.
Enjoy easy access to both Wimbledon Village and Town, renowned for their boutiques, restaurants, and beautiful green spaces. With a garage, driveway parking for two cars, and proximity to Wimbledon Station (just 750m away), this home is ideal for families and commuters alike. Though it offers fantastic living potential and high desirability, it's crucial to note the leasehold status with approximately 98 years remaining and the property’s high council tax. Make this exceptional home yours today and enjoy the vibrant lifestyle Wimbledon has to offer!
3 bedroom flat for sale in The Downs, Wimbledon, SW20 — £975,000 • 3 bed • 2 bath • 1222 ft²
4 bedroom flat for sale in Lansdowne Road, Wimbledon, SW20 — £2,000,000 • 4 bed • 2 bath • 2396 ft²
5 bedroom flat for sale in Wimbledon Park Side, Wimbledon, London, SW19., SW19 — £1,600,000 • 5 bed • 3 bath • 3102 ft²
2 bedroom duplex for sale in Lanherne House, 9 The Downs, Wimbledon, London, SW20 — £535,000 • 2 bed • 2 bath • 767 ft²
3 bedroom flat for sale in Hounsfield Lodge, 5 Chambers Park Hill, London, SW20 — £1,750,000 • 3 bed • 3 bath • 1735 ft²
2 bedroom apartment for sale in The Downs, London, SW20 — £820,000 • 2 bed • 2 bath • 1372 ft²










































