Private garden, garage and parking in a popular village location.
Three bedrooms with flexible smallest room for study or nursery
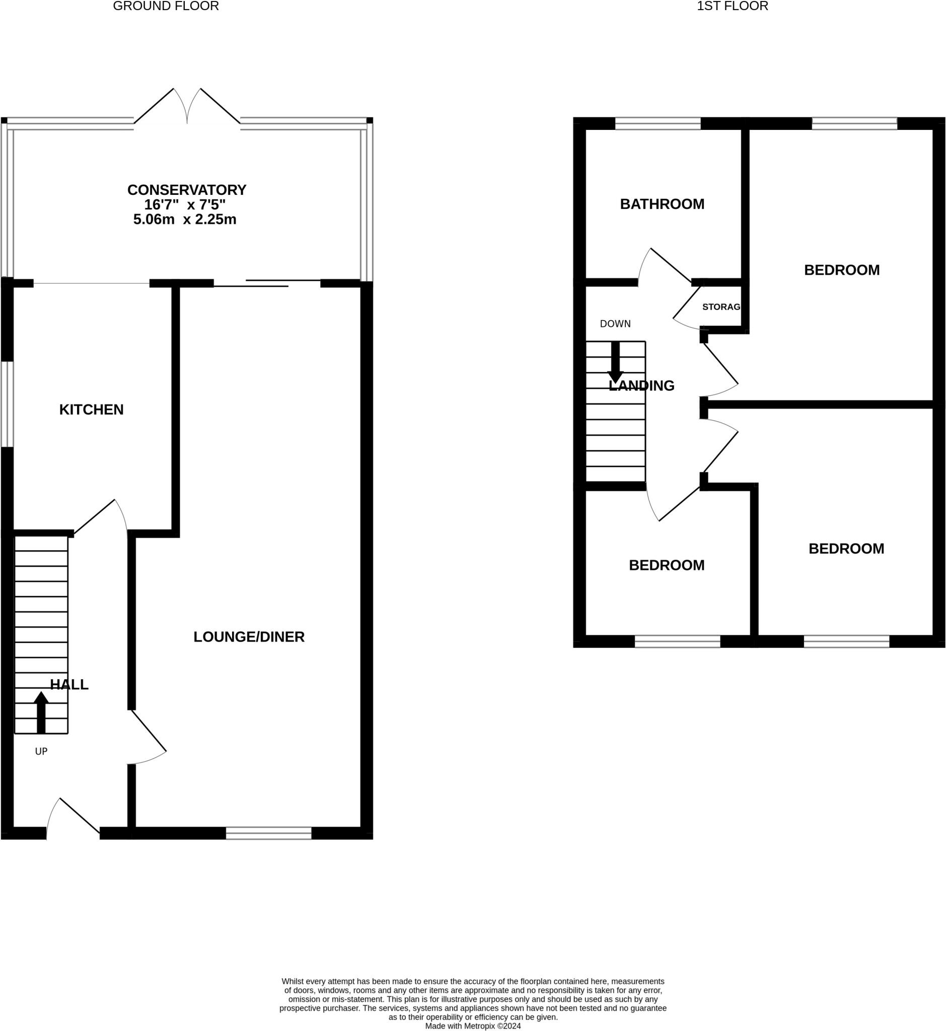
Set on a quiet street in Oakthorpe, this three-bedroom semi-detached house offers practical family living across circa 776 sq ft. The open-plan lounge/diner and conservatory create a roomy social heart that opens onto a landscaped private rear garden and patio — good for children and outdoor entertaining. Off-street parking and a detached garage add useful storage and parking capacity for everyday life.
The property is constructed in the early 1990s and benefits from double glazing and a filled cavity wall. Heating is provided by an oil-fired boiler with radiators; this suits homes off the gas grid but means ongoing fuel and maintenance costs should be considered. The home has a four-piece bathroom and three bedrooms, with the smallest bedroom best used as a study or nursery.
Practical drawbacks are clear: the EPC rating is E and broadband speeds are slow, which may affect working-from-home or streaming needs. Council Tax sits above average (Band B), and the overall internal size is modest at around 776 sq ft — buyers seeking very generous living space should note the footprint. The property sits in a village with good transport links, local amenities and well-regarded primary and secondary schools nearby, making it a sensible choice for families wanting village life with commuter access.
3 bedroom semi-detached house for sale in School Street, Oakthorpe, Swadlincote, DE12 — £210,000 • 3 bed • 1 bath • 776 ft²
3 bedroom semi-detached house for sale in Chapel Street, Oakthorpe, Swadlincote, DE12 — £310,000 • 3 bed • 2 bath • 1465 ft²
4 bedroom detached house for sale in Boncroft Gardens, Oakthorpe, DE12 — £425,000 • 4 bed • 2 bath • 1613 ft²
3 bedroom semi-detached house for sale in Moira Road, Donisthorpe, Swadlincote, Leicestershire, DE12 — £170,000 • 3 bed • 1 bath • 941 ft²
4 bedroom detached house for sale in Chapel Street, Oakthorpe, DE12 — £495,000 • 4 bed • 2 bath • 1937 ft²
3 bedroom semi-detached house for sale in The Old Stables, Oakthorpe, DE12 7RZ., DE12 — £310,000 • 3 bed • 2 bath • 1270 ft²


















































































