Energy-efficient three-bedroom home with parking and enclosed garden, ideal for families.
- Built circa 2022 with solar panels and B-rated EPC
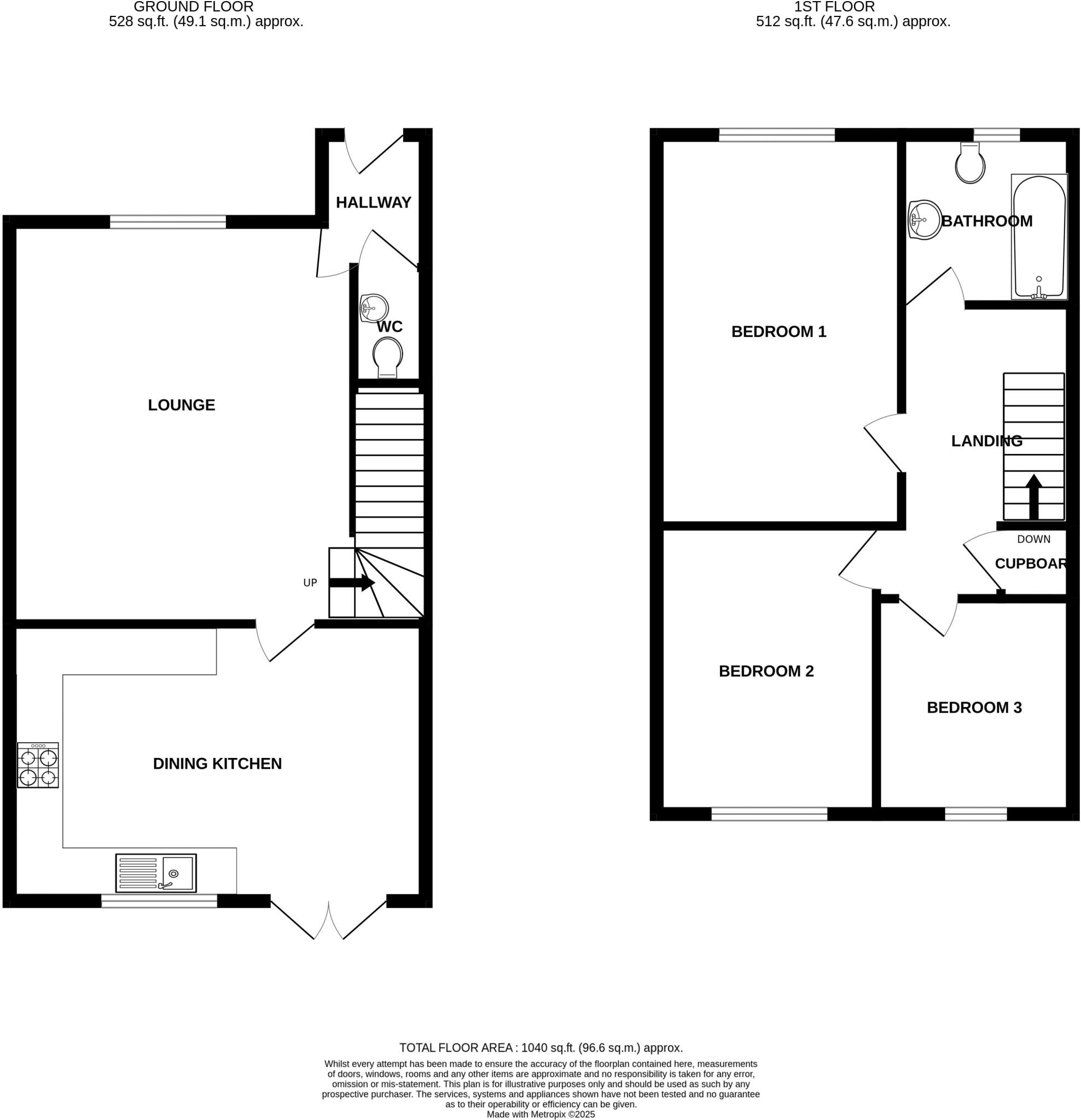
- Three bedrooms including two double rooms
- Fitted dining kitchen with French windows to garden
- Fully enclosed, landscaped rear garden (small plot)
- Double-width off-street driveway for two cars
- Single family bathroom only upstairs
- Local crime levels reported as high
- Approximately 2.5 miles from Todmorden town centre
A modern three-bedroom terrace built circa 2022, this energy-efficient home suits families seeking low-running costs and countryside access. Solar panels, a B-rated EPC and gas central heating keep bills down, while double glazing and a security alarm provide practical comfort.
The ground floor features a lounge and a fitted dining kitchen with French windows opening onto a fully enclosed, landscaped rear garden. Upstairs are three bedrooms (two doubles) and a contemporary bathroom — a straightforward, family-friendly layout across about 1,040 sq ft. A double-width driveway provides off-street parking for two cars.
Practical considerations are clear: the plot is small and the property has a single family bathroom, so households needing extensive outdoor space or multiple bathrooms should factor that in. Local crime levels are reported as high for the area, which may influence some buyers' decisions. Todmorden town centre is approximately 2.5 miles away, with nearby primary and secondary schools of mixed Ofsted outcomes.
Overall this is a tidy, low-maintenance home that offers modern fixtures, energy savings and easy access to countryside walks. It will appeal most to families or first-time buyers wanting a recently built, compact family house with parking and a secure garden.
3 bedroom terraced house for sale in Burnley Road, Cornholme, OL14 — £215,000 • 3 bed • 1 bath • 806 ft²
3 bedroom semi-detached house for sale in Ivy Place, Todmorden, OL14 — £240,000 • 3 bed • 1 bath • 785 ft²
3 bedroom end of terrace house for sale in Burnley Road, Todmorden, OL14 — £220,000 • 3 bed • 1 bath • 794 ft²
3 bedroom end of terrace house for sale in Burnley Road, Todmorden, OL14 — £220,000 • 3 bed • 1 bath • 806 ft²
3 bedroom semi-detached house for sale in Ivy Place, Todmorden, OL14 — £240,000 • 3 bed • 1 bath • 785 ft²
3 bedroom end of terrace house for sale in Burnley Road, Cornholme, Todmorden, OL14 — £179,950 • 3 bed • 1 bath • 826 ft²






















































