**Standout Features:**
- Newly refurbished four-bedroom end-of-terrace home
- Bright open-plan kitchen/dining room with bi-folding doors
- Private, south-west facing garden ideal for entertaining
- Off-street driveway parking and additional outdoor shed for storage
- Proximity to Maidenhead Railway Station (1.3 miles)
**Potential Considerations:**
- Double glazing installed pre-2002 may require updates
- Above-average crime rate in the local area
- Cavity walls with no insulation (assumed)
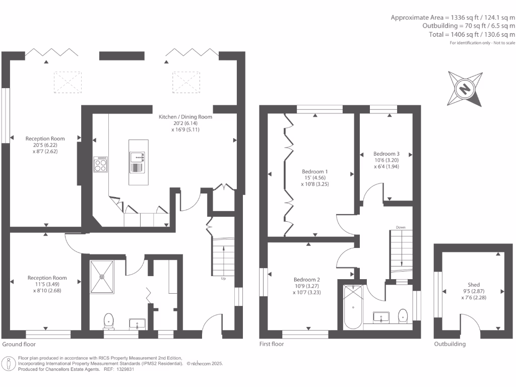
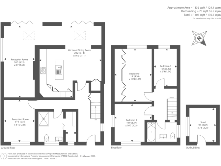
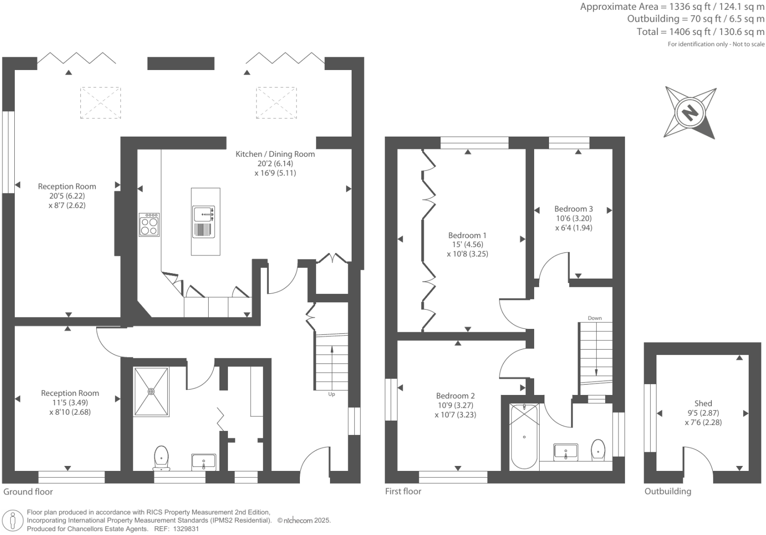
Discover your dream family home in this stylishly remodeled four-bedroom property, ideally situated in a desirable area. The heart of the home features a modern open-plan kitchen and dining area that flows seamlessly into a spacious reception room. Natural light floods through the bi-folding doors, leading out to a lovely south-west facing garden—perfect for family gatherings or summer barbecues.
With two contemporary bathrooms and an extra reception room that can double as a fourth bedroom, this layout offers flexibility for modern family living. The property boasts convenient off-street parking and is just a short distance from local amenities and highly-rated schools, making it an excellent choice for families and first-time buyers alike. Although there are maintenance aspects to consider, such as updating glazing and insulation, the recent renovations set a solid foundation for you to create your ideal living space.
This opportunity to own a chain-free family home with ample room for growth won't last long—schedule your viewing today to secure your place in this thriving community!



















































































