Sunlit rooms, private garden, and excellent local schools — ideal for growing families.
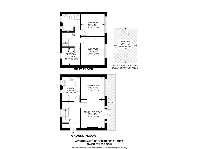
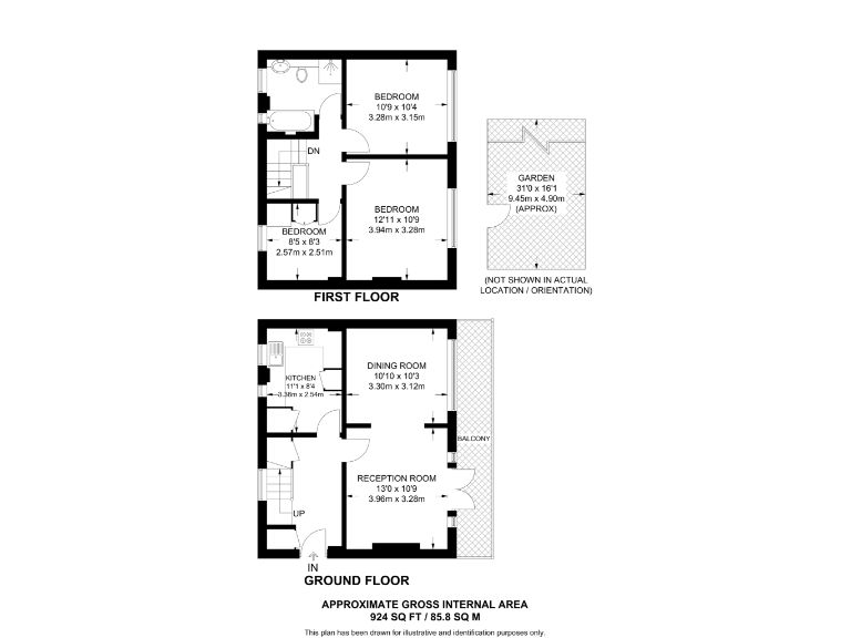
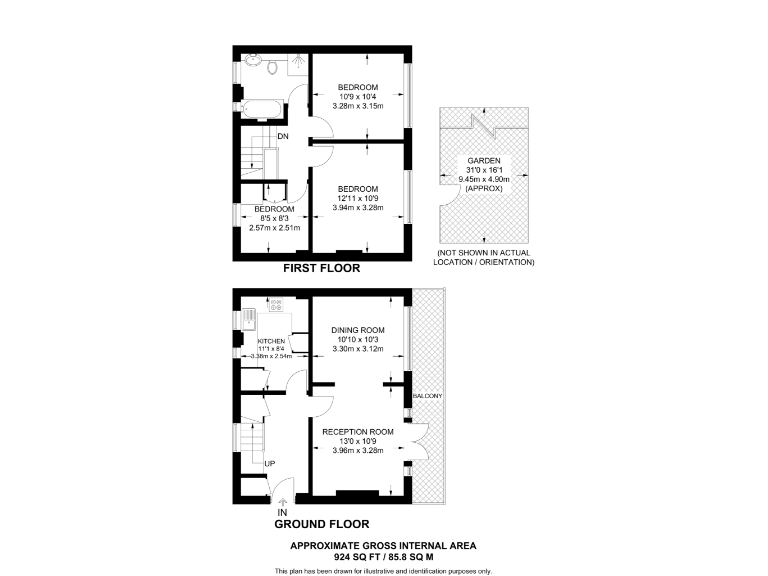
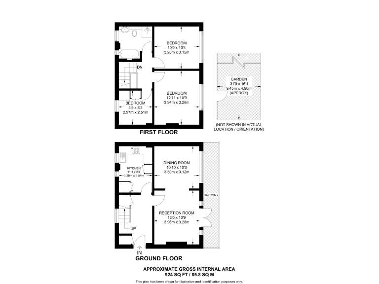
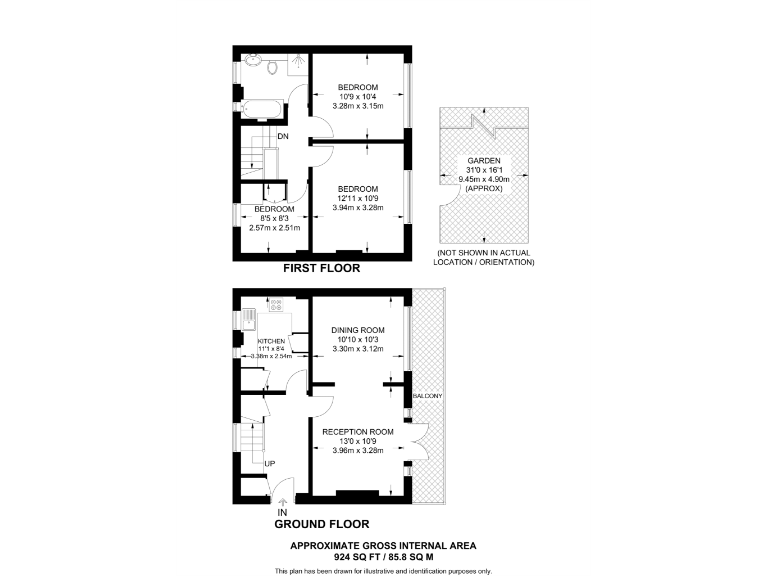
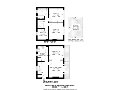
Three double bedrooms, 924 sq ft internal space
This spacious 3-bedroom maisonette offers generous, sunlit interiors across an average-sized 924 sq ft layout, ideal for growing families who value outdoor space. The separate modern kitchen, charming reception room and dedicated dining room create practical living and entertaining zones, while a private garden provides a safe place for children and outdoor dining.
Located in Fortis Green (N2), the flat sits within easy reach of East Finchley station and local amenities in Muswell Hill. The area is very affluent with excellent broadband, low crime and multiple well-rated primary and secondary schools close by — a clear draw for parents.
Practical points to note: the property is leasehold and has only one family bathroom for three bedrooms. The building dates from the 1950s–60s with solid brick walls and assumed no cavity insulation, so owners may want to budget for thermal upgrades. Double glazing is already installed but predates 2002.
Overall this maisonette suits families seeking space, good local schools and convenient transport links, and buyers willing to invest modestly in energy-efficiency improvements to modernise the fabric of the home.
3 bedroom apartment for sale in Fortis Green Avenue, London, N2 — £900,000 • 3 bed • 2 bath • 1281 ft²
3 bedroom apartment for sale in Leslie Road, East Finchley, London, N2 — £575,000 • 3 bed • 1 bath • 773 ft²
3 bedroom apartment for sale in Princes Avenue, London, N10 — £1,300,000 • 3 bed • 3 bath • 1303 ft²
3 bedroom maisonette for sale in Acacia Road, Wood Green, London, N22 — £475,000 • 3 bed • 2 bath • 909 ft²
3 bedroom maisonette for sale in RUBY MEWS, Wood Green, London, N13 — £575,000 • 3 bed • 2 bath • 1192 ft²
3 bedroom maisonette for sale in Summerhill Road, Tottenham, London, N15 — £525,000 • 3 bed • 1 bath • 782 ft²














































































































































































































































































