Secluded renovated two-bedroom cottage with huge plot and outstanding rural views..
- Detached single-storey stone cottage with expansive countryside views
- Newly renovated interior with shaker kitchen and recent upgrades
- Large plot (almost one third of an acre), south-facing gardens
- Stone outbuilding with power and light; conversion potential (consents required)
- EV charger and off-street parking with generous driveway turning
- Medium flood risk; property in a medium-risk zone
- No mobile signal and very slow broadband — limited connectivity
- Stone walls likely uninsulated; further energy improvements may be needed
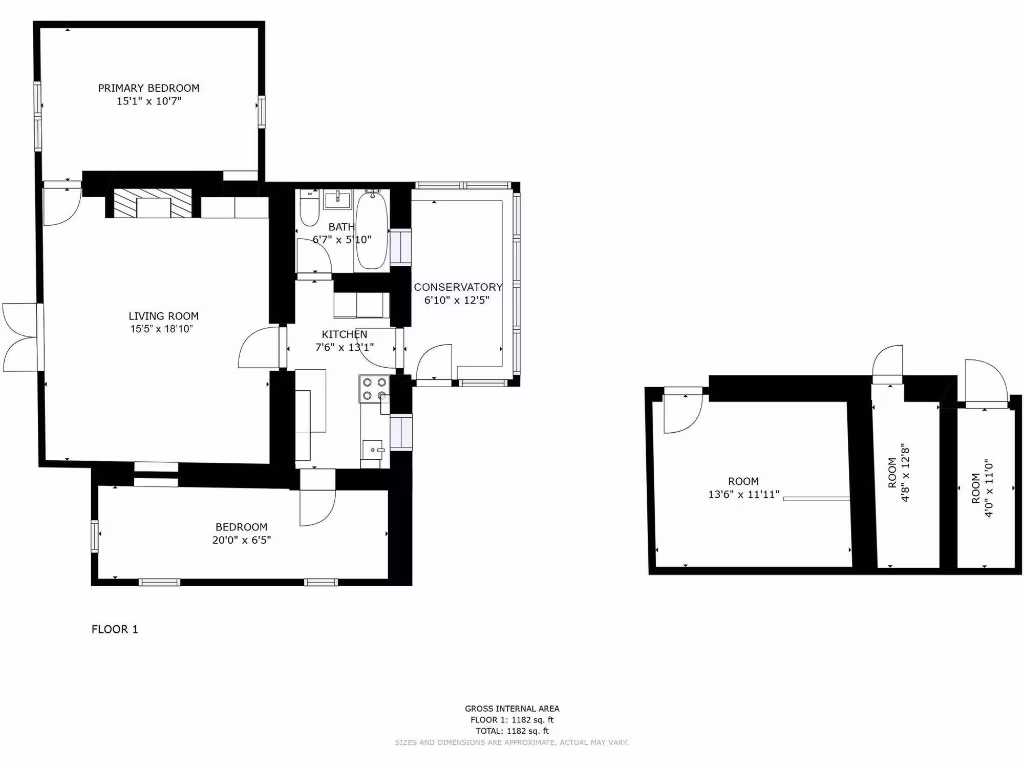
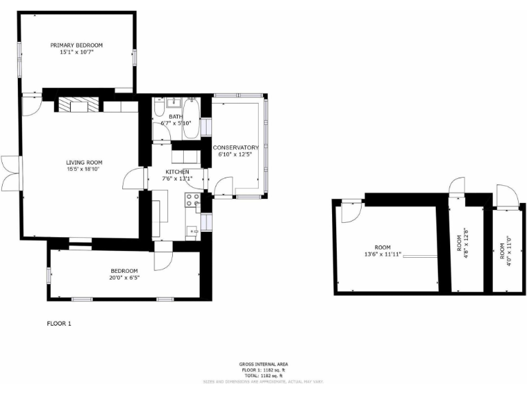
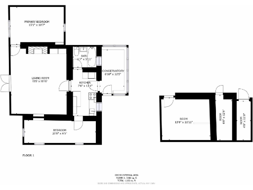
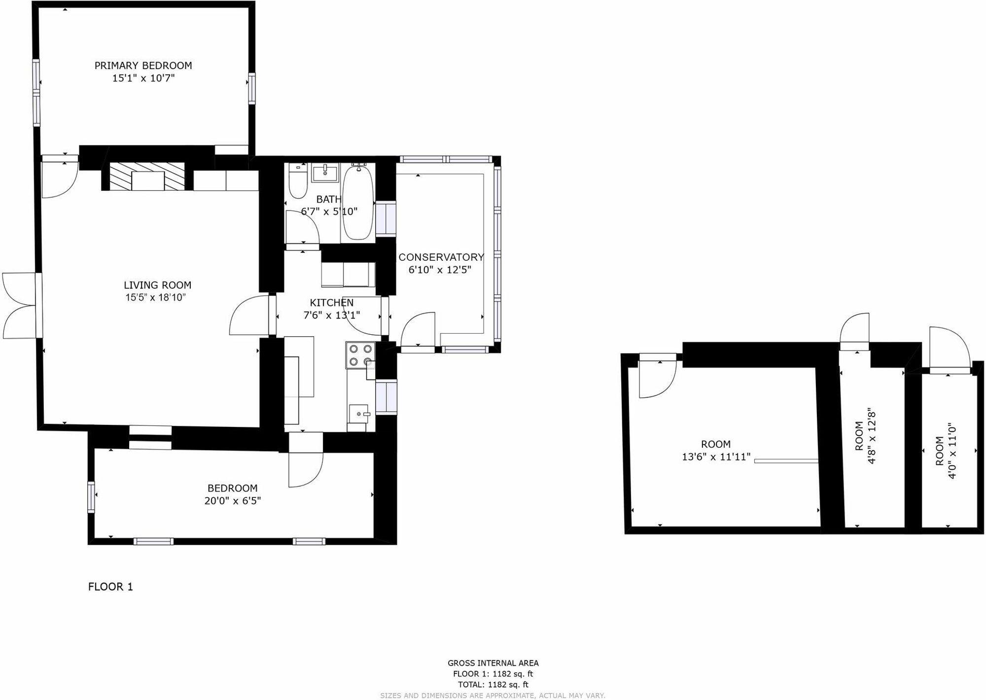
Set on almost a third of an acre at the edge of Kielder, this newly renovated two-bedroom stone cottage blends rustic character with practical updates. South-facing gardens, a raised deck and uninterrupted countryside views give a strong sense of privacy and space; an outbuilding divided into three rooms with power offers scope for storage or conversion (subject to consents).
Inside, the house feels warm and inviting: a glazed conservatory frames views on arrival, a versatile living room centres on a deep fireplace with a multi-fuel stove, and shaker-style kitchen units with solid wood worktops sit alongside contemporary finishes installed during the recent renovation. The principal bedroom is a quiet dual-aspect retreat while the second bedroom and family bathroom complete the single-storey layout.
Practical features suit modern rural life: EV charger and driveway parking, new central heating system and boiler installed in 2021 (LPG-fired), private spring water supply and compliant septic tank. The property lies within the Northumberland International Dark Sky Park and offers direct access to extensive walking and cycling routes — ideal for anyone who values fresh air and big skies.
Buyers should note a few material considerations: the cottage sits in a medium flood-risk area and mobile signal is non-existent with very slow broadband, which will affect home working and connectivity. The stone walls are likely uninsulated and further insulation or energy upgrades may be required to reduce running costs despite the recent heating work. Outbuilding conversion would need planning approvals.
3 bedroom detached house for sale in Stannersburn, Hexham, NE48 — £345,000 • 3 bed • 3 bath • 1127 ft²
2 bedroom semi-detached house for sale in Castle Cottages, Kielder, Hexham, Northumberland, NE48 — £245,000 • 2 bed • 1 bath • 728 ft²
2 bedroom detached house for sale in West View, Stannersburn, NE48 — £240,000 • 2 bed • 1 bath • 964 ft²
4 bedroom detached house for sale in Falstone, Northumberland, NE48 — £450,000 • 4 bed • 2 bath • 1507 ft²
3 bedroom terraced house for sale in South Waterside, Kielder, Hexham, Northumberland, NE48 — £100,000 • 3 bed • 1 bath • 1212 ft²
3 bedroom semi-detached house for sale in Falstone, Hexham, NE48 — £185,000 • 3 bed • 1 bath • 1034 ft²






























































