**Standout Features:**
- Spacious detached six-bedroom family home
- Large southerly aspect garden with landscaping
- Two substantial garages and gated parking for over ten vehicles
- Ground-floor bedroom with en-suite; potential for annex conversion
- Dual living and dining areas plus conservatory
- Gas central heating and double-glazing throughout
- Chain-free sale for a smooth transition
- Located in a family-friendly suburb with excellent local amenities
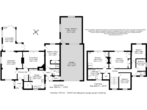
This impressive six-bedroom detached house is a rare find, offering 2,130 square feet of versatile living space within a serene suburban setting. Set on a substantial plot with an expansive landscaped garden, this home is ideal for families seeking ample outdoor room for play and entertainment. The well-designed interiors include a welcoming formal hall, generous living and dining rooms, a fitted kitchen, conservatory, and a suite of well-proportioned bedrooms, including a ground-floor option with en-suite—perfect for multi-generational living or guest accommodation.
With two double garages and secure parking for ten cars, hosting family gatherings will be seamless. Enjoy the benefits of gas central heating and modern double glazing, ensuring comfort year-round. Positioned conveniently near local amenities, schools, and beautiful country walks, this property invites you to envision a lifestyle of exclusivity and comfort. Don't miss this chance—properties of this caliber in the sought-after Quemerford area are rare and usually snapped up quickly.
4 bedroom detached house for sale in Fir Grove, Calne, SN11 — £410,000 • 4 bed • 2 bath • 1126 ft²
6 bedroom detached house for sale in Wren Court, Calne, SN11 — £550,000 • 6 bed • 4 bath • 2000 ft²
4 bedroom detached house for sale in Quemerford, Calne, SN11 — £514,500 • 4 bed • 2 bath • 1586 ft²
4 bedroom semi-detached house for sale in Ernle Road, Calne, SN11 — £355,000 • 4 bed • 2 bath • 1700 ft²
3 bedroom detached house for sale in Wessington Park, Calne, SN11 — £675,000 • 3 bed • 1 bath • 1663 ft²
4 bedroom detached house for sale in Sparrows Crescent, Calne, SN11 — £489,950 • 4 bed • 3 bath • 1701 ft²






























