Practical town home close to station and local amenities for first-time buyers.
Chain-free freehold two-bedroom terraced house
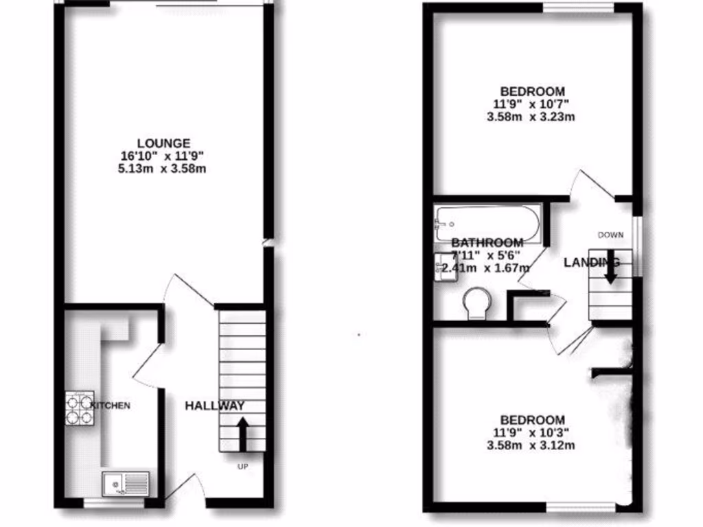
This compact two-bedroom terraced house in the Avondale development offers a straightforward, chain-free purchase for first-time buyers or investors. The living room opens to a private rear garden via sliding doors, and the fitted kitchen provides practical workspace. A garage and residents’ parking add useful off-street options in a convenient town setting.
Upstairs are two double bedrooms and a modern family bathroom. The property is freehold, EPC C (71) and in an area rated as affluent with good local schools and fast broadband—appealing for commuting and everyday family life. Ash Vale rail station and local amenities are within easy walking distance.
The house has a small overall footprint and a modest rear garden, making it best suited to buyers seeking manageable outdoor space or a rental investment rather than those needing extensive living or entertaining areas. Heating is supplied by mains gas and room heaters; buyers should confirm the heating system condition and any ongoing maintenance needs prior to exchange.
Overall this is a practical, well-located terraced home sold with no chain, offering easy access to transport links and local schools. It presents a sensible entry point onto the property ladder or a compact buy-to-let opportunity, with modest renovation potential to add personal style.
2 bedroom end of terrace house for sale in Alder Close, Ash Vale, Aldershot, GU12 — £315,000 • 2 bed • 1 bath • 786 ft²
2 bedroom terraced house for sale in Cypress Grove, Ash Vale, Surrey, GU12 — £325,000 • 2 bed • 1 bath • 475 ft²
2 bedroom terraced house for sale in Derry Close, Ash Vale, Surrey, GU12 — £315,000 • 2 bed • 1 bath • 580 ft²
2 bedroom end of terrace house for sale in Shackleton Close, Ash Vale, Surrey, GU12 — £375,000 • 2 bed • 2 bath • 540 ft²
1 bedroom bungalow for sale in Avondale, Ash Vale, Surrey, GU12 — £295,000 • 1 bed • 1 bath • 513 ft²
1 bedroom end of terrace house for sale in Avondale, Ash Vale, Surrey, GU12 — £225,000 • 1 bed • 1 bath • 355 ft²


























































