**Standout Features:**
- Prime mixed-use investment opportunity in Nottingham City Centre
- Gross rental income: £297,886 P.A.X. with potential ERV of £430,113 P.A.X.
- Change of use and redevelopment potential, subject to planning
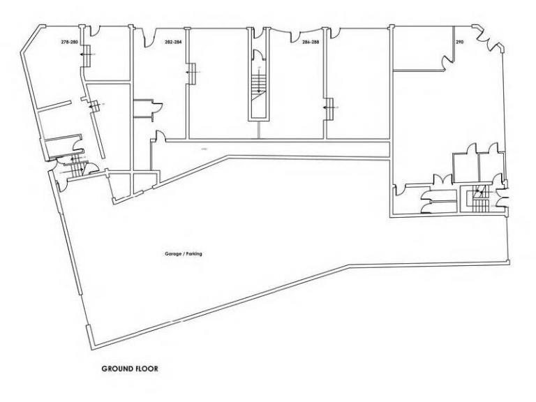
- Four self-contained retail units with prominent street frontages
- Covered parking for 14 vehicles, accessible via dual entry points
- Significant demand for both student and residential accommodation nearby
- Excellent transport links and proximity to key local amenities, including universities and leisure spots
**Summary:**
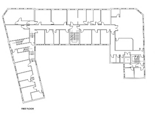
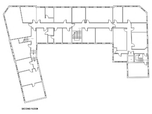
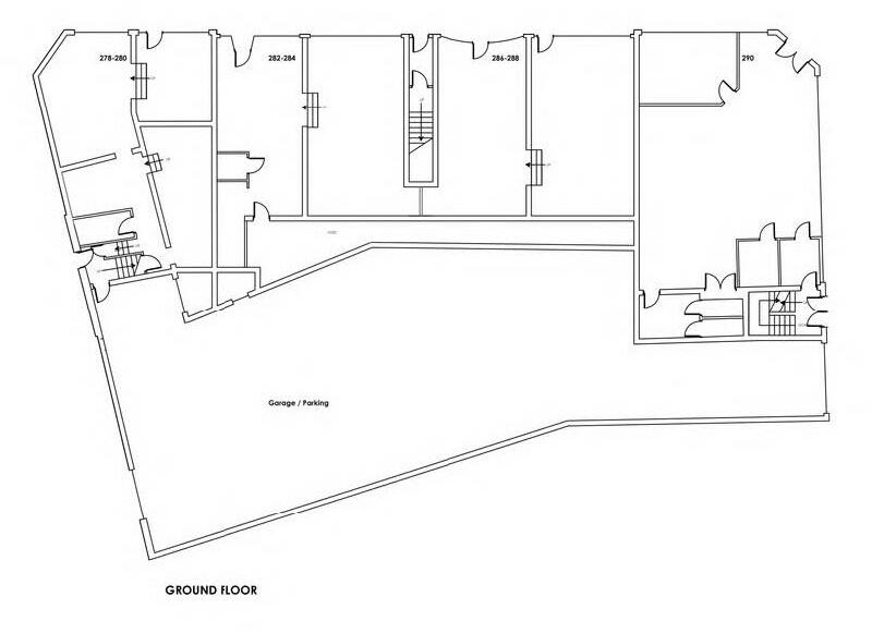
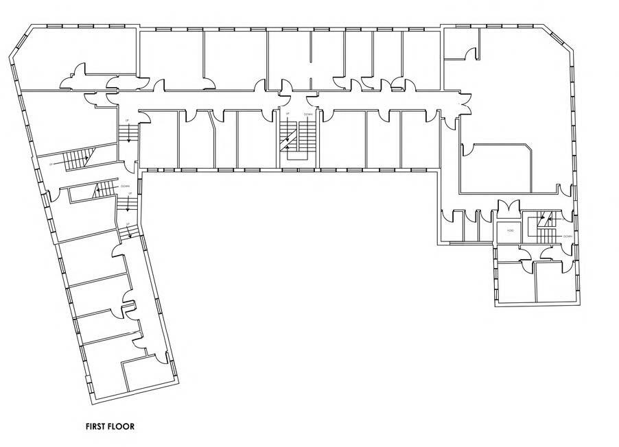
Discover a lucrative investment opportunity in the heart of Nottingham City Centre with this expansive mixed-use property at Huntingdon House. Spanning over 16,256 square feet, the building houses multiple retail units and serviced office spaces, making it perfect for diverse business tenants. Its prominent location along Huntingdon Street ensures high visibility—less than a 10-minute walk to Nottingham Trent University, Nottingham College, and the Motorpoint Arena. While the structure currently generates a solid income, the potential for redevelopment offers exciting options to capitalize on the high demand for both student and residential living in this vibrant urban neighborhood.
However, prospective buyers should take note of the average crime rates and the local area's socio-economic challenges. This presents an opportunity for future redevelopment and revitalization in a rapidly changing locale. With its solid foundation, multiple access points, and adaptability for changes in use, this property not only promises immediate revenue but also future growth potential. Don’t miss your chance to invest in an area poised for transformation. Offers are invited in excess of £2.3 million—seize this unique opportunity today!
Mixed use property for sale in 15 Castle Gate, Nottingham NG1 7AQ, NG1 — £1,200,000 • 1 bed • 1 bath • 8525 ft²
Commercial property for sale in 48 Upper Parliament Street, Nottingham, Nottinghamshire, NG1 — £750,000 • 1 bed • 1 bath • 2444 ft²
3 bedroom house share for sale in HMO FLAT & SHOP - Mansfield Road, Nottingham NG1 3FQ, NG1 — £360,000 • 3 bed • 2 bath • 1486 ft²
High street retail property for sale in 102-106 Upper Parliament Street, Nottingham, Nottinghamshire, NG1 — £1,650,000 • 1 bed • 1 bath • 13075 ft²
10 bedroom mixed use property for sale in Radford Road, Nottingham, Nottinghamshire, NG7 — £1,600,000 • 10 bed • 1 bath • 4184 ft²
Land for sale in Mansfield Road, Nottingham, NG1 — £2,100,000 • 1 bed • 1 bath










































