Compact, well-located first-floor flat ideal for first-time buyers or investors..
Chain-free sale, share of freehold included
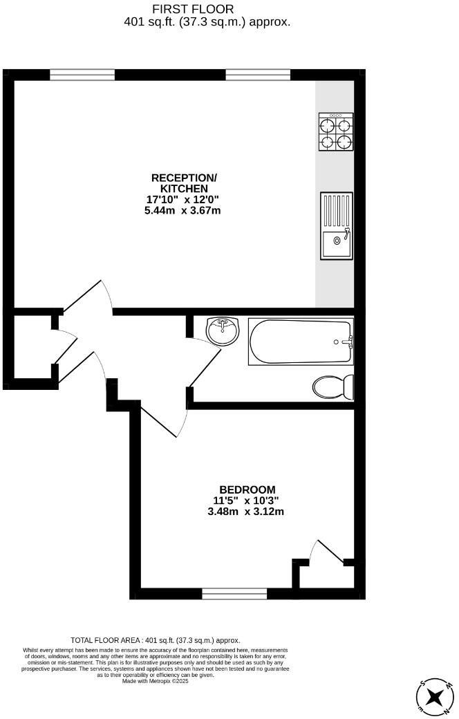
This chain-free, share-of-freehold one-bedroom flat occupies the first floor of a Victorian terrace on Mildmay Road, moments from Newington Green's cafes and amenities. Tall sash-style windows and high ceilings create a bright, airy open-plan living space with a modern fitted kitchen and wood flooring. The double bedroom sits to the rear with pleasant garden views, and a contemporary bathroom completes the accommodation.
At about 401 sq ft, the apartment suits a first-time buyer or investor seeking a compact central-London home with good transport links (Canonbury, Dalston Overground stations and multiple bus routes). Practical extras include a shared rear balcony and part of a communal storage area. Offered chain-free, the sale is straightforward and comes with a share of the freehold.
Be aware this is a small city flat: internal storage and circulation are limited and room sizes are modest. The building is an early 20th-century solid-brick conversion, so wall insulation is likely minimal. The immediate area has above-average crime and measures of deprivation, which should be considered alongside the strong local amenity and transport convenience.
This property works well for a buyer wanting move-in-ready accommodation in a lively, well-connected neighbourhood, or an investor seeking a compact rental in a popular Islington pocket. Any purchaser should budget for routine updating or thermal improvements if desired, and consider storage solutions to maximise the compact layout.
2 bedroom flat for sale in Mildmay Road, London N1 — £650,000 • 2 bed • 1 bath • 744 ft²
2 bedroom flat for sale in Mildmay Road, Newington Green, N1 — £550,000 • 2 bed • 1 bath • 496 ft²
2 bedroom flat for sale in Petherton Road, London N5 — £600,000 • 2 bed • 1 bath • 501 ft²
1 bedroom flat for sale in Mildmay Road,
Islington, N1 — £485,000 • 1 bed • 1 bath • 389 ft²
2 bedroom flat for sale in Mildmay Road, London, N1 — £650,000 • 2 bed • 1 bath • 746 ft²
1 bedroom flat for sale in Mildmay Road, London, N1 — £450,000 • 1 bed • 1 bath • 522 ft²


















































