Income-producing flat with immediate rental returns and refurbishment potential.
- Currently let producing £8,400 gross annually (tenant in situ)
- Approximate gross yield c.9% at asking price
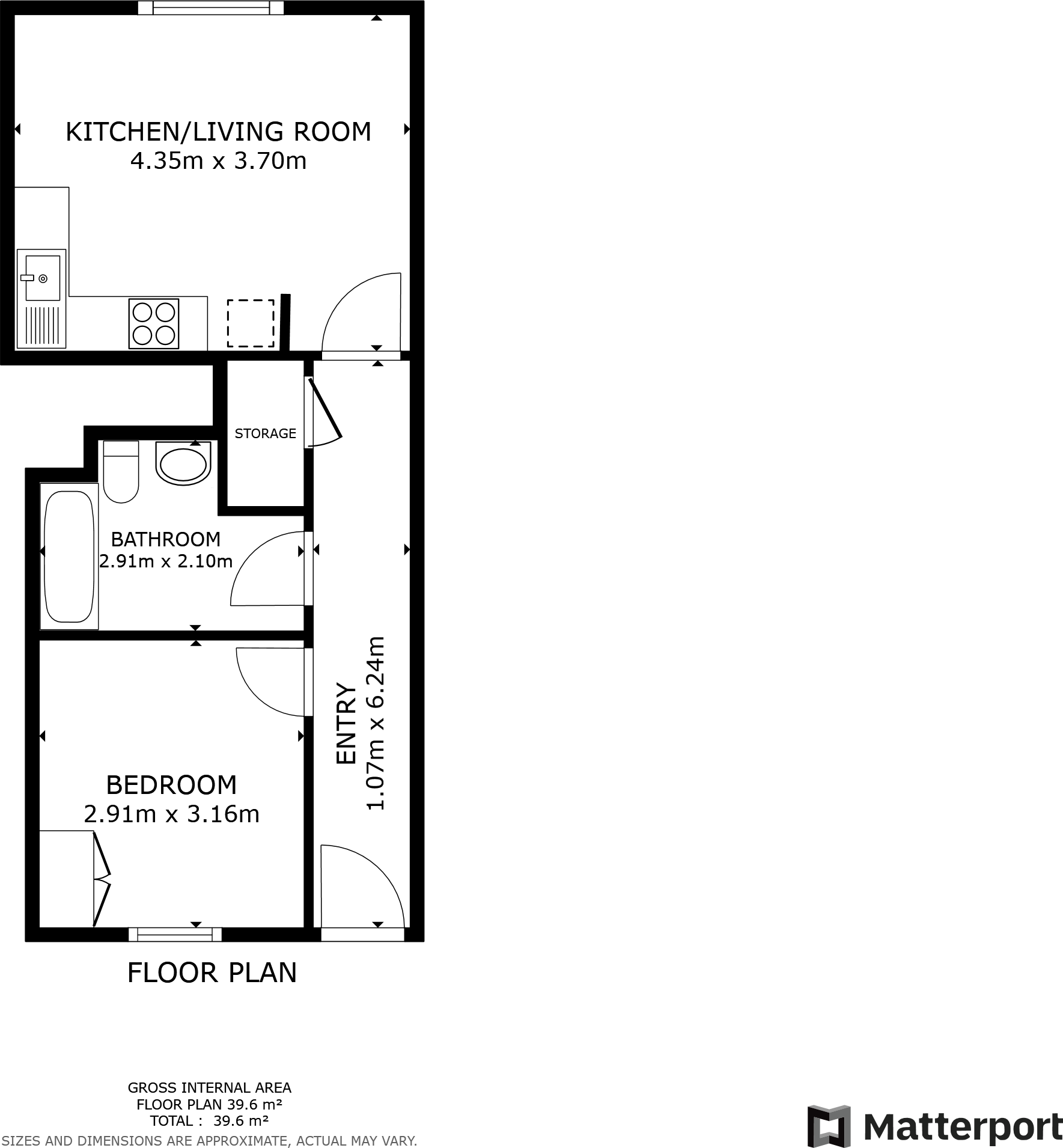
- Small 1-bed flat, approximately 431 sqft
- Shared private off-street parking available
- Leasehold tenure; buyers should check lease details
- Located in very deprived area with very high crime
- Dated interior; cosmetic refurbishment recommended
- Buyers Premium applies on sale
A compact one-bedroom flat in Cardigan House, set within a contemporary block close to central Sheffield amenities. The property is currently let to a long-term tenant and produces an annual gross income of £8,400, offering an approximate gross yield of around 9% at the listed price. Shared private off-street parking adds practical value for tenants in this inner-city location.
The flat is small (around 431 sqft) and shows signs of age in the living area and finishes; modest refurbishment would increase rental appeal and capital value. The building appears well-maintained externally, with balconies and secure parking, but the flat itself suits buyers comfortable managing a compact, value-driven rental asset.
Important sale details: the property is leasehold, located in a very deprived area with very high local crime rates and a multicultural, student-heavy neighbourhood—factors that influence tenant demand and management considerations. A Buyers Premium applies on sale. For investors seeking an immediate income-producing addition, this is a clear buy-to-let opportunity with scope to improve returns through upgrading the accommodation.
1 bedroom flat for sale in St. Marys Road, Sheffield, S2 — £85,000 • 1 bed • 1 bath • 474 ft²
1 bedroom flat for sale in Priestley Street, Sheffield, S2 — £63,000 • 1 bed • 1 bath • 301 ft²
3 bedroom flat for sale in Bradfield Road, Sheffield, S6 — £57,000 • 3 bed • 1 bath • 699 ft²
1 bedroom flat for sale in Pitsmoor Road, Sheffield, S3 — £43,000 • 1 bed • 1 bath
2 bedroom flat for sale in Leadmill Street, Sheffield, S1 — £117,600 • 2 bed • 1 bath • 570 ft²
Studio flat for sale in Egerton Street, Sheffield, S1 — £43,500 • 1 bed • 1 bath


































































