Characterful three-bedroom semi with large garden and off-street parking in sought-after Market Harborough location..
Tudor-period semi with bay window and original fireplace
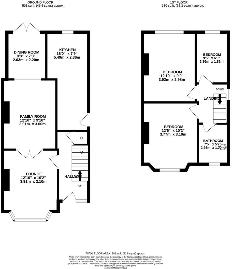
Three bedrooms, single family bathroom (one bath/shower)
Decent rear garden suitable for family use or landscaping projects
Off-street driveway parking for several cars
Built 1920 — traditional layout with period features to retain
Requires modernisation and updating throughout
Limited scope for large lateral extension on this plot
Highly convenient location close to town centre and good schools
This 1920s semi-detached house blends Tudor character and practical family living on a prestigious Market Harborough road. Period features such as a bay window, fireplace and hardwood floors give the home immediate charm, while well-proportioned reception rooms offer flexible space for daily life and entertaining.
Set on a decent plot, the property benefits from off-street parking for several cars and a substantial rear garden that suits family use, gardening or future landscaping projects. Its location is a short walk from the town centre, Welland Park and several well-regarded schools, making it a convenient choice for families.
Internally the layout is traditional and comfortable with three bedrooms and one family bathroom; fixtures are in lived-in condition and there is clear potential to modernise to personal taste. Buyers should note the house will reward updating and reconfiguration rather than being move-in perfect, and opportunities for large lateral extensions appear limited by plot and neighbouring properties.
Overall this home suits buyers seeking period character, good parking and garden space in an affluent, low-crime area — ideal for families wanting a central Market Harborough address with scope to add value through sympathetic renovation.
3 bedroom semi-detached house for sale in Crescent Close, Market Harborough, LE16 — £350,000 • 3 bed • 1 bath • 926 ft²
3 bedroom semi-detached house for sale in Coventry Road, Market Harborough, LE16 — £450,000 • 3 bed • 1 bath • 1033 ft²
3 bedroom semi-detached house for sale in Gardiner Street, Market Harborough, LE16 — £400,000 • 3 bed • 1 bath • 1377 ft²
3 bedroom semi-detached house for sale in Willow Crescent, Market Harborough, LE16 — £335,000 • 3 bed • 1 bath • 1297 ft²
4 bedroom semi-detached house for sale in The Ridgeway, Market Harborough, LE16 — £450,000 • 4 bed • 1 bath • 1292 ft²
3 bedroom semi-detached house for sale in Wartnaby Street, Market Harborough, LE16 — £300,000 • 3 bed • 2 bath • 951 ft²


























































