**Standout Features:**
- Guide Price: £900,000 - £950,000
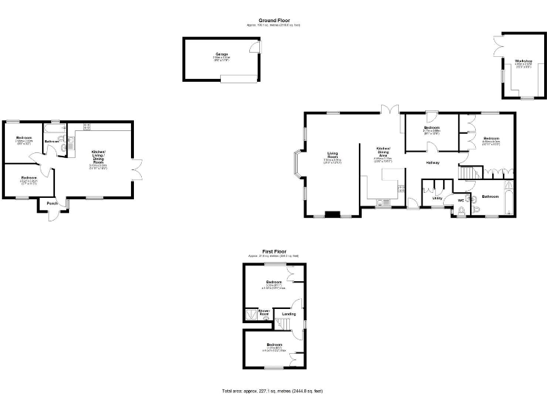
- 4-bedroom detached house with a 2-bedroom guest house
- Stunningly modernized, no onward chain
- Secure gated entrance, multiple car driveway
- Expansive plot size with additional garage and outbuilding
- Ideal for families; ample living and entertaining space
Discover the charm of rural living in this beautifully modernized 6-bedroom property, perfectly situated in the picturesque hamlet of Stanford Rivers. This spacious home masterfully blends historical allure with contemporary design, featuring three generous reception areas, a captivating open-plan living space with a cathedral ceiling, and high-quality finishes throughout.
The inviting main residence offers four well-appointed bedrooms, while the separate 2-bedroom guest house provides the perfect retreat for visitors or older children. Enjoy the security of a gated entrance and ample parking with the expansive driveway, garage, and additional outbuilding, enhancing the property's practicality.
Benefiting from a tranquil semi-rural location, this delightful home is ready for immediate move-in, presenting an exceptional opportunity for families seeking comfort and style. However, do note that the area may have high crime levels and higher council taxes, factors that merit consideration. Don’t miss your chance to create lasting memories in this remarkable residence, available now without any onward chain. Acting quickly could make this exclusive property yours!
4 bedroom detached house for sale in London Road, Stanford Rivers, CM5 — £1,500,000 • 4 bed • 4 bath • 2919 ft²
4 bedroom semi-detached house for sale in London Road, Stanford Rivers, CM5 — £800,000 • 4 bed • 2 bath • 1544 ft²
5 bedroom detached house for sale in Stanford Rivers, Ongar CM5 — £1,650,000 • 5 bed • 2 bath • 3533 ft²
4 bedroom barn conversion for sale in School Road, Stanford Rivers, CM5 — £875,000 • 4 bed • 2 bath • 1981 ft²
3 bedroom barn conversion for sale in The Barn, Stanford Rivers, CM5 — £750,000 • 3 bed • 3 bath • 2256 ft²
4 bedroom semi-detached house for sale in Church Road, Stanford Rivers, CM5 — £1,250,000 • 4 bed • 3 bath • 2181 ft²






















































































































































