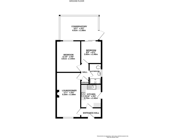
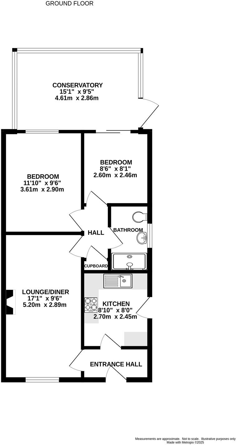
**Standout Features:**
- Semi-detached bungalow with 2 bedrooms
- Modern kitchen with integrated appliances
- Spacious conservatory
- Off-road parking and carport
- Low crime in the area
- Fast broadband and excellent mobile signal
- Chain-free sale
**Potential Concerns:**
- Small overall size (556 sq ft)
- Low ceiling height in some areas
- Needs some cosmetic updates to certain areas
Discover your ideal retreat in this well-presented two-bedroom semi-detached bungalow, ideally located on the edge of Chapel-en-le-Frith. This charming home boasts a modern kitchen with stylish gloss white cabinets, an inviting lounge, and a bright conservatory that extends your living space and invites the outdoors in. The property features gas central heating and double glazing—many windows replaced in the last five years—ensuring comfort across all seasons.
Perfect for families or first-time buyers, this bungalow benefits from a low-maintenance front garden and a rear patio ideal for entertaining or relaxing. With off-street parking and a carport, convenience is at your doorstep. Nestled in a friendly suburban area with easy access to local schools and amenities, you can enjoy both the convenience of town living and the beauty of the surrounding Peak District countryside. Act quickly—properties like this are in high demand, and this beautiful home offers an excellent opportunity for comfortable, accessible living in a tranquil setting.
2 bedroom semi-detached bungalow for sale in Beckets Wood, Chapel-En-Le-Frith, High Peak, SK23 — £270,000 • 2 bed • 1 bath • 653 ft²
2 bedroom semi-detached bungalow for sale in Bagshawe Avenue, Chapel-En-Le-Frith, High Peak, SK23 — £224,950 • 2 bed • 1 bath • 574 ft²
2 bedroom semi-detached bungalow for sale in Horseshoe Avenue, Dove Holes, SK17 — £210,000 • 2 bed • 1 bath • 711 ft²
2 bedroom semi-detached bungalow for sale in Horseshoe Avenue, Dove Holes, Buxton, SK17 — £190,000 • 2 bed • 1 bath • 505 ft²
3 bedroom detached bungalow for sale in Horderns Lane, Chapel-En-Le-Frith, High Peak, SK23 — £475,000 • 3 bed • 3 bath • 1952 ft²
3 bedroom detached bungalow for sale in Danesway, Chapel-En-Le-Frith, SK23 — £395,000 • 3 bed • 2 bath • 969 ft²


























































