Characterful three-bed cottage on a large private plot, minutes from Knutsford and transport links.
Large gated plot with wide open rear views
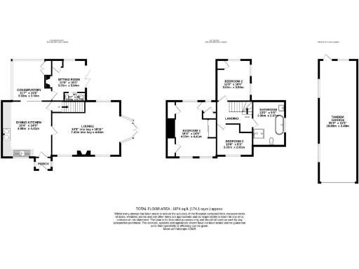
Plumley Moor Cottage is a traditional Cheshire brick cottage on a generous gated plot, offering wide rear views and substantial outdoor space. The house feels light and open inside, with an easy flow between lounge, dining kitchen, sitting room and conservatory. Three bedrooms and a stylish family bathroom sit upstairs, with a useful downstairs WC and a large detached tandem garage with inspection pit.
The location blends semi-rural peace with practical convenience: a short drive to Knutsford, Plumley station and motorway links, plus village amenities and highly rated local primary schools. The plot is a major asset — level, private and large enough for garden projects or modest extension subject to planning.
Buyers should note a few material considerations. The property is constructed of solid brick (likely no cavity insulation) and double glazing was installed before 2002, so modernisation or improved thermal performance may be desired. The septic tank is believed not to meet current regulations and will need attention. Broadband speeds are slow, though mobile signal is excellent. Council tax is described as expensive.
This home will suit families or downsizers seeking character, space and rural charm close to good schools and transport. It’s presented well and immediately comfortable, with scope for energy improvements and updating systems where required.
6 bedroom detached house for sale in Plumley Moor Road, Plumley, Knutsford, Cheshire, WA16 — £1,500,000 • 6 bed • 3 bath • 4140 ft²
3 bedroom house for sale in Manchester Road, Plumley, Knutsford, WA16 — £499,950 • 3 bed • 2 bath • 1920 ft²
2 bedroom end of terrace house for sale in Prospect Cottages, Prospect Lane, Alderley Edge, SK9 — £350,000 • 2 bed • 1 bath • 705 ft²
4 bedroom cottage for sale in Newton Hall Lane, Mobberley, WA16 — £750,000 • 4 bed • 2 bath • 1707 ft²
2 bedroom cottage for sale in Spring Gardens, Stubbs Lane, Mobberley, WA16 7LE., WA16 — £435,000 • 2 bed • 1 bath • 655 ft²
4 bedroom detached house for sale in Oak Lea, Moss Lane, Mobberley, WA16 7BU, WA16 — £850,000 • 4 bed • 2 bath • 1847 ft²






























































































