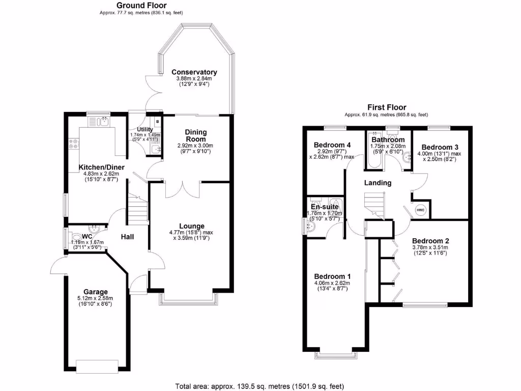
- Substantial corner plot with wraparound gardens and patio
- Large driveway plus attached garage, parking for several cars
- Spacious lounge, separate dining room and conservatory
- Modern kitchen/breakfast room with utility and ground-floor WC
- Four good-sized bedrooms; master with en suite
- Potential to extend subject to planning permission
- Council Tax band F — higher ongoing cost
- Local area recorded as very deprived; consider amenity/resale impact
Set on a generous corner plot in Coed Camlas, this four-bedroom detached house gives a growing family room to live and expand. The layout includes a spacious lounge, formal dining room, conservatory and a modern kitchen/breakfast room with an adjoining utility and ground-floor WC — practical for everyday life and entertaining. A large driveway and attached garage provide excellent off-road parking for several vehicles.
Upstairs the home offers three double bedrooms plus a fourth good-sized room, a master en suite and a family bathroom. Double glazing, mains gas central heating and a contemporary kitchen mean the house is largely move-in ready. The rear garden is private and substantial, with mature planting and a patio for outdoor dining.
There is real potential to increase living space — subject to obtaining planning permission — thanks to the sizeable plot. Broadband and mobile signal are strong, and the location benefits from convenient road and public transport links for commuters.
Important practical points: the property sits in Council Tax band F (expensive) and the local area scores as very deprived; buyers should consider this when assessing local services and resale prospects. The sale is chain-free, which can speed completion.























































































































































